福岡県直方市大字上新入(新入駅)の売店舗:物件詳細
交通 所在地 |
駅徒歩 |
価格 管理費等 |
使用部分面積 土地面積 |
用途地域 建物構造 |
物件種目 築年月 |
|
JR筑豊本線/新入
福岡県直方市大字上新入
|
12分
|
5,100万円
-
|
538.36m²
996.79m²
|
準工業
鉄骨造
|
売店舗・事務所
2002年7月(築23年11ヶ月)
|
|
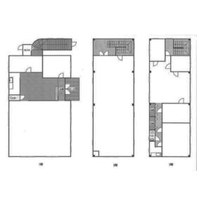
間取図
鉄骨造の3階建
|
外観
様々な用途に対応可能な建物です
|
<
その他の画像
>
|
| 交通 | JR筑豊本線 新入駅 徒歩12分 |
|---|
| その他の交通 | 筑豊電気鉄道 筑豊直方駅 徒歩18分 JR筑豊本線 直方駅 徒歩19分 |
| 所在地 |
福岡県直方市大字上新入
|
| 物件種目 |
売店舗・事務所 |
| 価格 |
5,100万円 |
管理費等 |
- |
| 修繕積立金 |
- |
借地期間・地代(月額) |
- |
| 権利金 |
- |
敷金または保証金 |
- / - |
| 維持費等 |
- |
その他一時金 |
- |
| 間取り |
- |
階建 / 階 |
3階建 / 1階~3階部分 |
| 使用部分面積 |
538.36m²(内法) |
土地面積 |
996.79m² |
| 建物構造 |
鉄骨造 |
築年月 |
2002年7月(築23年11ヶ月)
|
| 土地権利 |
所有権 |
建物名・部屋番号 |
直方市上新入売事務所 |
| 都市計画 |
- |
用途地域 |
準工業 |
| 建ぺい率 |
- |
容積率 |
- |
| 駐車場 |
- |
バイク置き場 |
- |
| 駐輪場 |
- |
|
|
| 私道負担面積 |
- |
接道状況 |
-
|
| 地目 |
- |
地勢 |
- |
| 総戸数 |
- |
国土法届出 |
- |
| アピールポイント |
20台以上駐車可能な約300坪の広々敷地。。
オフィス・店舗・倉庫など様々な用途に対応可能な鉄骨造の3階建。
筑豊本線新入駅徒歩12分、直方駅徒歩18分の好立地。
まずはお気軽にご連絡ください。 |
| リフォーム履歴 |
- |
| リノベーション履歴 |
- |
| 特記事項 |
最上階 |
| 備考 |
管理形態/管理員の勤務形態:-/-
|
| エネルギー消費性能 |
- |
| 断熱性能 |
- |
| 目安光熱費 |
- |
| バス・トイレ |
トイレ |
| キッチン |
- |
| 設備・サービス |
収納スペース |
| その他 |
- |
| 条件等 |
- |
現況 |
空 |
| 引渡可能時期 |
即時 |
物件番号 |
6977366964 |
| 情報公開日 |
2025年3月3日 |
次回更新予定日 |
2026年5月22日 |
| ケータイ用バーコード |
- スマートフォンでこの物件を見る
- スマートフォンからもこの物件をご覧になれます。
|
※「-」と表示されている項目については、情報提供会社にご確認ください。
| 周辺施設 |
サンリブのおがた |
| 距離 |
835m |
写真を見る |
| 周辺施設 |
マックスバリュ直方新入店 |
| 距離 |
1260m |
写真を見る |
| 周辺施設 |
直方市立直方第三中学校 |
| 距離 |
1227m |
写真を見る |
| 周辺施設 |
直方市立植木中学校 |
| 距離 |
1873m |
写真を見る |
| 周辺施設 |
社会保険直方病院 |
| 距離 |
1411m |
写真を見る |
| 周辺施設 |
直方市役所 |
| 距離 |
2089m |
写真を見る |
| 周辺施設 |
直方市立図書館 |
| 距離 |
943m |
写真を見る |
ここから簡単にお問い合わせをすることができます。
(SSLでの暗号化での送信を希望されるお客さまは
こちら
よりお問い合わせください)
お問い合わせを行う前に
「個人情報の取り扱いについて」を必ずお読みください。
「個人情報の取り扱いについて」に同意いただいた場合は「上記にご同意の上 確認画面へ進む」のボタンをクリックしてください。
個人情報の取り扱いについて
皆さまが送付された個人情報はアットホーム(株)のサーバを経由し、お問い合わせ先の不動産会社にメールまたはFAXにて転送されるためアットホーム(株)にも保管されます。アットホーム(株)で保管された個人情報の取り扱いについては、【こちら】をご覧ください。
また、本画面でご記入いただいた個人情報は、お問い合わせ先の不動産会社でも保管します。 お問い合わせ先の不動産会社が保管する個人情報の取り扱いについては、不動産会社に直接お問い合わせください。
福岡県知事免許(3)第17564号 |
|---|
- 交通:
- 筑豊電気鉄道/遠賀野駅 徒歩10分
- 福岡県直方市大字感田1855-1
- TEL:
- 0949-29-6410
- FAX:
- 0949-29-6411
- 所属団体:
- (公社)福岡県宅地建物取引業協会会員(一社)九州不動産公正取引協議会加盟
取引態様:一般媒介  - 80901770
|
- スマートフォンで
この不動産会社を見る

|
- 提携サイト等より掲載されている物件情報につきましては、不動産会社詳細情報にリンクされていないものがあります。
- 物件に関するお問合せは、物件詳細ページの「情報提供会社」に表示されている不動産会社へ直接お願いいたします。
- 間取図は、現況を優先させていただきます。
- 映像は物件の一部を撮影したものです。物件の契約にあたっての最終判断はご自身の判断に基づいて行ってください。
- 仲介手数料について

アットホームは物件情報の適正化に努めております。
内容に誤りがある場合にはこちらへご連絡ください。