東京都清瀬市松山1丁目(清瀬駅)の売店舗:物件詳細
交通 所在地 |
駅徒歩 |
価格 管理費等 |
使用部分面積 土地面積 |
用途地域 建物構造 |
物件種目 築年月 |
|
西武池袋線/清瀬
東京都清瀬市松山1丁目
|
4分
|
4,200万円
-
|
108.88m²
68.52m²
|
近隣商業
木造
|
売店舗
1976年8月(築49年10ヶ月)
|
| 交通 | 西武池袋線 清瀬駅 徒歩4分 |
|---|
| その他の交通 | 西武池袋線 東久留米駅 徒歩28分 |
| 所在地 |
東京都清瀬市松山1丁目
|
| 物件種目 |
売店舗 |
| 価格 |
4,200万円 |
管理費等 |
- |
| 修繕積立金 |
なし |
借地期間・地代(月額) |
- |
| 権利金 |
- |
敷金または保証金 |
- / - |
| 維持費等 |
- |
その他一時金 |
- |
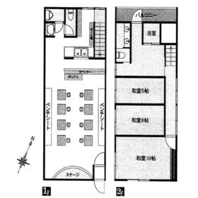
| 間取り |
- |
階建 / 階 |
2階建 |
| 使用部分面積 |
108.88m² |
土地面積 |
68.52m²(公簿) |
| 建物構造 |
木造 |
築年月 |
1976年8月(築49年10ヶ月)
|
| 土地権利 |
所有権 |
建物名・部屋番号 |
|
| 都市計画 |
市街化区域 |
用途地域 |
近隣商業 |
| 建ぺい率 |
80% |
容積率 |
300% |
| 駐車場 |
無 |
バイク置き場 |
無 |
| 駐輪場 |
無 |
|
|
| 私道負担面積 |
有 19.44m² |
接道状況 |
南東 4.0m 私道 位置指定有 接面4.5m
|
| 地目 |
宅地 |
地勢 |
平坦 |
| 総戸数 |
- |
国土法届出 |
- |
| リフォーム履歴 |
- |
| リノベーション履歴 |
- |
| 特記事項 |
- |
| 備考 |
管理形態/管理員の勤務形態:-/-
利回り:4.00%
年間予定賃料収入:168万円
2025年1月30日現在「カラオケスナックあゆみ」営業中。オーナーチェンジ物件。
|
| エネルギー消費性能 |
- |
| 断熱性能 |
- |
| 目安光熱費 |
- |
| バス・トイレ |
バス・トイレ別、トイレ2ヶ所 |
| キッチン |
- |
| 設備・サービス |
給湯、都市ガス |
| その他 |
- |
| 条件等 |
オーナーチェンジ |
現況 |
賃貸中 |
| 引渡可能時期 |
相談 |
物件番号 |
6985018020 |
| 情報公開日 |
2025年5月31日 |
次回更新予定日 |
2026年5月28日 |
| ケータイ用バーコード |
- スマートフォンでこの物件を見る
- スマートフォンからもこの物件をご覧になれます。
|
※「-」と表示されている項目については、情報提供会社にご確認ください。
ここから簡単にお問い合わせをすることができます。
(SSLでの暗号化での送信を希望されるお客さまは
こちら
よりお問い合わせください)
お問い合わせを行う前に
「個人情報の取り扱いについて」を必ずお読みください。
「個人情報の取り扱いについて」に同意いただいた場合は「上記にご同意の上 確認画面へ進む」のボタンをクリックしてください。
個人情報の取り扱いについて
皆さまが送付された個人情報はアットホーム(株)のサーバを経由し、お問い合わせ先の不動産会社にメールまたはFAXにて転送されるためアットホーム(株)にも保管されます。アットホーム(株)で保管された個人情報の取り扱いについては、【こちら】をご覧ください。
また、本画面でご記入いただいた個人情報は、お問い合わせ先の不動産会社でも保管します。 お問い合わせ先の不動産会社が保管する個人情報の取り扱いについては、不動産会社に直接お問い合わせください。
東京都知事免許(1)第111069号 |
|---|
- 交通:
- 西武池袋線/清瀬駅 徒歩4分
- 東京都清瀬市松山2丁目6番47号
- TEL:
- 042-497-8751
- FAX:
- 042-497-8752
- 所属団体:
- (公社)全日本不動産協会会員(公社)首都圏不動産公正取引協議会加盟
取引態様:媒介  - 00988003
|
- スマートフォンで
この不動産会社を見る

|
- 提携サイト等より掲載されている物件情報につきましては、不動産会社詳細情報にリンクされていないものがあります。
- 物件に関するお問合せは、物件詳細ページの「情報提供会社」に表示されている不動産会社へ直接お願いいたします。
- 間取図は、現況を優先させていただきます。
- 映像は物件の一部を撮影したものです。物件の契約にあたっての最終判断はご自身の判断に基づいて行ってください。
- 仲介手数料について

アットホームは物件情報の適正化に努めております。
内容に誤りがある場合にはこちらへご連絡ください。