神奈川県横浜市戸塚区汲沢5丁目(踊場駅)の売店舗:物件詳細
交通 所在地 |
駅徒歩 |
価格 管理費等 |
使用部分面積 土地面積 |
用途地域 建物構造 |
物件種目 築年月 |
|
ブルーライン/踊場
神奈川県横浜市戸塚区汲沢5丁目
|
12分
|
2,680万円
-
|
72.86m²
57.88m²
|
1種住居
木造
|
売店舗
1984年7月(築41年5ヶ月)
|
|
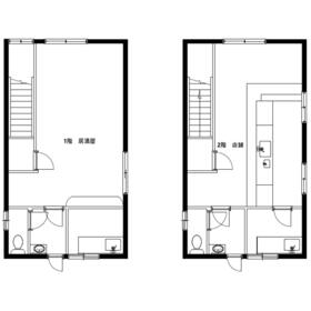
間取図
|
|
その他の画像
|
| 交通 | ブルーライン 踊場駅 徒歩12分 |
| 所在地 |
神奈川県横浜市戸塚区汲沢5丁目
|
| 物件種目 |
売店舗 |
| 価格 |
2,680万円 |
管理費等 |
- |
| 修繕積立金 |
なし |
借地期間・地代(月額) |
- |
| 権利金 |
- |
敷金または保証金 |
- / - |
| 維持費等 |
- |
その他一時金 |
- |
| 間取り |
- |
階建 / 階 |
2階建 |
| 使用部分面積 |
72.86m² |
土地面積 |
57.88m²(公簿) |
| 建物構造 |
木造 |
築年月 |
1984年7月(築41年5ヶ月)
|
| 土地権利 |
所有権 |
建物名・部屋番号 |
|
| 都市計画 |
市街化区域 |
用途地域 |
1種住居 |
| 建ぺい率 |
60% |
容積率 |
200% |
| 駐車場 |
- |
バイク置き場 |
- |
| 駐輪場 |
- |
|
|
| 私道負担面積 |
- |
接道状況 |
-
|
| 地目 |
- |
地勢 |
- |
| 総戸数 |
- |
国土法届出 |
- |
| リフォーム履歴 |
- |
| リノベーション履歴 |
- |
| 特記事項 |
- |
| 備考 |
管理形態/管理員の勤務形態:-/-
利回り:8.24%
年間予定賃料収入:221万円
1階 93,500円(税込)/月
2階 91,300円(税込)/月
合計 184,800円(税込)/月
年 2,217,600円(税込)/年
その他保証金等
敷金:300,000円、保証金:148200円(償却後)
・対象建物は都市計画で定める建ぺい率を超過しています。
・対象建物敷地が都市計画道路にかかっています。
(3・3・16桂町戸塚遠藤線、代表幅員22m、当初決定年月日:昭和32年12月17日)
|
| エネルギー消費性能 |
- |
| 断熱性能 |
- |
| 目安光熱費 |
- |
| バス・トイレ |
トイレ2ヶ所 |
| キッチン |
- |
| 設備・サービス |
プロパンガス |
| その他 |
- |
| 条件等 |
オーナーチェンジ |
現況 |
賃貸中 |
| 引渡可能時期 |
相談 |
物件番号 |
6985768292 |
| 情報公開日 |
2025年4月4日 |
次回更新予定日 |
2025年11月14日 |
| ケータイ用バーコード |
- スマートフォンでこの物件を見る
- スマートフォンからもこの物件をご覧になれます。
|
※「-」と表示されている項目については、情報提供会社にご確認ください。
ここから簡単にお問い合わせをすることができます。
(SSLでの暗号化での送信を希望されるお客さまは
こちら
よりお問い合わせください)
お問い合わせを行う前に
「個人情報の取り扱いについて」を必ずお読みください。
「個人情報の取り扱いについて」に同意いただいた場合は「上記にご同意の上 確認画面へ進む」のボタンをクリックしてください。
個人情報の取り扱いについて
皆さまが送付された個人情報はアットホーム(株)のサーバを経由し、お問い合わせ先の不動産会社にメールまたはFAXにて転送されるためアットホーム(株)にも保管されます。アットホーム(株)で保管された個人情報の取り扱いについては、【こちら】をご覧ください。
また、本画面でご記入いただいた個人情報は、お問い合わせ先の不動産会社でも保管します。 お問い合わせ先の不動産会社が保管する個人情報の取り扱いについては、不動産会社に直接お問い合わせください。
神奈川県知事免許(1)第32046号 |
|---|
- 交通:
- 相鉄本線/二俣川駅 徒歩5分
- 神奈川県横浜市旭区二俣川1丁目45-48 田村ビル3階A号室
- TEL:
- 045-442-4580
- FAX:
- 045-442-4582
- 所属団体:
- (公社)神奈川県宅地建物取引業協会会員(公社)首都圏不動産公正取引協議会加盟
取引態様:一般媒介  - 00275339
|
- スマートフォンで
この不動産会社を見る

|
- 提携サイト等より掲載されている物件情報につきましては、不動産会社詳細情報にリンクされていないものがあります。
- 物件に関するお問合せは、物件詳細ページの「情報提供会社」に表示されている不動産会社へ直接お願いいたします。
- 間取図は、現況を優先させていただきます。
- 映像は物件の一部を撮影したものです。物件の契約にあたっての最終判断はご自身の判断に基づいて行ってください。
- 仲介手数料について

アットホームは物件情報の適正化に努めております。
内容に誤りがある場合にはこちらへご連絡ください。