大阪府松原市西大塚1丁目(恵我ノ荘駅)の売店舗:物件詳細
交通 所在地 |
駅徒歩 |
価格 管理費等 |
使用部分面積 土地面積 |
用途地域 建物構造 |
物件種目 築年月 |
|
近鉄南大阪線/恵我ノ荘
大阪府松原市西大塚1丁目
|
9分
|
838万円
10,500円
|
61.83m²
-
|
2種中高
RC
|
売店舗・事務所
1973年12月(築52年1ヶ月)
|
|
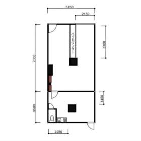
間取図
堺大和高田線沿い!1階貸店舗事務所^^
|
外観
看板設置スペースあり!
|
<
その他の画像
>
|
| 交通 | 近鉄南大阪線 恵我ノ荘駅 徒歩9分 |
|---|
| その他の交通 | 近鉄南大阪線 河内松原駅 徒歩12分 近鉄南大阪線 高鷲駅 徒歩24分 |
| 所在地 |
大阪府松原市西大塚1丁目
|
| 物件種目 |
売店舗・事務所 |
| 価格 |
838万円 |
管理費等 |
10,500円 |
| 修繕積立金 |
7,500円 |
借地期間・地代(月額) |
- |
| 権利金 |
- |
敷金または保証金 |
- / - |
| 維持費等 |
- |
その他一時金 |
- |
| 間取り |
- |
階建 / 階 |
8階建 / 1階 |
| 使用部分面積 |
61.83m²(壁芯) |
土地面積 |
- |
| 建物構造 |
RC |
築年月 |
1973年12月(築52年1ヶ月)
|
| 土地権利 |
所有権 |
建物名・部屋番号 |
センチュリー山繁 1階店舗事務所 102号室 |
| 都市計画 |
- |
用途地域 |
2種中高 |
| 建ぺい率 |
- |
容積率 |
- |
| 駐車場 |
空無 |
バイク置き場 |
- |
| 駐輪場 |
- |
|
|
| 私道負担面積 |
- |
接道状況 |
-
|
| 地目 |
- |
地勢 |
- |
| 総戸数 |
- |
国土法届出 |
- |
| アピールポイント |
◎投資用でもご検討いただける価格水準です!
◎堺大和高田線沿い!
◎ロードサイド!
◎1階路面店!
◎内装状態良好!
◎約18.7坪(約61.8㎡)の貸店舗事務所
◎条件・業種等お気軽にお問い合わせください^^ |
| リフォーム履歴 |
- |
| リノベーション履歴 |
- |
| 特記事項 |
IT重説対応物件、国道沿いに面する |
| 備考 |
管理形態/管理員の勤務形態:全部委託/不在(日本ハウズイング株式会社)
IT重説対応物件
本物件は容積率を超過している可能性があります。
|
| エネルギー消費性能 |
- |
| 断熱性能 |
- |
| 目安光熱費 |
- |
| バス・トイレ |
トイレ |
| キッチン |
- |
| 設備・サービス |
シャッター雨戸、給湯、都市ガス、光ファイバー |
| その他 |
エレベーター |
| 条件等 |
- |
現況 |
空 |
| 引渡可能時期 |
即時 |
物件番号 |
6986186753 |
| 仲介手数料 |
不要 |
|
|
| 情報公開日 |
2025年5月9日 |
次回更新予定日 |
2025年12月18日 |
| ケータイ用バーコード |
- スマートフォンでこの物件を見る
- スマートフォンからもこの物件をご覧になれます。
|
※「-」と表示されている項目については、情報提供会社にご確認ください。
| 周辺施設 |
イズミヤショッピングセンター松原店 |
| 距離 |
629m |
写真を見る |
| 周辺施設 |
ローソン恵我之荘駅前店 |
| 距離 |
757m |
写真を見る |
| 周辺施設 |
サイゼリヤ松原西大塚店 |
| 距離 |
366m |
写真を見る |
| 周辺施設 |
マクドナルド松原イズミヤ店 |
| 距離 |
629m |
写真を見る |
| 周辺施設 |
松のや松原店 |
| 距離 |
705m |
写真を見る |
| 周辺施設 |
松原一津屋郵便局 |
| 距離 |
854m |
写真を見る |
| 周辺施設 |
池田泉州銀行羽曳野支店 |
| 距離 |
730m |
写真を見る |
| 周辺施設 |
松原市役所 |
| 距離 |
1679m |
写真を見る |
ここから簡単にお問い合わせをすることができます。
(SSLでの暗号化での送信を希望されるお客さまは
こちら
よりお問い合わせください)
お問い合わせを行う前に
「個人情報の取り扱いについて」を必ずお読みください。
「個人情報の取り扱いについて」に同意いただいた場合は「上記にご同意の上 確認画面へ進む」のボタンをクリックしてください。
個人情報の取り扱いについて
皆さまが送付された個人情報はアットホーム(株)のサーバを経由し、お問い合わせ先の不動産会社にメールまたはFAXにて転送されるためアットホーム(株)にも保管されます。アットホーム(株)で保管された個人情報の取り扱いについては、【こちら】をご覧ください。
また、本画面でご記入いただいた個人情報は、お問い合わせ先の不動産会社でも保管します。 お問い合わせ先の不動産会社が保管する個人情報の取り扱いについては、不動産会社に直接お問い合わせください。
大阪府知事免許(2)第60093号 |
|---|
- 交通:
- JR阪和線/堺市駅 徒歩3分
- 大阪府堺市北区北長尾町3丁5-4-201
- TEL:
- 072-260-4613
- FAX:
- 072-260-4612
- 所属団体:
- (公社)全日本不動産協会会員(公社)近畿地区不動産公正取引協議会加盟
取引態様:売主  - 50102737
|
- スマートフォンで
この不動産会社を見る

|
- 提携サイト等より掲載されている物件情報につきましては、不動産会社詳細情報にリンクされていないものがあります。
- 物件に関するお問合せは、物件詳細ページの「情報提供会社」に表示されている不動産会社へ直接お願いいたします。
- 間取図は、現況を優先させていただきます。
- 映像は物件の一部を撮影したものです。物件の契約にあたっての最終判断はご自身の判断に基づいて行ってください。
- 仲介手数料について

アットホームは物件情報の適正化に努めております。
内容に誤りがある場合にはこちらへご連絡ください。