京都府京都市上京区中筋通浄福寺西入中宮町(今出川駅)の売店舗:物件詳細
交通 所在地 |
駅徒歩 |
価格 管理費等 |
使用部分面積 土地面積 |
用途地域 建物構造 |
物件種目 築年月 |
地下鉄烏丸線/今出川
京都府京都市上京区中筋通浄福寺西入中宮町
|
18分
|
23,000万円
-
|
535.45m²
317.11m²
|
-
RC
|
売店舗
1995年4月(築30年7ヶ月)
|
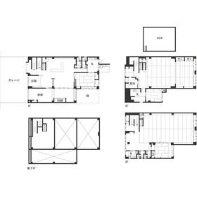
間取図
|
|
その他の画像
|
交通 | 地下鉄烏丸線 今出川駅 徒歩18分 |
所在地 |
京都府京都市上京区中筋通浄福寺西入中宮町
|
物件種目 |
売店舗 |
価格 |
23,000万円 |
管理費等 |
- |
修繕積立金 |
- |
借地期間・地代(月額) |
- |
権利金 |
- |
敷金または保証金 |
- / - |
維持費等 |
- |
その他一時金 |
- |
間取り |
- |
階建 / 階 |
地上3階地下1階建 |
使用部分面積 |
535.45m² |
土地面積 |
317.11m²(公簿) |
建物構造 |
RC |
築年月 |
1995年4月(築30年7ヶ月)
|
土地権利 |
所有権 |
建物名・部屋番号 |
|
都市計画 |
- |
用途地域 |
- |
建ぺい率 |
- |
容積率 |
- |
駐車場 |
- |
バイク置き場 |
- |
駐輪場 |
- |
|
|
私道負担面積 |
- |
接道状況 |
-
|
地目 |
- |
地勢 |
- |
総戸数 |
- |
国土法届出 |
- |
アピールポイント |
京都・上京区の閑静な通りに佇む、京町家風の大型RC店舗。茶室と中庭を備えた和の趣が、訪れる人に特別な体験を提供します。地下1階付3階建・延床535㎡超の広さと、駐車場4台完備で多様な業種に対応可能。飲食・物販・サロン・ギャラリーなど、京都らしさを活かすビジネスに最適です。 |
リフォーム履歴 |
- |
リノベーション履歴 |
- |
特記事項 |
- |
備考 |
管理形態/管理員の勤務形態:-/-
|
エネルギー消費性能 |
- |
断熱性能 |
- |
目安光熱費 |
- |
バス・トイレ |
- |
キッチン |
- |
設備・サービス |
給湯、都市ガス |
その他 |
- |
条件等 |
- |
現況 |
使用中 |
引渡可能時期 |
相談 |
物件番号 |
6986690949 |
仲介手数料 |
売買代金の3%+6万円 |
|
|
情報公開日 |
2025年7月26日 |
次回更新予定日 |
2025年11月2日 |
ケータイ用バーコード |
- スマートフォンでこの物件を見る
- スマートフォンからもこの物件をご覧になれます。
|
※「-」と表示されている項目については、情報提供会社にご確認ください。
ここから簡単にお問い合わせをすることができます。
(SSLでの暗号化での送信を希望されるお客さまは
こちら
よりお問い合わせください)
お問い合わせを行う前に
「個人情報の取り扱いについて」を必ずお読みください。
「個人情報の取り扱いについて」に同意いただいた場合は「上記にご同意の上 確認画面へ進む」のボタンをクリックしてください。
個人情報の取り扱いについて
皆さまが送付された個人情報はアットホーム(株)のサーバを経由し、お問い合わせ先の不動産会社にメールまたはFAXにて転送されるためアットホーム(株)にも保管されます。アットホーム(株)で保管された個人情報の取り扱いについては、【こちら】をご覧ください。
また、本画面でご記入いただいた個人情報は、お問い合わせ先の不動産会社でも保管します。 お問い合わせ先の不動産会社が保管する個人情報の取り扱いについては、不動産会社に直接お問い合わせください。
京都府知事免許(3)第13237号 |
---|
- 交通:
- 地下鉄烏丸線/四条駅 徒歩2分
- 京都府京都市下京区四条通新町東入月鉾町59 エリッツ四条烏丸ビル3F
- TEL:
- 0120-95-2411
- FAX:
- 075-253-5822
- 所属団体:
- (公社)京都府宅地建物取引業協会会員(公社)近畿地区不動産公正取引協議会加盟
取引態様:専任媒介  - 50017980
|
- スマートフォンで
この不動産会社を見る

|
- 提携サイト等より掲載されている物件情報につきましては、不動産会社詳細情報にリンクされていないものがあります。
- 物件に関するお問合せは、物件詳細ページの「情報提供会社」に表示されている不動産会社へ直接お願いいたします。
- 間取図は、現況を優先させていただきます。
- 映像は物件の一部を撮影したものです。物件の契約にあたっての最終判断はご自身の判断に基づいて行ってください。
- 仲介手数料について

アットホームは物件情報の適正化に努めております。
内容に誤りがある場合にはこちらへご連絡ください。