不動産 賃貸 マンション等の住宅情報:埼玉住まい情報


宮崎県宮崎市大字熊野(木花駅)の売店舗:物件詳細

  • 物件詳細
  • 情報の見方
  • 印刷用画面
交通
所在地
駅徒歩 価格
管理費等
使用部分面積
土地面積
用途地域
建物構造
物件種目
築年月

JR日南線/木花
[バス利用可] バス 桜川 停歩2分

宮崎県宮崎市大字熊野

10分

7,800万円

140.00m²

628.40m²

2種住居

木造

売店舗

2002年1月(築23年10ヶ月)

おすすめコメント

木花駅徒歩10分、バス停徒歩1分の好立地!南向きで日当たり良好、駐車場10台付きのおすすめ物件。生活施設も徒歩圏内に揃い、宿泊施設、重飲食(焼肉・ラーメン)に最適です。

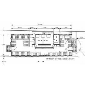
間取図

間取図

外観

外観

<
その他の画像
  • 室内
  • 室内
  • 室内
  • 室内
  • キッチン
  • キッチン
  • 室内
  • トイレ
  • トイレ
  • 収納
  • 駐車場
  • その他
  • その他
  • 外観
  • ショッピング施設
  • 大学
  • 中学校
  • 小学校
  • 郵便局
  • 公園
>
    • とりあえず保存
    • お問い合わせ
    交通

    JR日南線 木花駅 徒歩10分
    [バス利用可] バス 桜川 停歩2分

    その他の交通

    JR日南線 運動公園駅 徒歩24分

    所在地 宮崎県宮崎市大字熊野
    物件種目 売店舗
    価格 7,800万円 管理費等
    修繕積立金 なし 借地期間・地代(月額)
    権利金 敷金または保証金 - / -
    維持費等 その他一時金 なし
    間取り 階建 / 階 1階建
    使用部分面積 140.00m² 土地面積 628.40m²(公簿)
    建物構造 木造 築年月 2002年1月(築23年10ヶ月)
    土地権利 所有権 建物名・部屋番号  
    都市計画 市街化区域 用途地域 2種住居
    建ぺい率 60% 容積率 200%
    駐車場 有 無料 バイク置き場
    駐輪場    
    私道負担面積 なし 接道状況 南 16.0m 公道 接面6.0m
    地目 宅地 地勢 平坦
    総戸数 1戸 国土法届出
    アピールポイント 本物件はJR木花駅から徒歩10分、バス停まで徒歩1分の好立地。宮崎大学が近く、学生や教員など若年層が多く、稼働率も高いエリアです。さらに宮崎市が地域活性化と生活基盤の充実を目的に開発や整備を進めており、今後木花駅周辺は住宅地としての需要が高まる注目地域です。住宅が多く人口も多いため、観光地型の青島エリアに比べて継続的なビジネスチャンスに恵まれています。車で3分の場所にはマックスバリュ、キャンドゥ、ダイレックスがあり利便性も良好。徒歩6分の圏内にはAコープ、郵便局、整形外科、コンビニもそろい、生活しやすい環境です。南向きで日当たり良好、美しい田園風景が広がる立地に加え、駐車場10台付き、重飲食にも対応可能なおすすめ物件です。宿泊施設としての利用も可能です。
    リフォーム履歴
    リノベーション履歴
    特記事項 居抜き、駐車場3台分以上、天井高2.5M以上、都道府県道沿いに面する
    備考
    管理形態/管理員の勤務形態:-/-
    主要採光面:南向き
    敷地内10台駐車可。(近隣に月極駐車場も有り)
    エネルギー消費性能
    断熱性能
    目安光熱費
    バス・トイレ 男女別トイレ、トイレ2ヶ所
    キッチン
    設備・サービス 収納スペース、プロパンガス、動力あり
    その他
    条件等 現況
    引渡可能時期 即時 物件番号 6987417321
    仲介手数料 売買代金の3%+6万円    
    情報公開日 2025年8月25日 次回更新予定日 2025年10月25日
    ケータイ用バーコード

    QRコード

    スマートフォンでこの物件を見る
    スマートフォンからもこの物件をご覧になれます。
    ※「-」と表示されている項目については、情報提供会社にご確認ください。

    この物件の周辺情報

    周辺施設 Aコープ木花店
    距離 429m
    周辺施設 国立宮崎大学木花キャンパス
    距離 2661m
    周辺施設 宮崎市立木花中学校
    距離 1192m
    周辺施設 宮崎市立木花小学校
    距離 859m
    周辺施設 学園木花台郵便局
    距離 1901m
    周辺施設 木花公園
    距離 887m
    周辺施設 ひなた宮崎県総合運動公園
    距離 1449m

    クイックお問い合わせ

    ここから簡単にお問い合わせをすることができます。
    (SSLでの暗号化での送信を希望されるお客さまは こちら よりお問い合わせください)

    お問い合わせ内容(必須)
    お名前(必須) 姓  名 
    メールアドレス(必須)
    ※携帯電話のメールアドレスをご入力される方はこちらをご確認ください
    電話番号(必須)
    - -

    ※入力いただいた電話番号へSMSまたは音声でパスワードをご連絡します。

    携帯電話の番号をご入力の方へ

    携帯電話の番号をご入力の方へ
    確認画面にて送信ボタンをクリックするとSMSが携帯電話に届きます。
    そのSMSに記載のパスワード(認証番号)を入力し、お問い合わせを完了してください。
    尚、SMSの送信者番号は 0005 202 760 となります。
    これはアットホームの固定番号です。

    備考欄 希望条件、物件案内希望日、質問などがございましたらご記入ください。
    お問い合わせを行う前に「個人情報の取り扱いについて」を必ずお読みください。
    「個人情報の取り扱いについて」に同意いただいた場合は「上記にご同意の上 確認画面へ進む」のボタンをクリックしてください。

    個人情報の取り扱いについて

    皆さまが送付された個人情報はアットホーム(株)のサーバを経由し、お問い合わせ先の不動産会社にメールまたはFAXにて転送されるためアットホーム(株)にも保管されます。アットホーム(株)で保管された個人情報の取り扱いについては、【こちら】をご覧ください。
    また、本画面でご記入いただいた個人情報は、お問い合わせ先の不動産会社でも保管します。 お問い合わせ先の不動産会社が保管する個人情報の取り扱いについては、不動産会社に直接お問い合わせください。

    情報提供会社

    情報提供会社

    ソルエステート(株) テナントの窓口

    宮崎県知事免許(1)第5141号

    交通:
    JR日豊本線/宮崎駅 徒歩36分 【バス】 小戸町南 停歩5分
    宮崎県宮崎市田代町139-18 
    TEL:
    0985-71-1550
    FAX:
    0985-71-1354
    所属団体:
    (一社)宮崎県宅地建物取引業協会会員
    (一社)九州不動産公正取引協議会加盟

    取引態様:一般媒介

    • 会社情報
    • 80507913
    スマートフォンで
    この不動産会社を見る
    QRコード
    • とりあえず保存
    • お問い合わせ
    • 提携サイト等より掲載されている物件情報につきましては、不動産会社詳細情報にリンクされていないものがあります。
    • 物件に関するお問合せは、物件詳細ページの「情報提供会社」に表示されている不動産会社へ直接お願いいたします。
    • 間取図は、現況を優先させていただきます。
    • 映像は物件の一部を撮影したものです。物件の契約にあたっての最終判断はご自身の判断に基づいて行ってください。
    • 仲介手数料について仲介手数料

    アットホームは物件情報の適正化に努めております。 内容に誤りがある場合にはこちらへご連絡ください。

    【埼玉住まい情報】では、日本全国の物件から賃貸マンションや賃貸アパート・賃貸一戸建て等の賃貸住宅情報、新築マンション・分譲マンションや中古マンション等の売買マンション情報、新築一戸建てや中古一戸建てなどの戸建住宅、 土地など、総合的な不動産住宅情報検索サービスを提供致します。
    【埼玉住まい情報】から、選りすぐりの不動産物件を探してみましょう。

    【免責事項】
    このコーナーの運営はアットホーム株式会社(https://www.athome.co.jp/)が行っています。
    このコーナーに掲載している物件情報は、「アットホーム不動産情報ネットワーク」に加盟する不動産会社等(情報提供元)から提供されています。信頼性の高い情報提供が行えるよう、最大限の努力をしておりますが、その内容を保証するものではありません。 利用者のみなさまと各情報提供元との取引に起因する損害および情報が掲載されたことに起因する損害等については、株式会社イーシティ埼玉、およびアットホームは一切責任を負いません。
    各物件情報の内容や画像等はすべて現況を優先させていただきます。
    お取引等(お取引の準備、資金調達等を含みます)の際には、内容や契約条件等について、各情報提供元より十分な説明を受け、ご自身でご確認の上、判断してください。
    このコーナーへの物件情報のご掲載、その他不動産業務ソリューション等についての不動産会社様のお問合せはこちらからお願いいたします。

    物件画像: