熊本県熊本市中央区神水本町(八丁馬場駅)の売店舗:物件詳細
交通 所在地 |
駅徒歩 |
価格 管理費等 |
使用部分面積 土地面積 |
用途地域 建物構造 |
物件種目 築年月 |
|
熊本市電健軍線/八丁馬場
熊本県熊本市中央区神水本町
|
1分
|
9,750万円
-
|
612.71m²
256.48m²
|
近隣商業
鉄骨造
|
売店舗
1999年3月(築26年10ヶ月)
|
|
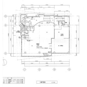
間取図
1F図面
|
|
<
その他の画像
>
|
| 交通 | 熊本市電健軍線 八丁馬場駅 徒歩1分 |
| 所在地 |
熊本県熊本市中央区神水本町
|
| 物件種目 |
売店舗 |
| 価格 |
9,750万円 |
管理費等 |
- |
| 修繕積立金 |
なし |
借地期間・地代(月額) |
- |
| 権利金 |
- |
敷金または保証金 |
- / - |
| 維持費等 |
- |
その他一時金 |
- |
| 間取り |
- |
階建 / 階 |
地上3階地下1階建 |
| 使用部分面積 |
612.71m² |
土地面積 |
256.48m²(公簿) |
| 建物構造 |
鉄骨造 |
築年月 |
1999年3月(築26年10ヶ月)
|
| 土地権利 |
所有権 |
建物名・部屋番号 |
神水本町店舗 |
| 都市計画 |
市街化区域 |
用途地域 |
近隣商業 |
| 建ぺい率 |
80% |
容積率 |
300% |
| 駐車場 |
有 無料 |
バイク置き場 |
- |
| 駐輪場 |
- |
|
|
| 私道負担面積 |
- |
接道状況 |
北 21.0m 公道
・
西 2.1m 公道
・
二方道路
|
| 地目 |
宅地 |
地勢 |
- |
| 総戸数 |
- |
国土法届出 |
- |
| リフォーム履歴 |
- |
| リノベーション履歴 |
- |
| 特記事項 |
駐車場3台分以上 |
| 備考 |
管理形態/管理員の勤務形態:-/-
間取図は建築時の図面のため間取の変更箇所有、
売主が借りている近隣駐車場(西側道路向かい側、10台分)の契約を引き継ぎ可能、
埋蔵文化財包蔵地内(江津湖遺跡群)、
|
| エネルギー消費性能 |
- |
| 断熱性能 |
- |
| 目安光熱費 |
- |
| バス・トイレ |
- |
| キッチン |
- |
| 設備・サービス |
ビルトインエアコン |
| その他 |
- |
| 条件等 |
- |
現況 |
所有者居住中 |
| 引渡可能時期 |
相談 |
物件番号 |
6987684857 |
| 仲介手数料 |
売買代金の3.3%+6.6万円 |
|
|
| 情報公開日 |
2025年9月23日 |
次回更新予定日 |
2025年12月30日 |
| ケータイ用バーコード |
- スマートフォンでこの物件を見る
- スマートフォンからもこの物件をご覧になれます。
|
※「-」と表示されている項目については、情報提供会社にご確認ください。
| 周辺施設 |
ローソン熊本神水一丁目店 |
| 距離 |
239m |
ここから簡単にお問い合わせをすることができます。
(SSLでの暗号化での送信を希望されるお客さまは
こちら
よりお問い合わせください)
お問い合わせを行う前に
「個人情報の取り扱いについて」を必ずお読みください。
「個人情報の取り扱いについて」に同意いただいた場合は「上記にご同意の上 確認画面へ進む」のボタンをクリックしてください。
個人情報の取り扱いについて
皆さまが送付された個人情報はアットホーム(株)のサーバを経由し、お問い合わせ先の不動産会社にメールまたはFAXにて転送されるためアットホーム(株)にも保管されます。アットホーム(株)で保管された個人情報の取り扱いについては、【こちら】をご覧ください。
また、本画面でご記入いただいた個人情報は、お問い合わせ先の不動産会社でも保管します。 お問い合わせ先の不動産会社が保管する個人情報の取り扱いについては、不動産会社に直接お問い合わせください。
熊本県知事免許(15)第504号 |
|---|
- 交通:
- JR鹿児島本線/西熊本駅 徒歩9分 【バス】 荒尾町入口 停歩1分
- 熊本県熊本市南区荒尾1丁目1-13 健成園ビル101
- TEL:
- 096-358-0006
- FAX:
- 096-358-5557
- 所属団体:
- (公社)熊本県宅地建物取引業協会会員(一社)九州不動産公正取引協議会加盟
取引態様:専任媒介  - 80700538
|
- スマートフォンで
この不動産会社を見る

|
- 提携サイト等より掲載されている物件情報につきましては、不動産会社詳細情報にリンクされていないものがあります。
- 物件に関するお問合せは、物件詳細ページの「情報提供会社」に表示されている不動産会社へ直接お願いいたします。
- 間取図は、現況を優先させていただきます。
- 映像は物件の一部を撮影したものです。物件の契約にあたっての最終判断はご自身の判断に基づいて行ってください。
- 仲介手数料について

アットホームは物件情報の適正化に努めております。
内容に誤りがある場合にはこちらへご連絡ください。