北海道札幌市白石区北郷二条10丁目(平和駅)の売店舗:物件詳細
交通 所在地 |
駅徒歩 |
価格 管理費等 |
使用部分面積 土地面積 |
用途地域 建物構造 |
物件種目 築年月 |
|
JR千歳線/平和
北海道札幌市白石区北郷二条10丁目
|
10分
|
3,900万円
-
|
275.19m²
291.00m²
|
近隣商業、1種住居
木造
|
売住宅付き店舗
1997年8月(築28年7ヶ月)
|
|
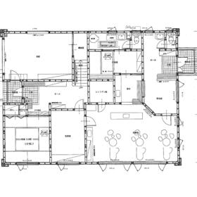
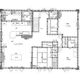
間取図
2階住居部分
|
間取図
1階診療所部分
|
その他の画像
|
| 交通 | JR千歳線 平和駅 徒歩10分 |
| 所在地 |
北海道札幌市白石区北郷二条10丁目
|
| 物件種目 |
売住宅付き店舗 |
| 価格 |
3,900万円 |
管理費等 |
- |
| 修繕積立金 |
- |
借地期間・地代(月額) |
- |
| 権利金 |
- |
敷金または保証金 |
- / - |
| 維持費等 |
- |
その他一時金 |
- |
| 間取り |
- |
階建 / 階 |
2階建 |
| 使用部分面積 |
275.19m² |
土地面積 |
291.00m²(公簿) |
| 建物構造 |
木造 |
築年月 |
1997年8月(築28年7ヶ月)
|
| 土地権利 |
所有権 |
建物名・部屋番号 |
北郷2-10住宅 |
| 都市計画 |
市街化区域 |
用途地域 |
近隣商業、1種住居 |
| 建ぺい率 |
80% |
容積率 |
200% |
| 駐車場 |
- |
バイク置き場 |
- |
| 駐輪場 |
- |
|
|
| 私道負担面積 |
なし |
接道状況 |
西 8.0m 公道 接面14.5m
・
東 8.0m 公道 接面14.5m
・
二方道路
|
| 地目 |
宅地 |
地勢 |
- |
| 総戸数 |
- |
国土法届出 |
- |
| リフォーム履歴 |
- |
| リノベーション履歴 |
- |
| 特記事項 |
駐車場3台分以上 |
| 備考 |
管理形態/管理員の勤務形態:-/-
主要採光面:西向き
施工会社:㈱SANKEI
4LDK住宅+歯科診療所の延床83坪の邸宅です。所有者様綺麗にお住まいです。床はフローリングでとても綺麗です。
|
| エネルギー消費性能 |
- |
| 断熱性能 |
- |
| 目安光熱費 |
- |
| バス・トイレ |
バス・トイレ別、シャワー、トイレ2ヶ所 |
| キッチン |
- |
| 設備・サービス |
エアコン2台以上、収納スペース、給湯、エアコン、暖房、冷房、インターネット対応、複層ガラス |
| その他 |
- |
| 条件等 |
- |
現況 |
所有者居住中 |
| 引渡可能時期 |
指定有り2026年5月31日 |
物件番号 |
6987803883 |
| 情報公開日 |
2025年9月27日 |
次回更新予定日 |
2026年2月14日 |
| ケータイ用バーコード |
- スマートフォンでこの物件を見る
- スマートフォンからもこの物件をご覧になれます。
|
※「-」と表示されている項目については、情報提供会社にご確認ください。
| 周辺施設 |
ラルズマート新ほくと店 |
| 距離 |
1243m |
| 周辺施設 |
セイコーマート北郷北都店 |
| 距離 |
297m |
| 周辺施設 |
セブンイレブン札幌北郷3条店 |
| 距離 |
371m |
ここから簡単にお問い合わせをすることができます。
(SSLでの暗号化での送信を希望されるお客さまは
こちら
よりお問い合わせください)
お問い合わせを行う前に
「個人情報の取り扱いについて」を必ずお読みください。
「個人情報の取り扱いについて」に同意いただいた場合は「上記にご同意の上 確認画面へ進む」のボタンをクリックしてください。
個人情報の取り扱いについて
皆さまが送付された個人情報はアットホーム(株)のサーバを経由し、お問い合わせ先の不動産会社にメールまたはFAXにて転送されるためアットホーム(株)にも保管されます。アットホーム(株)で保管された個人情報の取り扱いについては、【こちら】をご覧ください。
また、本画面でご記入いただいた個人情報は、お問い合わせ先の不動産会社でも保管します。 お問い合わせ先の不動産会社が保管する個人情報の取り扱いについては、不動産会社に直接お問い合わせください。
北海道知事免許 石狩(10)第4022号 |
|---|
- 交通:
- JR札沼線/八軒駅 徒歩9分
- 北海道札幌市西区八軒九条東4丁目1-20
- TEL:
- 011-709-7811
- FAX:
- 011-709-7621
- 所属団体:
- (公社)北海道宅地建物取引業協会会員全国賃貸管理ビジネス協会会員(公財)日本賃貸住宅管理協会会員(一社)北海道不動産公正取引協議会加盟
取引態様:一般媒介  - 10000298
|
- スマートフォンで
この不動産会社を見る

|
- 提携サイト等より掲載されている物件情報につきましては、不動産会社詳細情報にリンクされていないものがあります。
- 物件に関するお問合せは、物件詳細ページの「情報提供会社」に表示されている不動産会社へ直接お願いいたします。
- 間取図は、現況を優先させていただきます。
- 映像は物件の一部を撮影したものです。物件の契約にあたっての最終判断はご自身の判断に基づいて行ってください。
- 仲介手数料について

アットホームは物件情報の適正化に努めております。
内容に誤りがある場合にはこちらへご連絡ください。