群馬県前橋市元総社町2丁目(新前橋駅)の売店舗:物件詳細
交通 所在地 |
駅徒歩 |
価格 管理費等 |
使用部分面積 土地面積 |
用途地域 建物構造 |
物件種目 築年月 |
|
JR両毛線/新前橋
群馬県前橋市元総社町2丁目
|
21分
|
8,200万円
-
|
131.66m²
621.00m²
|
2種中高
木造
|
売店舗・事務所(一括)
2017年5月(築8年8ヶ月)
|
|
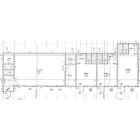
間取図
|
外観
|
その他の画像
|
| 交通 | JR両毛線 新前橋駅 徒歩21分 |
|---|
| その他の交通 | JR上越線 新前橋駅 徒歩21分 湘南新宿ライン(前橋〜小田原) 新前橋駅 徒歩21分 |
| 所在地 |
群馬県前橋市元総社町2丁目
|
| 物件種目 |
売店舗・事務所(一括) |
| 価格 |
8,200万円 |
管理費等 |
- |
| 修繕積立金 |
なし |
借地期間・地代(月額) |
- |
| 権利金 |
- |
敷金または保証金 |
- / - |
| 維持費等 |
- |
その他一時金 |
- |
| 間取り |
- |
階建 / 階 |
1階建 / 1階 |
| 使用部分面積 |
131.66m² |
土地面積 |
621.00m²(公簿) |
| 建物構造 |
木造 |
築年月 |
2017年5月(築8年8ヶ月)
|
| 土地権利 |
所有権 |
建物名・部屋番号 |
スタジオ12~15 |
| 都市計画 |
市街化区域 |
用途地域 |
2種中高 |
| 建ぺい率 |
60% |
容積率 |
200% |
| 駐車場 |
有 無料 |
バイク置き場 |
- |
| 駐輪場 |
- |
|
|
| 私道負担面積 |
- |
接道状況 |
南 6.0m 公道 接面27.0m
|
| 地目 |
宅地 |
地勢 |
平坦 |
| 総戸数 |
- |
国土法届出 |
- |
| アピールポイント |
貸店舗・事務所A~C、ダンス教室あり! |
| リフォーム履歴 |
- |
| リノベーション履歴 |
- |
| 特記事項 |
駐車場3台分以上 |
| 備考 |
管理形態/管理員の勤務形態:-/-
主要採光面:西向き
施工会社:匠設計
北側隣接地夢スタジオ(2億1,400万円)とレコーディングスタジオ(1億1,700万円)と一括売買を予定。
|
| エネルギー消費性能 |
- |
| 断熱性能 |
- |
| 目安光熱費 |
- |
| バス・トイレ |
トイレ2ヶ所 |
| キッチン |
- |
| 設備・サービス |
個別空調、収納スペース、給湯 |
| その他 |
- |
| 条件等 |
- |
現況 |
使用中 |
| 引渡可能時期 |
相談 |
物件番号 |
6987845610 |
| 仲介手数料 |
売買代金の3%+6万円 |
|
|
| 情報公開日 |
2025年11月11日 |
次回更新予定日 |
2025年12月24日 |
| ケータイ用バーコード |
- スマートフォンでこの物件を見る
- スマートフォンからもこの物件をご覧になれます。
|
※「-」と表示されている項目については、情報提供会社にご確認ください。
| 周辺施設 |
フレッセイ元総社蒼海店 |
| 距離 |
1404m |
| 周辺施設 |
セブンイレブン前橋元総社町北店 |
| 距離 |
353m |
| 周辺施設 |
ドラッグセイムス元総社店 |
| 距離 |
255m |
ここから簡単にお問い合わせをすることができます。
(SSLでの暗号化での送信を希望されるお客さまは
こちら
よりお問い合わせください)
お問い合わせを行う前に
「個人情報の取り扱いについて」を必ずお読みください。
「個人情報の取り扱いについて」に同意いただいた場合は「上記にご同意の上 確認画面へ進む」のボタンをクリックしてください。
個人情報の取り扱いについて
皆さまが送付された個人情報はアットホーム(株)のサーバを経由し、お問い合わせ先の不動産会社にメールまたはFAXにて転送されるためアットホーム(株)にも保管されます。アットホーム(株)で保管された個人情報の取り扱いについては、【こちら】をご覧ください。
また、本画面でご記入いただいた個人情報は、お問い合わせ先の不動産会社でも保管します。 お問い合わせ先の不動産会社が保管する個人情報の取り扱いについては、不動産会社に直接お問い合わせください。
群馬県知事免許(1)第7874号 |
|---|
- 交通:
- JR両毛線/新前橋駅 徒歩15分 【バス】 染谷橋 停歩1分
- 群馬県前橋市江田町307-3
- TEL:
- 027-251-2372
- FAX:
- 027-251-2352
- 所属団体:
- (一社)群馬県宅地建物取引業協会会員(公社)首都圏不動産公正取引協議会加盟
取引態様:媒介  - 00274480
|
- スマートフォンで
この不動産会社を見る

|
- 提携サイト等より掲載されている物件情報につきましては、不動産会社詳細情報にリンクされていないものがあります。
- 物件に関するお問合せは、物件詳細ページの「情報提供会社」に表示されている不動産会社へ直接お願いいたします。
- 間取図は、現況を優先させていただきます。
- 映像は物件の一部を撮影したものです。物件の契約にあたっての最終判断はご自身の判断に基づいて行ってください。
- 仲介手数料について

アットホームは物件情報の適正化に努めております。
内容に誤りがある場合にはこちらへご連絡ください。