宮城県大崎市古川李埣1丁目(古川駅)の売店舗:物件詳細
交通 所在地 |
駅徒歩 |
価格 管理費等 |
使用部分面積 土地面積 |
用途地域 建物構造 |
物件種目 築年月 |
東北新幹線/古川
宮城県大崎市古川李埣1丁目
|
8分
|
4,200万円
-
|
240.20m²
709.20m²
|
準住居
鉄骨造
|
売店舗
1984年2月(築41年9ヶ月)
|
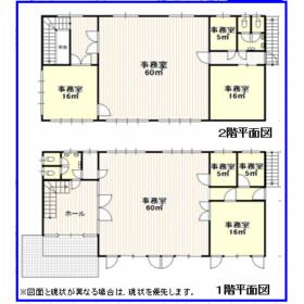
間取図
|
|
その他の画像
|
交通 | 東北新幹線 古川駅 徒歩8分 |
所在地 |
宮城県大崎市古川李埣1丁目
|
物件種目 |
売店舗 |
価格 |
4,200万円 |
管理費等 |
- |
修繕積立金 |
- |
借地期間・地代(月額) |
- |
権利金 |
- |
敷金または保証金 |
- / - |
維持費等 |
- |
その他一時金 |
- |
間取り |
- |
階建 / 階 |
2階建 |
使用部分面積 |
240.20m² |
土地面積 |
709.20m²(公簿) |
建物構造 |
鉄骨造 |
築年月 |
1984年2月(築41年9ヶ月)
|
土地権利 |
所有権 |
建物名・部屋番号 |
|
都市計画 |
非線引区域 |
用途地域 |
準住居 |
建ぺい率 |
60% |
容積率 |
200% |
駐車場 |
- |
バイク置き場 |
- |
駐輪場 |
- |
|
|
私道負担面積 |
なし |
接道状況 |
-
|
地目 |
宅地 |
地勢 |
平坦 |
総戸数 |
- |
国土法届出 |
- |
リフォーム履歴 |
- |
リノベーション履歴 |
- |
特記事項 |
駐車場3台分以上 |
備考 |
管理形態/管理員の勤務形態:-/-
自動ドア、給湯室、照明器具有り。
敷地内に2階建て倉庫2棟有り。
飲食店使用不可。
|
エネルギー消費性能 |
- |
断熱性能 |
- |
目安光熱費 |
- |
バス・トイレ |
トイレ2ヶ所 |
キッチン |
- |
設備・サービス |
エアコン2台以上 |
その他 |
- |
条件等 |
- |
現況 |
使用中 |
引渡可能時期 |
相談 |
物件番号 |
6987994012 |
仲介手数料 |
売買代金の3%+6万円 |
|
|
情報公開日 |
2025年10月12日 |
次回更新予定日 |
2025年10月26日 |
ケータイ用バーコード |
- スマートフォンでこの物件を見る
- スマートフォンからもこの物件をご覧になれます。
|
※「-」と表示されている項目については、情報提供会社にご確認ください。
ここから簡単にお問い合わせをすることができます。
(SSLでの暗号化での送信を希望されるお客さまは
こちら
よりお問い合わせください)
お問い合わせを行う前に
「個人情報の取り扱いについて」を必ずお読みください。
「個人情報の取り扱いについて」に同意いただいた場合は「上記にご同意の上 確認画面へ進む」のボタンをクリックしてください。
個人情報の取り扱いについて
皆さまが送付された個人情報はアットホーム(株)のサーバを経由し、お問い合わせ先の不動産会社にメールまたはFAXにて転送されるためアットホーム(株)にも保管されます。アットホーム(株)で保管された個人情報の取り扱いについては、【こちら】をご覧ください。
また、本画面でご記入いただいた個人情報は、お問い合わせ先の不動産会社でも保管します。 お問い合わせ先の不動産会社が保管する個人情報の取り扱いについては、不動産会社に直接お問い合わせください。
宮城県知事免許(14)第1000号 |
---|
- 交通:
- 東北新幹線/古川駅 徒歩1分
- 宮城県大崎市古川駅前大通2丁目6-16
- TEL:
- 0229-23-8484
- FAX:
- 0229-23-6751
- 所属団体:
- (公社)宮城県宅地建物取引業協会会員(公財)日本賃貸住宅管理協会会員東北地区不動産公正取引協議会加盟
取引態様:一般媒介  - 20001612
|
- スマートフォンで
この不動産会社を見る

|
- 提携サイト等より掲載されている物件情報につきましては、不動産会社詳細情報にリンクされていないものがあります。
- 物件に関するお問合せは、物件詳細ページの「情報提供会社」に表示されている不動産会社へ直接お願いいたします。
- 間取図は、現況を優先させていただきます。
- 映像は物件の一部を撮影したものです。物件の契約にあたっての最終判断はご自身の判断に基づいて行ってください。
- 仲介手数料について

アットホームは物件情報の適正化に努めております。
内容に誤りがある場合にはこちらへご連絡ください。