福岡県糟屋郡新宮町新宮東1丁目(新宮中央駅)の売店舗:物件詳細
交通 所在地 |
駅徒歩 |
価格 管理費等 |
使用部分面積 土地面積 |
用途地域 建物構造 |
物件種目 築年月 |
|
JR鹿児島本線/新宮中央
福岡県糟屋郡新宮町新宮東1丁目
|
12分
|
13,000万円
-
|
298.11m²
697.59m²
|
1種低層
鉄骨造
|
売店舗・事務所(一括)
2004年7月(築21年9ヶ月)
|
|
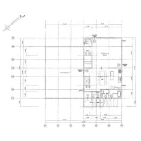
間取図
1階間取図
|
間取図
2階間取図
|
その他の画像
|
| 交通 | JR鹿児島本線 新宮中央駅 徒歩12分 |
|---|
| その他の交通 | JR鹿児島本線 福工大前駅 徒歩24分 西鉄貝塚線 西鉄新宮駅 徒歩23分 |
| 所在地 |
福岡県糟屋郡新宮町新宮東1丁目
|
| 物件種目 |
売店舗・事務所(一括) |
| 価格 |
13,000万円 |
管理費等 |
- |
| 修繕積立金 |
- |
借地期間・地代(月額) |
- |
| 権利金 |
- |
敷金または保証金 |
- / - |
| 維持費等 |
- |
その他一時金 |
- |
| 間取り |
- |
階建 / 階 |
2階建 |
| 使用部分面積 |
298.11m² |
土地面積 |
697.59m²(公簿) |
| 建物構造 |
鉄骨造 |
築年月 |
2004年7月(築21年9ヶ月)
|
| 土地権利 |
所有権 |
建物名・部屋番号 |
|
| 都市計画 |
市街化区域 |
用途地域 |
1種低層 |
| 建ぺい率 |
40% |
容積率 |
60% |
| 駐車場 |
有 無料 |
バイク置き場 |
- |
| 駐輪場 |
- |
|
|
| 私道負担面積 |
- |
接道状況 |
東 6.0m 公道 接面31.0m
|
| 地目 |
宅地 |
地勢 |
- |
| 総戸数 |
- |
国土法届出 |
- |
| リフォーム履歴 |
■外装:2021年2月 外壁、屋根 外壁塗装・防水工事 ■共用部の大規模修繕工事:2021年2月 防水工事 ※実施年月は最も古い履歴を表示 |
| リノベーション履歴 |
- |
| 特記事項 |
駐車場3台分以上 |
| 備考 |
管理形態/管理員の勤務形態:-/-
駐車スペース約10台分。
エレベーター、ルーフバルコニー、浴室2カ所、トイレ4カ所、キッチン2カ所。
土地面積:697.59㎡(211.02坪)、建物1階:193.77㎡(6.8帖洋室×9部屋)、2階:104.34㎡ 合計:298.11㎡(90.17坪)
現在、2階部分のみ月額275,000円(税込)にて賃貸契約中(令和8年3月末日退去予定)
|
| エネルギー消費性能 |
- |
| 断熱性能 |
- |
| 目安光熱費 |
- |
| バス・トイレ |
バス・トイレ別、シャワー |
| キッチン |
- |
| 設備・サービス |
室内洗濯機置場、給湯、火災警報器(報知機) |
| その他 |
車寄せスペース、エレベーター |
| 条件等 |
- |
現況 |
賃貸中 |
| 引渡可能時期 |
相談 |
物件番号 |
6988364613 |
| 情報公開日 |
2026年2月18日 |
次回更新予定日 |
2026年4月1日 |
| ケータイ用バーコード |
- スマートフォンでこの物件を見る
- スマートフォンからもこの物件をご覧になれます。
|
※「-」と表示されている項目については、情報提供会社にご確認ください。
ここから簡単にお問い合わせをすることができます。
(SSLでの暗号化での送信を希望されるお客さまは
こちら
よりお問い合わせください)
お問い合わせを行う前に
「個人情報の取り扱いについて」を必ずお読みください。
「個人情報の取り扱いについて」に同意いただいた場合は「上記にご同意の上 確認画面へ進む」のボタンをクリックしてください。
個人情報の取り扱いについて
皆さまが送付された個人情報はアットホーム(株)のサーバを経由し、お問い合わせ先の不動産会社にメールまたはFAXにて転送されるためアットホーム(株)にも保管されます。アットホーム(株)で保管された個人情報の取り扱いについては、【こちら】をご覧ください。
また、本画面でご記入いただいた個人情報は、お問い合わせ先の不動産会社でも保管します。 お問い合わせ先の不動産会社が保管する個人情報の取り扱いについては、不動産会社に直接お問い合わせください。
福岡県知事免許(13)第5389号 |
|---|
- 交通:
- 西鉄天神大牟田線/大橋駅 徒歩2分
- 福岡県福岡市南区塩原4丁目12-10
- TEL:
- 092-512-5240
- FAX:
- 092-512-5261
- 所属団体:
- (公社)福岡県宅地建物取引業協会会員(一社)九州不動産公正取引協議会加盟
取引態様:専任媒介  - 80001219
|
- スマートフォンで
この不動産会社を見る

|
- 提携サイト等より掲載されている物件情報につきましては、不動産会社詳細情報にリンクされていないものがあります。
- 物件に関するお問合せは、物件詳細ページの「情報提供会社」に表示されている不動産会社へ直接お願いいたします。
- 間取図は、現況を優先させていただきます。
- 映像は物件の一部を撮影したものです。物件の契約にあたっての最終判断はご自身の判断に基づいて行ってください。
- 仲介手数料について

アットホームは物件情報の適正化に努めております。
内容に誤りがある場合にはこちらへご連絡ください。