不動産 賃貸 マンション等の住宅情報:埼玉住まい情報


北海道江別市大麻泉町(大麻駅)の売店舗:物件詳細

  • 物件詳細
  • 情報の見方
  • 印刷用画面
交通
所在地
駅徒歩 価格
管理費等
使用部分面積
土地面積
用途地域
建物構造
物件種目
築年月

JR函館本線/大麻

北海道江別市大麻泉町

22分

4,980万円

161.39m²

429.16m²

1種低層

木造

売店舗付き住宅

2016年5月(築9年11ヶ月)

おすすめコメント

■1階店舗(喫茶店(カフェ))、2階3LDKの住宅

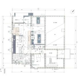
間取図

間取図

1階店舗

間取図

間取図

2階住宅(3LDK)

<
その他の画像
  • 外観
  • 案内図
  • 室内
  • 室内
  • 室内
  • 室内
  • 室内
  • 駐車場
  • 駐車場
  • 駐車場
  • 駐車場
>
    • とりあえず保存
    • お問い合わせ
    交通

    JR函館本線 大麻駅 徒歩22分

    その他の交通

    JR函館本線 野幌駅 徒歩28分

    所在地 北海道江別市大麻泉町
    物件種目 売店舗付き住宅
    価格 4,980万円 管理費等
    修繕積立金 なし 借地期間・地代(月額)
    権利金 敷金または保証金 - / -
    維持費等 その他一時金
    間取り 階建 / 階 2階建
    使用部分面積 161.39m² 土地面積 429.16m²(公簿)
    建物構造 木造 築年月 2016年5月(築9年11ヶ月)
    土地権利 所有権 建物名・部屋番号 大麻泉町店舗付住宅
    都市計画 市街化区域 用途地域 1種低層
    建ぺい率 50% 容積率 80%
    駐車場 有 無料 バイク置き場
    駐輪場    
    私道負担面積 なし 接道状況 北西 14.5m 公道 接面17.2m ・ 北東 10.9m 公道 接面9.3m ・ 二方道路
    地目 宅地 地勢 平坦
    総戸数 国土法届出
    アピールポイント ・1階は喫茶店(カフェ)、令和8年7月末閉店予定
    ・2階は3LDKでLDK約22.5帖、広く日当り良好
    ・土地2筆どちらも角地
    26番7、74.91坪
    27番3、54.90坪(現駐車場)
    ※詳細はお問合せください
    ※事務所不在が多いため、メールにてお願いいたします
    リフォーム履歴
    リノベーション履歴
    特記事項 駐車場3台分以上、24時間換気システム
    備考
    管理形態/管理員の勤務形態:-/-
    主要採光面:北西向き
    エネルギー消費性能
    断熱性能
    目安光熱費
    バス・トイレ バス・トイレ別、追焚機能、トイレ2ヶ所
    キッチン
    設備・サービス エアコン2台以上、収納スペース、室内洗濯機置場、冷蔵庫、給湯、プロパンガス、エアコン、FF暖房、灯油、インターネット対応、光ファイバー、複層ガラス
    その他
    条件等 現況 所有者居住中
    引渡可能時期 相談 物件番号 6989465443
    仲介手数料 売買代金の3%+6万円    
    情報公開日 2026年2月12日 次回更新予定日 2026年3月26日
    ケータイ用バーコード

    QRコード

    スマートフォンでこの物件を見る
    スマートフォンからもこの物件をご覧になれます。
    ※「-」と表示されている項目については、情報提供会社にご確認ください。

    この物件の周辺情報

    周辺施設 ホクレンショップFoodFarm大麻北町店
    距離 824m
    周辺施設 フードD365LISTA店
    距離 1426m
    周辺施設 ファミリーマート江別大麻新町店
    距離 363m
    周辺施設 セイコーマート泉町店
    距離 394m
    周辺施設 私立酪農学園大学
    距離 1439m
    周辺施設 私立札幌学院大学
    距離 2713m
    周辺施設 江別市立大麻泉小学校
    距離 134m
    周辺施設 認定こども園あけぼの
    距離 550m

    クイックお問い合わせ

    ここから簡単にお問い合わせをすることができます。
    (SSLでの暗号化での送信を希望されるお客さまは こちら よりお問い合わせください)

    お問い合わせ内容(必須)
    お名前(必須) 姓  名 
    メールアドレス(必須)
    ※携帯電話のメールアドレスをご入力される方はこちらをご確認ください
    電話番号(必須)
    - -

    ※入力いただいた電話番号へSMSまたは音声でパスワードをご連絡します。

    携帯電話の番号をご入力の方へ

    携帯電話の番号をご入力の方へ
    確認画面にて送信ボタンをクリックするとSMSが携帯電話に届きます。
    そのSMSに記載のパスワード(認証番号)を入力し、お問い合わせを完了してください。
    尚、SMSの送信者番号は 0005 202 760 となります。
    これはアットホームの固定番号です。

    備考欄 希望条件、物件案内希望日、質問などがございましたらご記入ください。
    お問い合わせを行う前に「個人情報の取り扱いについて」を必ずお読みください。
    「個人情報の取り扱いについて」に同意いただいた場合は「上記にご同意の上 確認画面へ進む」のボタンをクリックしてください。

    個人情報の取り扱いについて

    皆さまが送付された個人情報はアットホーム(株)のサーバを経由し、お問い合わせ先の不動産会社にメールまたはFAXにて転送されるためアットホーム(株)にも保管されます。アットホーム(株)で保管された個人情報の取り扱いについては、【こちら】をご覧ください。
    また、本画面でご記入いただいた個人情報は、お問い合わせ先の不動産会社でも保管します。 お問い合わせ先の不動産会社が保管する個人情報の取り扱いについては、不動産会社に直接お問い合わせください。

    情報提供会社

    情報提供会社

    (株)ホームプラス

    北海道知事免許 石狩(1)第9576号

    交通:
    札幌市東豊線/新道東駅 徒歩16分
    北海道札幌市東区北三十三条東6丁目2-26 サンタウンビル
    TEL:
    011-299-4898
    所属団体:
    (公社)北海道宅地建物取引業協会会員
    (一社)北海道不動産公正取引協議会加盟

    取引態様:媒介

    • 会社情報
    • 10006537
    スマートフォンで
    この不動産会社を見る
    QRコード
    • とりあえず保存
    • お問い合わせ
    • 提携サイト等より掲載されている物件情報につきましては、不動産会社詳細情報にリンクされていないものがあります。
    • 物件に関するお問合せは、物件詳細ページの「情報提供会社」に表示されている不動産会社へ直接お願いいたします。
    • 間取図は、現況を優先させていただきます。
    • 映像は物件の一部を撮影したものです。物件の契約にあたっての最終判断はご自身の判断に基づいて行ってください。
    • 仲介手数料について仲介手数料

    アットホームは物件情報の適正化に努めております。 内容に誤りがある場合にはこちらへご連絡ください。

    【埼玉住まい情報】では、日本全国の物件から賃貸マンションや賃貸アパート・賃貸一戸建て等の賃貸住宅情報、新築マンション・分譲マンションや中古マンション等の売買マンション情報、新築一戸建てや中古一戸建てなどの戸建住宅、 土地など、総合的な不動産住宅情報検索サービスを提供致します。
    【埼玉住まい情報】から、選りすぐりの不動産物件を探してみましょう。

    【免責事項】
    このコーナーの運営はアットホーム株式会社(https://www.athome.co.jp/)が行っています。
    このコーナーに掲載している物件情報は、「アットホーム不動産情報ネットワーク」に加盟する不動産会社等(情報提供元)から提供されています。信頼性の高い情報提供が行えるよう、最大限の努力をしておりますが、その内容を保証するものではありません。 利用者のみなさまと各情報提供元との取引に起因する損害および情報が掲載されたことに起因する損害等については、株式会社イーシティ埼玉、およびアットホームは一切責任を負いません。
    各物件情報の内容や画像等はすべて現況を優先させていただきます。
    お取引等(お取引の準備、資金調達等を含みます)の際には、内容や契約条件等について、各情報提供元より十分な説明を受け、ご自身でご確認の上、判断してください。
    このコーナーへの物件情報のご掲載、その他不動産業務ソリューション等についての不動産会社様のお問合せはこちらからお願いいたします。

    物件画像: