群馬県前橋市総社町総社(群馬総社駅)の売店舗:物件詳細
交通 所在地 |
駅徒歩 |
価格 管理費等 |
使用部分面積 土地面積 |
用途地域 建物構造 |
物件種目 築年月 |
|
JR上越線/群馬総社
群馬県前橋市総社町総社
|
21分
|
2,480万円
-
|
231.61m²
158.12m²
|
近隣商業、1種中高
鉄骨造
|
売店舗・事務所(一括)
1988年11月(築37年7ヶ月)
|
|
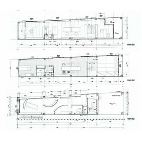
間取図
|
外観
|
<
その他の画像
>
|
| 交通 | JR上越線 群馬総社駅 徒歩21分 |
| 所在地 |
群馬県前橋市総社町総社
|
| 物件種目 |
売店舗・事務所(一括) |
| 価格 |
2,480万円 |
管理費等 |
- |
| 修繕積立金 |
- |
借地期間・地代(月額) |
- |
| 権利金 |
- |
敷金または保証金 |
- / - |
| 維持費等 |
- |
その他一時金 |
- |
| 間取り |
- |
階建 / 階 |
3階建 |
| 使用部分面積 |
231.61m² |
土地面積 |
158.12m²(公簿) |
| 建物構造 |
鉄骨造 |
築年月 |
1988年11月(築37年7ヶ月)
|
| 土地権利 |
所有権 |
建物名・部屋番号 |
前橋市総社町総社 事務所 |
| 都市計画 |
市街化区域 |
用途地域 |
近隣商業、1種中高 |
| 建ぺい率 |
80% |
容積率 |
200% |
| 駐車場 |
- |
バイク置き場 |
- |
| 駐輪場 |
- |
|
|
| 私道負担面積 |
- |
接道状況 |
北
・
東
・
二方道路
|
| 地目 |
宅地 |
地勢 |
平坦 |
| 総戸数 |
- |
国土法届出 |
- |
| アピールポイント |
視認性の高い立地に建つ3階建て売り事務所です。
現在は所有者使用中のため、建物の管理状態も良好です!
自社利用だけでなく将来的な賃貸運用にも利用可能です! |
| リフォーム履歴 |
■水回り:2016年7月 キッチン、トイレ、給排水管、給湯器 ■内装:2016年8月 内装全面(床・壁・天井・建具) ■外装:2016年8月 外壁、屋根 ※実施年月は最も古い履歴を表示 |
| リノベーション履歴 |
- |
| 特記事項 |
駐車場3台分以上、都道府県道沿いに面する |
| 備考 |
管理形態/管理員の勤務形態:-/-
|
| エネルギー消費性能 |
- |
| 断熱性能 |
- |
| 目安光熱費 |
- |
| バス・トイレ |
- |
| キッチン |
- |
| 設備・サービス |
エアコン2台以上、給湯 |
| その他 |
- |
| 条件等 |
- |
現況 |
使用中 |
| 引渡可能時期 |
相談 |
物件番号 |
6989686414 |
| 情報公開日 |
2026年3月2日 |
次回更新予定日 |
2026年5月21日 |
| ケータイ用バーコード |
- スマートフォンでこの物件を見る
- スマートフォンからもこの物件をご覧になれます。
|
※「-」と表示されている項目については、情報提供会社にご確認ください。
| 周辺施設 |
セブンイレブン前橋総社町東店 |
| 距離 |
301m |
| 周辺施設 |
ローソン前橋総社町2丁目店 |
| 距離 |
343m |
ここから簡単にお問い合わせをすることができます。
(SSLでの暗号化での送信を希望されるお客さまは
こちら
よりお問い合わせください)
お問い合わせを行う前に
「個人情報の取り扱いについて」を必ずお読みください。
「個人情報の取り扱いについて」に同意いただいた場合は「上記にご同意の上 確認画面へ進む」のボタンをクリックしてください。
個人情報の取り扱いについて
皆さまが送付された個人情報はアットホーム(株)のサーバを経由し、お問い合わせ先の不動産会社にメールまたはFAXにて転送されるためアットホーム(株)にも保管されます。アットホーム(株)で保管された個人情報の取り扱いについては、【こちら】をご覧ください。
また、本画面でご記入いただいた個人情報は、お問い合わせ先の不動産会社でも保管します。 お問い合わせ先の不動産会社が保管する個人情報の取り扱いについては、不動産会社に直接お問い合わせください。
群馬県知事免許(1)第8102号 |
|---|
- 交通:
- JR上越線/井野駅 徒歩5分
- 群馬県高崎市井野町196-10 ロイヤル井野101
- TEL:
- 027-384-3577
- FAX:
- 027-384-3468
- 所属団体:
- (公社)全日本不動産協会会員(公社)首都圏不動産公正取引協議会加盟
取引態様:一般媒介  - 00282710
|
- スマートフォンで
この不動産会社を見る

|
- 提携サイト等より掲載されている物件情報につきましては、不動産会社詳細情報にリンクされていないものがあります。
- 物件に関するお問合せは、物件詳細ページの「情報提供会社」に表示されている不動産会社へ直接お願いいたします。
- 間取図は、現況を優先させていただきます。
- 映像は物件の一部を撮影したものです。物件の契約にあたっての最終判断はご自身の判断に基づいて行ってください。
- 仲介手数料について

アットホームは物件情報の適正化に努めております。
内容に誤りがある場合にはこちらへご連絡ください。