不動産 賃貸 マンション等の住宅情報:埼玉住まい情報


福島県郡山市堤2丁目(郡山駅)の売店舗:物件詳細

  • 物件詳細
  • 情報の見方
  • 印刷用画面
交通
所在地
駅徒歩 価格
管理費等
使用部分面積
土地面積
用途地域
建物構造
物件種目
築年月

JR東北本線/郡山
【バス】20分 堤 停歩2分

福島県郡山市堤2丁目


3,800万円

419.47m²

266.00m²

2種住居

RC

売店舗・事務所(一括)

1998年1月(築28年5ヶ月)

おすすめコメント

【内覧可能】新さくら通り沿い住宅付店舗・事務所です!国道4号線・コスモス通のアクセス良好♪福島交通バス停「堤」から徒歩約2分!物件詳細は(株)リプロ東日本へお問い合わせ下さい♪

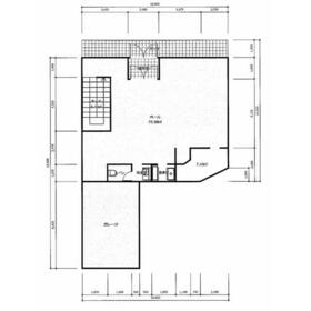
間取図

間取図

1階2階店舗・事務所間取

外観

外観

新さくら通り沿い

<
その他の画像
  • 外観
  • 室内
  • 室内
  • 室内
  • その他
  • 室内
  • 室内
  • 室内
  • 室内
  • 室内
  • 間取図
  • その他
  • 玄関
  • 室内
  • 間取図
  • キッチン
  • キッチン
  • 洗面
  • バス/シャワー
  • トイレ
  • 室内
  • 室内
  • 室内
  • 周辺環境
  • 周辺環境
  • 周辺環境
>
    • とりあえず保存
    • お問い合わせ
    交通

    JR東北本線 郡山駅
    【バス】 20分 堤 停歩2分

    所在地 福島県郡山市堤2丁目
    物件種目 売店舗・事務所(一括)
    価格 3,800万円 管理費等
    修繕積立金 借地期間・地代(月額)
    権利金 敷金または保証金 - / -
    維持費等 その他一時金
    間取り 階建 / 階 3階建
    使用部分面積 419.47m² 土地面積 266.00m²(公簿)
    建物構造 RC 築年月 1998年1月(築28年5ヶ月)
    土地権利 所有権 建物名・部屋番号 郡山市堤二丁目 店舗・事務所付住宅
    都市計画 市街化区域 用途地域 2種住居
    建ぺい率 60% 容積率 200%
    駐車場 有 無料 バイク置き場
    駐輪場    
    私道負担面積 接道状況 北 18.0m 公道
    地目 宅地 地勢 平坦
    総戸数 国土法届出
    アピールポイント 夢住まい館(株)リプロ東日本へのお問い合わせは下記まで(*^-^*)
    → TEL:0120-972-175

    【物件point!】
    ◆新さくら通り沿いで中央分離帯なくアクセスしやすい立地!
    ◇オフィスとしても、店舗としても使い方自由自在!
    ◆近隣商業施設が充実しており生活も便利!

    ★(株)リプロ東日本★
    あらゆる不動産の売買仲介・買取・リフォーム等のご相談からお手続きのサポート・引渡し後のアフターフォローまで、トータルサービスでお客様をサポート致します!
    〇住宅購入何から始めたらいいのかわからない方へ、ポイントやスケジュールを分かりやすく説明いたします!
    〇オプション工事・リフォーム工事もOK
    ~経験豊富なスタッフがお客様のニーズに合わせ提案させていただきます~
    リフォーム履歴
    リノベーション履歴
    特記事項 居抜き、駐車場3台分以上、天井高2.5M以上
    備考
    管理形態/管理員の勤務形態:-/-
    3階居住スペース(3SLDK)
    エネルギー消費性能
    断熱性能
    目安光熱費
    バス・トイレ バス・トイレ別、追焚機能、トイレ2ヶ所
    キッチン
    設備・サービス エアコン2台以上、収納スペース、室内洗濯機置場、給湯、プロパンガス、火災警報器(報知機)、インターネット対応
    その他
    条件等 現況
    引渡可能時期 相談 物件番号 6989998684
    情報公開日 2026年4月30日 次回更新予定日 2026年5月16日
    ケータイ用バーコード

    QRコード

    スマートフォンでこの物件を見る
    スマートフォンからもこの物件をご覧になれます。
    ※「-」と表示されている項目については、情報提供会社にご確認ください。

    この物件の周辺情報

    周辺施設 ツルハドラッグ郡山堤店
    距離 189m
    周辺施設 モスバーガー郡山新さくら通り店
    距離 195m
    周辺施設 セブンイレブン郡山鳴神店
    距離 222m
    周辺施設 ゆず庵郡山店
    距離 234m
    周辺施設 西部公園
    距離 403m
    周辺施設 スターバックスコーヒー郡山コスモス通り店
    距離 451m
    周辺施設 はま寿司郡山堤店
    距離 413m
    周辺施設 サイゼリヤ郡山新さくら通り店
    距離 365m

    クイックお問い合わせ

    ここから簡単にお問い合わせをすることができます。
    (SSLでの暗号化での送信を希望されるお客さまは こちら よりお問い合わせください)

    お問い合わせ内容(必須)
    お名前(必須) 姓  名 
    メールアドレス(必須)
    ※携帯電話のメールアドレスをご入力される方はこちらをご確認ください
    電話番号(必須)
    - -

    ※入力いただいた電話番号へSMSまたは音声でパスワードをご連絡します。

    携帯電話の番号をご入力の方へ

    携帯電話の番号をご入力の方へ
    確認画面にて送信ボタンをクリックするとSMSが携帯電話に届きます。
    そのSMSに記載のパスワード(認証番号)を入力し、お問い合わせを完了してください。
    尚、SMSの送信者番号は 0005 202 760 となります。
    これはアットホームの固定番号です。

    備考欄 希望条件、物件案内希望日、質問などがございましたらご記入ください。
    お問い合わせを行う前に「個人情報の取り扱いについて」を必ずお読みください。
    「個人情報の取り扱いについて」に同意いただいた場合は「上記にご同意の上 確認画面へ進む」のボタンをクリックしてください。

    個人情報の取り扱いについて

    皆さまが送付された個人情報はアットホーム(株)のサーバを経由し、お問い合わせ先の不動産会社にメールまたはFAXにて転送されるためアットホーム(株)にも保管されます。アットホーム(株)で保管された個人情報の取り扱いについては、【こちら】をご覧ください。
    また、本画面でご記入いただいた個人情報は、お問い合わせ先の不動産会社でも保管します。 お問い合わせ先の不動産会社が保管する個人情報の取り扱いについては、不動産会社に直接お問い合わせください。

    情報提供会社

    情報提供会社

    夢住まい館 (株)リプロ東日本

    福島県知事免許(2)第3301号

    交通:
    JR東北本線/郡山駅 【バス】20分 福島交通「島西」 停歩1分
    福島県郡山市島2丁目43-12 
    TEL:
    024-983-6106
    FAX:
    024-983-6107
    所属団体:
    (公社)福島県宅地建物取引業協会会員
    東北地区不動産公正取引協議会加盟

    取引態様:専任媒介

    • 会社情報
    • 20003048
    スマートフォンで
    この不動産会社を見る
    QRコード
    • とりあえず保存
    • お問い合わせ
    • 提携サイト等より掲載されている物件情報につきましては、不動産会社詳細情報にリンクされていないものがあります。
    • 物件に関するお問合せは、物件詳細ページの「情報提供会社」に表示されている不動産会社へ直接お願いいたします。
    • 間取図は、現況を優先させていただきます。
    • 映像は物件の一部を撮影したものです。物件の契約にあたっての最終判断はご自身の判断に基づいて行ってください。
    • 仲介手数料について仲介手数料

    アットホームは物件情報の適正化に努めております。 内容に誤りがある場合にはこちらへご連絡ください。

    【埼玉住まい情報】では、日本全国の物件から賃貸マンションや賃貸アパート・賃貸一戸建て等の賃貸住宅情報、新築マンション・分譲マンションや中古マンション等の売買マンション情報、新築一戸建てや中古一戸建てなどの戸建住宅、 土地など、総合的な不動産住宅情報検索サービスを提供致します。
    【埼玉住まい情報】から、選りすぐりの不動産物件を探してみましょう。

    【免責事項】
    このコーナーの運営はアットホーム株式会社(https://www.athome.co.jp/)が行っています。
    このコーナーに掲載している物件情報は、「アットホーム不動産情報ネットワーク」に加盟する不動産会社等(情報提供元)から提供されています。信頼性の高い情報提供が行えるよう、最大限の努力をしておりますが、その内容を保証するものではありません。 利用者のみなさまと各情報提供元との取引に起因する損害および情報が掲載されたことに起因する損害等については、株式会社イーシティ埼玉、およびアットホームは一切責任を負いません。
    各物件情報の内容や画像等はすべて現況を優先させていただきます。
    お取引等(お取引の準備、資金調達等を含みます)の際には、内容や契約条件等について、各情報提供元より十分な説明を受け、ご自身でご確認の上、判断してください。
    このコーナーへの物件情報のご掲載、その他不動産業務ソリューション等についての不動産会社様のお問合せはこちらからお願いいたします。

    物件画像: