宮崎県宮崎市月見ケ丘2丁目(田吉駅)の売事務所:物件詳細
交通 所在地 |
駅徒歩 |
価格 管理費等 |
使用部分面積 土地面積 |
用途地域 建物構造 |
物件種目 築年月 |
|
JR宮崎空港線/田吉 [バス利用可] バス 宮崎交通 月見ケ丘 停歩2分
宮崎県宮崎市月見ケ丘2丁目
|
14分
|
7,000万円
-
|
272.19m²
352.32m²
|
1種低層
鉄骨造
|
売事務所(一括)
2011年2月(築14年11ヶ月)
|
|
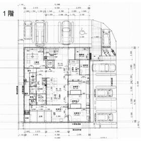
間取図
1階 現況と相違する場合現況を優先
|
間取図
2階 現況と相違する場合現況を優先
|
<
その他の画像
>
|
| 交通 | JR宮崎空港線 田吉駅 徒歩14分 [バス利用可] バス 宮崎交通 月見ケ丘 停歩2分 |
| 所在地 |
宮崎県宮崎市月見ケ丘2丁目
|
| 物件種目 |
売事務所(一括) |
| 価格 |
7,000万円 |
管理費等 |
- |
| 修繕積立金 |
- |
借地期間・地代(月額) |
- |
| 権利金 |
- |
敷金または保証金 |
- / - |
| 維持費等 |
- |
その他一時金 |
- |
| 間取り |
- |
階建 / 階 |
2階建 |
| 使用部分面積 |
272.19m² |
土地面積 |
352.32m²(公簿) |
| 建物構造 |
鉄骨造 |
築年月 |
2011年2月(築14年11ヶ月)
|
| 土地権利 |
所有権 |
建物名・部屋番号 |
月見ケ丘 診療所跡 |
| 都市計画 |
市街化区域 |
用途地域 |
1種低層 |
| 建ぺい率 |
50% |
容積率 |
80% |
| 駐車場 |
有 無料 |
バイク置き場 |
- |
| 駐輪場 |
- |
|
|
| 私道負担面積 |
- |
接道状況 |
東 5.0m 公道 接面17.0m
・
北 11.0m 公道 接面17.0m
・
二方道路
|
| 地目 |
宅地 |
地勢 |
- |
| 総戸数 |
- |
国土法届出 |
- |
| アピールポイント |
・築13年の鉄骨造ですので、十分建物価値があります。月見ケ丘団地内では比較的交通量の多い通りです。
・小型エレベーター・シャワールームあり。
・使用用途によっては建築基準法の用途変更確認申請を要します。
(既存用途:診療所) 用途変更に要する費用は買主様のご負担となります。
・内覧の際は事前ご予約が必要です。お気軽にお問合せください。 |
| リフォーム履歴 |
- |
| リノベーション履歴 |
- |
| 特記事項 |
駐車場3台分以上 |
| 備考 |
管理形態/管理員の勤務形態:-/-
|
| エネルギー消費性能 |
- |
| 断熱性能 |
- |
| 目安光熱費 |
- |
| バス・トイレ |
シャワールーム |
| キッチン |
- |
| 設備・サービス |
給湯、プロパンガス、複層ガラス |
| その他 |
エレベーター |
| 条件等 |
- |
現況 |
空 |
| 引渡可能時期 |
即時 |
物件番号 |
6985521663 |
| 情報公開日 |
2025年12月25日 |
次回更新予定日 |
2026年1月8日 |
| ケータイ用バーコード |
- スマートフォンでこの物件を見る
- スマートフォンからもこの物件をご覧になれます。
|
※「-」と表示されている項目については、情報提供会社にご確認ください。
| 周辺施設 |
ファミリーマート月見ヶ丘団地店 |
| 距離 |
154m |
| 周辺施設 |
一般財団法人弘潤会野崎病院 |
| 距離 |
2404m |
ここから簡単にお問い合わせをすることができます。
(SSLでの暗号化での送信を希望されるお客さまは
こちら
よりお問い合わせください)
お問い合わせを行う前に
「個人情報の取り扱いについて」を必ずお読みください。
「個人情報の取り扱いについて」に同意いただいた場合は「上記にご同意の上 確認画面へ進む」のボタンをクリックしてください。
個人情報の取り扱いについて
皆さまが送付された個人情報はアットホーム(株)のサーバを経由し、お問い合わせ先の不動産会社にメールまたはFAXにて転送されるためアットホーム(株)にも保管されます。アットホーム(株)で保管された個人情報の取り扱いについては、【こちら】をご覧ください。
また、本画面でご記入いただいた個人情報は、お問い合わせ先の不動産会社でも保管します。 お問い合わせ先の不動産会社が保管する個人情報の取り扱いについては、不動産会社に直接お問い合わせください。
宮崎県知事免許(1)第5110号 |
|---|
- 交通:
- JR日豊本線/佐土原駅 徒歩24分 【バス】 宮崎交通 南広瀬 停歩7分
- 宮崎県宮崎市佐土原町下那珂4377-24
- TEL:
- 0985-69-1824
- 所属団体:
- (一社)宮崎県宅地建物取引業協会会員(一社)九州不動産公正取引協議会加盟
取引態様:媒介  - 80507449
|
- スマートフォンで
この不動産会社を見る

|
- 提携サイト等より掲載されている物件情報につきましては、不動産会社詳細情報にリンクされていないものがあります。
- 物件に関するお問合せは、物件詳細ページの「情報提供会社」に表示されている不動産会社へ直接お願いいたします。
- 間取図は、現況を優先させていただきます。
- 映像は物件の一部を撮影したものです。物件の契約にあたっての最終判断はご自身の判断に基づいて行ってください。
- 仲介手数料について

アットホームは物件情報の適正化に努めております。
内容に誤りがある場合にはこちらへご連絡ください。