宮崎県東臼杵郡門川町上町1丁目(門川駅)の売事務所:物件詳細
交通 所在地 |
駅徒歩 |
価格 管理費等 |
使用部分面積 土地面積 |
用途地域 建物構造 |
物件種目 築年月 |
|
JR日豊本線/門川 [バス利用可] バス 中須 停歩210m
宮崎県東臼杵郡門川町上町1丁目
|
1400m
|
1,880万円
-
|
217.10m²
869.23m²
|
商業地域
鉄骨造
|
売事務所(一括)
1974年6月(築51年10ヶ月)
|
|
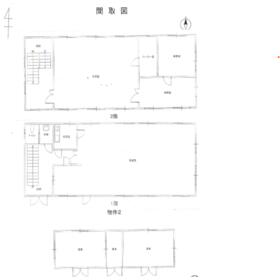
間取図
|
|
その他の画像
|
| 交通 | JR日豊本線 門川駅 徒歩1400m [バス利用可] バス 中須 停歩210m |
| 所在地 |
宮崎県東臼杵郡門川町上町1丁目
|
| 物件種目 |
売事務所(一括) |
| 価格 |
1,880万円 |
管理費等 |
- |
| 修繕積立金 |
- |
借地期間・地代(月額) |
- |
| 権利金 |
- |
敷金または保証金 |
- / - |
| 維持費等 |
- |
その他一時金 |
- |
| 間取り |
- |
階建 / 階 |
2階建 |
| 使用部分面積 |
217.10m² |
土地面積 |
869.23m² |
| 建物構造 |
鉄骨造 |
築年月 |
1974年6月(築51年10ヶ月)
|
| 土地権利 |
所有権 |
建物名・部屋番号 |
|
| 都市計画 |
市街化区域 |
用途地域 |
商業地域 |
| 建ぺい率 |
- |
容積率 |
- |
| 駐車場 |
- |
バイク置き場 |
- |
| 駐輪場 |
- |
|
|
| 私道負担面積 |
- |
接道状況 |
西 6.0m 公道
|
| 地目 |
- |
地勢 |
- |
| 総戸数 |
- |
国土法届出 |
- |
| アピールポイント |
《当社自社物件につき、エンド向け手数料無料です!!》
お客様からのメールでのお問い合わせについて弊社からの対応は電話を前提とさせていただきます。あらかじめご了承いただきますようお願いいたします。 |
| リフォーム履歴 |
- |
| リノベーション履歴 |
- |
| 特記事項 |
- |
| 備考 |
管理形態/管理員の勤務形態:-/-
敷地内、別途建物(倉庫)有り
--------------------------------
●倉庫:46.44㎡(14坪)
木造スレート葺平屋建
平成4年8月1日築(平成11年増築)
●令和6年度評価証明額
土地:約1339万円 家屋:約329万円
|
| エネルギー消費性能 |
- |
| 断熱性能 |
- |
| 目安光熱費 |
- |
| バス・トイレ |
- |
| キッチン |
- |
| 設備・サービス |
- |
| その他 |
- |
| 条件等 |
- |
現況 |
空 |
| 引渡可能時期 |
即時 |
物件番号 |
6986127844 |
| 情報公開日 |
2026年2月13日 |
次回更新予定日 |
2026年3月27日 |
| ケータイ用バーコード |
- スマートフォンでこの物件を見る
- スマートフォンからもこの物件をご覧になれます。
|
※「-」と表示されている項目については、情報提供会社にご確認ください。
| 周辺施設 |
セブンイレブン門川上町6丁目店 |
| 距離 |
313m |
ここから簡単にお問い合わせをすることができます。
(SSLでの暗号化での送信を希望されるお客さまは
こちら
よりお問い合わせください)
お問い合わせを行う前に
「個人情報の取り扱いについて」を必ずお読みください。
「個人情報の取り扱いについて」に同意いただいた場合は「上記にご同意の上 確認画面へ進む」のボタンをクリックしてください。
個人情報の取り扱いについて
皆さまが送付された個人情報はアットホーム(株)のサーバを経由し、お問い合わせ先の不動産会社にメールまたはFAXにて転送されるためアットホーム(株)にも保管されます。アットホーム(株)で保管された個人情報の取り扱いについては、【こちら】をご覧ください。
また、本画面でご記入いただいた個人情報は、お問い合わせ先の不動産会社でも保管します。 お問い合わせ先の不動産会社が保管する個人情報の取り扱いについては、不動産会社に直接お問い合わせください。
宮崎県知事免許(11)第2940号 |
|---|
- 交通:
- JR日豊本線/宮崎駅 徒歩25分 【バス】 中津瀬町 停歩2分
- 宮崎県宮崎市中津瀬町25番地
- TEL:
- 0985-67-6390
- FAX:
- 0985-69-0466
- 所属団体:
- (一社)宮崎県宅地建物取引業協会会員(一社)九州不動産公正取引協議会加盟
取引態様:売主  - 80501560
|
- スマートフォンで
この不動産会社を見る

|
- 提携サイト等より掲載されている物件情報につきましては、不動産会社詳細情報にリンクされていないものがあります。
- 物件に関するお問合せは、物件詳細ページの「情報提供会社」に表示されている不動産会社へ直接お願いいたします。
- 間取図は、現況を優先させていただきます。
- 映像は物件の一部を撮影したものです。物件の契約にあたっての最終判断はご自身の判断に基づいて行ってください。
- 仲介手数料について

アットホームは物件情報の適正化に努めております。
内容に誤りがある場合にはこちらへご連絡ください。