東京都文京区春日2丁目(後楽園駅)の売事務所:物件詳細
交通 所在地 |
駅徒歩 |
価格 管理費等 |
使用部分面積 土地面積 |
用途地域 建物構造 |
物件種目 築年月 |
|
東京メトロ丸ノ内線/後楽園
東京都文京区春日2丁目
|
10分
|
3,960万円
15,800円
|
33.58m²
406.12m²
|
商業地域、1種中高
SRC
|
売事務所
1991年11月(築34年2ヶ月)
|
|
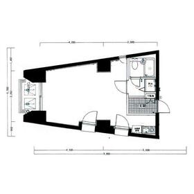
間取図
|
外観
|
その他の画像
|
| 交通 | 東京メトロ丸ノ内線 後楽園駅 徒歩10分 |
|---|
| その他の交通 | 東京メトロ南北線 後楽園駅 徒歩10分 都営大江戸線 春日駅 徒歩11分 |
| 所在地 |
東京都文京区春日2丁目
|
| 物件種目 |
売事務所 |
| 価格 |
3,960万円 |
管理費等 |
15,800円 |
| 修繕積立金 |
9,700円 |
借地期間・地代(月額) |
- |
| 権利金 |
- |
敷金または保証金 |
- / - |
| 維持費等 |
- |
その他一時金 |
なし |
| 間取り |
ワンルーム |
階建 / 階 |
地上13階地下1階建 / 3階 |
| 使用部分面積 |
33.58m²(壁芯) |
土地面積 |
406.12m² |
| 建物構造 |
SRC |
築年月 |
1991年11月(築34年2ヶ月)
|
| 土地権利 |
所有権 |
建物名・部屋番号 |
303 |
| 都市計画 |
- |
用途地域 |
商業地域、1種中高 |
| 建ぺい率 |
- |
容積率 |
- |
| 駐車場 |
有 38,500円/月 |
バイク置き場 |
無 |
| 駐輪場 |
空無 |
|
|
| 私道負担面積 |
- |
接道状況 |
-
|
| 地目 |
- |
地勢 |
- |
| 総戸数 |
25戸 |
国土法届出 |
- |
| リフォーム履歴 |
■共用部の大規模修繕工事:2023年1月 外壁塗装・鉄部塗装・屋上防水等 ※実施年月は最も古い履歴を表示 |
| リノベーション履歴 |
- |
| 特記事項 |
24時間利用可、角部屋、管理人日勤、国道沿いに面する |
| 備考 |
管理形態/管理員の勤務形態:一部委託/日勤(㈱東急コミュニティ他)
バルコニー:2.28m²
主要採光面:南東向き
利回り:4.00%
年間予定賃料収入:158.4万円
月額132,000円で賃貸中。
|
| エネルギー消費性能 |
- |
| 断熱性能 |
- |
| 目安光熱費 |
- |
| バス・トイレ |
シャワールーム |
| キッチン |
- |
| 設備・サービス |
室内洗濯機置場、防犯カメラ、給湯、都市ガス、エアコン、インターネット対応、ケーブルTV |
| その他 |
エレベーター |
| 条件等 |
オーナーチェンジ |
現況 |
賃貸中 |
| 引渡可能時期 |
即時 |
物件番号 |
6987605346 |
| 情報公開日 |
2025年10月26日 |
次回更新予定日 |
2025年12月24日 |
| ケータイ用バーコード |
- スマートフォンでこの物件を見る
- スマートフォンからもこの物件をご覧になれます。
|
※「-」と表示されている項目については、情報提供会社にご確認ください。
| 周辺施設 |
まいばすけっと春日2丁目店 |
| 距離 |
22m |
| 周辺施設 |
セブンイレブン文京小石川4丁目店 |
| 距離 |
114m |
| 周辺施設 |
私立国際仏教学大学院大学 |
| 距離 |
637m |
| 周辺施設 |
私立中央大学小石川キャンパス |
| 距離 |
700m |
| 周辺施設 |
独立行政法人地域医療機能推進機構JCHO東京新宿メディカルセンター |
| 距離 |
1240m |
ここから簡単にお問い合わせをすることができます。
(SSLでの暗号化での送信を希望されるお客さまは
こちら
よりお問い合わせください)
お問い合わせを行う前に
「個人情報の取り扱いについて」を必ずお読みください。
「個人情報の取り扱いについて」に同意いただいた場合は「上記にご同意の上 確認画面へ進む」のボタンをクリックしてください。
個人情報の取り扱いについて
皆さまが送付された個人情報はアットホーム(株)のサーバを経由し、お問い合わせ先の不動産会社にメールまたはFAXにて転送されるためアットホーム(株)にも保管されます。アットホーム(株)で保管された個人情報の取り扱いについては、【こちら】をご覧ください。
また、本画面でご記入いただいた個人情報は、お問い合わせ先の不動産会社でも保管します。 お問い合わせ先の不動産会社が保管する個人情報の取り扱いについては、不動産会社に直接お問い合わせください。
東京都知事免許(4)第91999号 |
|---|
- 交通:
- JR中央線/立川駅 徒歩6分
- 東京都立川市錦町2丁目1-27 アイホームビル
- TEL:
- 042-512-9413
- FAX:
- 042-512-9414
- 所属団体:
- (公社)全日本不動産協会会員(公社)首都圏不動産公正取引協議会加盟
取引態様:媒介  - 00986302
|
- スマートフォンで
この不動産会社を見る

|
- 提携サイト等より掲載されている物件情報につきましては、不動産会社詳細情報にリンクされていないものがあります。
- 物件に関するお問合せは、物件詳細ページの「情報提供会社」に表示されている不動産会社へ直接お願いいたします。
- 間取図は、現況を優先させていただきます。
- 映像は物件の一部を撮影したものです。物件の契約にあたっての最終判断はご自身の判断に基づいて行ってください。
- 仲介手数料について

アットホームは物件情報の適正化に努めております。
内容に誤りがある場合にはこちらへご連絡ください。