福島県会津若松市中島町(会津若松駅)の売事務所:物件詳細
交通 所在地 |
駅徒歩 |
価格 管理費等 |
使用部分面積 土地面積 |
用途地域 建物構造 |
物件種目 築年月 |
|
JR磐越西線/会津若松
福島県会津若松市中島町
|
27分
|
900万円
-
|
40.54m²
489.00m²
|
1種住居、2種住居
軽量鉄骨造
|
売事務所(一括)
2023年11月(築2年5ヶ月)
|
|
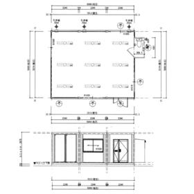
間取図
|
|
その他の画像
|
| 交通 | JR磐越西線 会津若松駅 徒歩27分 |
| 所在地 |
福島県会津若松市中島町
|
| 物件種目 |
売事務所(一括) |
| 価格 |
900万円 |
管理費等 |
- |
| 修繕積立金 |
- |
借地期間・地代(月額) |
- |
| 権利金 |
- |
敷金または保証金 |
- / - |
| 維持費等 |
- |
その他一時金 |
- |
| 間取り |
- |
階建 / 階 |
1階建 |
| 使用部分面積 |
40.54m² |
土地面積 |
489.00m² |
| 建物構造 |
軽量鉄骨造 |
築年月 |
2023年11月(築2年5ヶ月)
|
| 土地権利 |
所有権 |
建物名・部屋番号 |
|
| 都市計画 |
市街化区域 |
用途地域 |
1種住居、2種住居 |
| 建ぺい率 |
60% |
容積率 |
200% |
| 駐車場 |
- |
バイク置き場 |
- |
| 駐輪場 |
- |
|
|
| 私道負担面積 |
なし |
接道状況 |
北 6.0m 私道
|
| 地目 |
原野 |
地勢 |
- |
| 総戸数 |
- |
国土法届出 |
- |
| リフォーム履歴 |
- |
| リノベーション履歴 |
- |
| 特記事項 |
駐車場3台分以上 |
| 備考 |
管理形態/管理員の勤務形態:-/-
●公簿売買・現況引き渡し(境界非明示)
●道路は未帰属の開発道路(私道)※所有権なし
●道路の使用利用の同意が必要な場合は買主負担
●道路に未接道の為、水路占用許可、43条2項2号許可要
●水道布設替が必要な場合買主負担
●南側河川と高低差2m、がけ地規制対象
|
| エネルギー消費性能 |
- |
| 断熱性能 |
- |
| 目安光熱費 |
- |
| バス・トイレ |
トイレ |
| キッチン |
- |
| 設備・サービス |
- |
| その他 |
- |
| 条件等 |
- |
現況 |
使用中 |
| 引渡可能時期 |
相談 |
物件番号 |
6989194470 |
| 仲介手数料 |
売買代金の3%+6万円 |
|
|
| 情報公開日 |
2026年1月23日 |
次回更新予定日 |
2026年3月24日 |
| ケータイ用バーコード |
- スマートフォンでこの物件を見る
- スマートフォンからもこの物件をご覧になれます。
|
※「-」と表示されている項目については、情報提供会社にご確認ください。
ここから簡単にお問い合わせをすることができます。
(SSLでの暗号化での送信を希望されるお客さまは
こちら
よりお問い合わせください)
お問い合わせを行う前に
「個人情報の取り扱いについて」を必ずお読みください。
「個人情報の取り扱いについて」に同意いただいた場合は「上記にご同意の上 確認画面へ進む」のボタンをクリックしてください。
個人情報の取り扱いについて
皆さまが送付された個人情報はアットホーム(株)のサーバを経由し、お問い合わせ先の不動産会社にメールまたはFAXにて転送されるためアットホーム(株)にも保管されます。アットホーム(株)で保管された個人情報の取り扱いについては、【こちら】をご覧ください。
また、本画面でご記入いただいた個人情報は、お問い合わせ先の不動産会社でも保管します。 お問い合わせ先の不動産会社が保管する個人情報の取り扱いについては、不動産会社に直接お問い合わせください。
福島県知事免許(14)第50029号 |
|---|
- 交通:
- JR磐越西線/会津若松駅 徒歩6分
- 福島県会津若松市中央3丁目5-11
- TEL:
- 0242-23-4520
- FAX:
- 0242-37-1080
- 所属団体:
- (公社)福島県宅地建物取引業協会会員東北地区不動産公正取引協議会加盟
取引態様:媒介  - 20002996
|
- スマートフォンで
この不動産会社を見る

|
- 提携サイト等より掲載されている物件情報につきましては、不動産会社詳細情報にリンクされていないものがあります。
- 物件に関するお問合せは、物件詳細ページの「情報提供会社」に表示されている不動産会社へ直接お願いいたします。
- 間取図は、現況を優先させていただきます。
- 映像は物件の一部を撮影したものです。物件の契約にあたっての最終判断はご自身の判断に基づいて行ってください。
- 仲介手数料について

アットホームは物件情報の適正化に努めております。
内容に誤りがある場合にはこちらへご連絡ください。