千葉県千葉市中央区春日2丁目(西千葉駅)の売その他:物件詳細
交通 所在地 |
駅徒歩 |
価格 管理費等 |
使用部分面積 土地面積 |
用途地域 建物構造 |
物件種目 築年月 |
|
JR総武線/西千葉
千葉県千葉市中央区春日2丁目
|
4分
|
15,800万円
-
|
327.91m²
189.88m²
|
1種住居
RC
|
売ビル
1993年12月(築32年1ヶ月)
|
|
間取図
|
外観
外観①
|
<
その他の画像
>
|
| 交通 | JR総武線 西千葉駅 徒歩4分 |
|---|
| その他の交通 | JR総武本線 千葉駅 徒歩19分 京成千葉線 西登戸駅 徒歩7分 |
| 所在地 |
千葉県千葉市中央区春日2丁目
|
| 物件種目 |
売ビル |
| 価格 |
15,800万円 |
管理費等 |
- |
| 修繕積立金 |
- |
借地期間・地代(月額) |
- |
| 権利金 |
- |
敷金または保証金 |
- / - |
| 維持費等 |
- |
その他一時金 |
- |
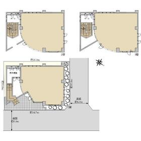
| 間取り |
- |
階建 / 階 |
3階建 |
| 使用部分面積 |
327.91m² |
土地面積 |
189.88m²(公簿) |
| 建物構造 |
RC |
築年月 |
1993年12月(築32年1ヶ月)
|
| 土地権利 |
所有権 |
建物名・部屋番号 |
千葉市中央区春日2丁目一棟ビル |
| 都市計画 |
市街化区域 |
用途地域 |
1種住居 |
| 建ぺい率 |
70% |
容積率 |
200% |
| 駐車場 |
無 |
バイク置き場 |
- |
| 駐輪場 |
- |
|
|
| 私道負担面積 |
- |
接道状況 |
北東 6.0m 公道 接面14.7m
・
北西 4.0m 公道 接面10.4m
・
二方道路
|
| 地目 |
- |
地勢 |
平坦 |
| 総戸数 |
- |
国土法届出 |
- |
| アピールポイント |
◎平成5年12月築
◎RC造
◎延べ床面積:327.91㎡
☆土地面積:189.88㎡
☆用途地域:第一種住居地域
☆建ぺい率:70% 容積率:200%
☆北東北西の角地
|
| リフォーム履歴 |
- |
| リノベーション履歴 |
- |
| 特記事項 |
- |
| 備考 |
管理形態/管理員の勤務形態:-/-
|
| エネルギー消費性能 |
- |
| 断熱性能 |
- |
| 目安光熱費 |
- |
| バス・トイレ |
- |
| キッチン |
- |
| 設備・サービス |
給湯、都市ガス |
| その他 |
- |
| 条件等 |
- |
現況 |
空 |
| 引渡可能時期 |
即時 |
物件番号 |
1012458787 |
| 情報公開日 |
2025年9月10日 |
次回更新予定日 |
2025年12月9日 |
| ケータイ用バーコード |
- スマートフォンでこの物件を見る
- スマートフォンからもこの物件をご覧になれます。
|
※「-」と表示されている項目については、情報提供会社にご確認ください。
ここから簡単にお問い合わせをすることができます。
(SSLでの暗号化での送信を希望されるお客さまは
こちら
よりお問い合わせください)
お問い合わせを行う前に
「個人情報の取り扱いについて」を必ずお読みください。
「個人情報の取り扱いについて」に同意いただいた場合は「上記にご同意の上 確認画面へ進む」のボタンをクリックしてください。
個人情報の取り扱いについて
皆さまが送付された個人情報はアットホーム(株)のサーバを経由し、お問い合わせ先の不動産会社にメールまたはFAXにて転送されるためアットホーム(株)にも保管されます。アットホーム(株)で保管された個人情報の取り扱いについては、【こちら】をご覧ください。
また、本画面でご記入いただいた個人情報は、お問い合わせ先の不動産会社でも保管します。 お問い合わせ先の不動産会社が保管する個人情報の取り扱いについては、不動産会社に直接お問い合わせください。
住友不動産ステップ(株) 千葉営業センター国土交通大臣免許(13)第2077号 |
|---|
- 交通:
- JR総武本線/千葉駅 徒歩3分
- 千葉県千葉市中央区富士見2丁目3-1 塚本大千葉ビルディング6F
- TEL:
- 0120-337-022
- FAX:
- 043-224-8159
- 所属団体:
- (一社)不動産流通経営協会会員(公社)首都圏不動産公正取引協議会加盟
取引態様:専任媒介 |
- 提携サイト等より掲載されている物件情報につきましては、不動産会社詳細情報にリンクされていないものがあります。
- 物件に関するお問合せは、物件詳細ページの「情報提供会社」に表示されている不動産会社へ直接お願いいたします。
- 間取図は、現況を優先させていただきます。
- 映像は物件の一部を撮影したものです。物件の契約にあたっての最終判断はご自身の判断に基づいて行ってください。
- 仲介手数料について

アットホームは物件情報の適正化に努めております。
内容に誤りがある場合にはこちらへご連絡ください。