東京都江東区三好1丁目(清澄白河駅)の売その他:物件詳細
交通 所在地 |
駅徒歩 |
価格 管理費等 |
使用部分面積 土地面積 |
用途地域 建物構造 |
物件種目 築年月 |
|
都営大江戸線/清澄白河
東京都江東区三好1丁目
|
4分
|
13,800万円
-
|
453.59m²
268.84m²
|
準工業
鉄骨造
|
一棟売マンション
1971年11月(築54年)
|
|
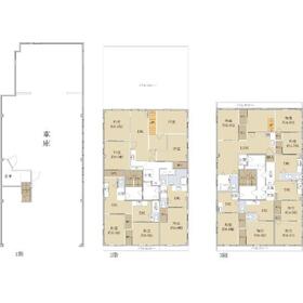
間取図
|
外観
外観
|
その他の画像
|
| 交通 | 都営大江戸線 清澄白河駅 徒歩4分 |
|---|
| その他の交通 | 東京メトロ半蔵門線 清澄白河駅 徒歩4分 東京メトロ東西線 門前仲町駅 徒歩13分 |
| 所在地 |
東京都江東区三好1丁目
|
| 物件種目 |
一棟売マンション |
| 価格 |
13,800万円 |
管理費等 |
- |
| 修繕積立金 |
- |
借地期間・地代(月額) |
5年6ヶ月 64,418円 |
| 権利金 |
- |
敷金または保証金 |
- / - |
| 維持費等 |
- |
その他一時金 |
- |
| 間取り |
- |
階建 / 階 |
3階建 |
| 使用部分面積 |
453.59m² |
土地面積 |
268.84m² |
| 建物構造 |
鉄骨造 |
築年月 |
1971年11月(築54年)
|
| 土地権利 |
普通賃借権 |
建物名・部屋番号 |
江東区三好1丁目借地権付一棟マンション |
| 都市計画 |
市街化区域 |
用途地域 |
準工業 |
| 建ぺい率 |
60% |
容積率 |
300% |
| 駐車場 |
有 |
バイク置き場 |
- |
| 駐輪場 |
- |
|
|
| 私道負担面積 |
なし |
接道状況 |
北西 10.9m 公道 接面10.7m
|
| 地目 |
- |
地勢 |
- |
| 総戸数 |
- |
国土法届出 |
- |
| アピールポイント |
■アクセス
・都営大江戸線「清澄白河」駅まで徒歩4分
・東京メトロ半蔵門線「清澄白河」駅まで徒歩4分
・東京メトロ東西線「門前仲町」駅まで徒歩13分
■前面道路:北西側 公道約10.9m
■用途地域:準工業地域
■建ぺい率:60%
■容積率:300%
■借地面積:268.84㎡
■間口:約10.7m
■建物延床面積:453.59㎡
■一部、賃貸中
満室想定賃料:月額995000円
満室想定利回り:8.65%
|
| リフォーム履歴 |
- |
| リノベーション履歴 |
- |
| 特記事項 |
- |
| 備考 |
管理形態/管理員の勤務形態:-/-
法令等制限:第三種高度地区
利回り:8.65%
年間予定賃料収入:1,194万円
建物構造:一部、木造
建物面積に車庫部分108.35㎡含む/駐車台数は車種による/物件種類:一棟売りマンション/総住戸数:8戸/専有面積不詳
|
| エネルギー消費性能 |
- |
| 断熱性能 |
- |
| 目安光熱費 |
- |
| バス・トイレ |
- |
| キッチン |
- |
| 設備・サービス |
給湯、都市ガス |
| その他 |
- |
| 条件等 |
オーナーチェンジ |
現況 |
賃貸中 |
| 引渡可能時期 |
相談 |
物件番号 |
1014833787 |
| 情報公開日 |
2025年10月21日 |
次回更新予定日 |
2025年11月4日 |
| ケータイ用バーコード |
- スマートフォンでこの物件を見る
- スマートフォンからもこの物件をご覧になれます。
|
※「-」と表示されている項目については、情報提供会社にご確認ください。
| 周辺施設 |
都営大江戸線・東京メトロ半蔵門線「清澄白河」駅 |
| 距離 |
300m |
写真を見る |
ここから簡単にお問い合わせをすることができます。
(SSLでの暗号化での送信を希望されるお客さまは
こちら
よりお問い合わせください)
お問い合わせを行う前に
「個人情報の取り扱いについて」を必ずお読みください。
「個人情報の取り扱いについて」に同意いただいた場合は「上記にご同意の上 確認画面へ進む」のボタンをクリックしてください。
個人情報の取り扱いについて
皆さまが送付された個人情報はアットホーム(株)のサーバを経由し、お問い合わせ先の不動産会社にメールまたはFAXにて転送されるためアットホーム(株)にも保管されます。アットホーム(株)で保管された個人情報の取り扱いについては、【こちら】をご覧ください。
また、本画面でご記入いただいた個人情報は、お問い合わせ先の不動産会社でも保管します。 お問い合わせ先の不動産会社が保管する個人情報の取り扱いについては、不動産会社に直接お問い合わせください。
住友不動産ステップ(株) 日本橋営業センター国土交通大臣免許(13)第2077号 |
|---|
- 交通:
- 東京メトロ東西線/日本橋駅 徒歩1分
- 東京都中央区日本橋2丁目7-1 東京日本橋タワー3階
- TEL:
- 0120-122-271
- FAX:
- 03-6262-0161
- 所属団体:
- (一社)不動産流通経営協会会員(公社)首都圏不動産公正取引協議会加盟
取引態様:専任媒介 |
- 提携サイト等より掲載されている物件情報につきましては、不動産会社詳細情報にリンクされていないものがあります。
- 物件に関するお問合せは、物件詳細ページの「情報提供会社」に表示されている不動産会社へ直接お願いいたします。
- 間取図は、現況を優先させていただきます。
- 映像は物件の一部を撮影したものです。物件の契約にあたっての最終判断はご自身の判断に基づいて行ってください。
- 仲介手数料について

アットホームは物件情報の適正化に努めております。
内容に誤りがある場合にはこちらへご連絡ください。