東京都大田区山王4丁目(大森駅)の売その他:物件詳細
交通 所在地 |
駅徒歩 |
価格 管理費等 |
使用部分面積 土地面積 |
用途地域 建物構造 |
物件種目 築年月 |
|
JR京浜東北線/大森
東京都大田区山王4丁目
|
12分
|
12,000万円
-
|
337.89m²
377.20m²
|
1種低層
RC
|
一棟売マンション
1960年12月(築65年1ヶ月)
|
|
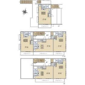
間取図
|
外観
外観
|
<
その他の画像
>
|
| 交通 | JR京浜東北線 大森駅 徒歩12分 |
| 所在地 |
東京都大田区山王4丁目
|
| 物件種目 |
一棟売マンション |
| 価格 |
12,000万円 |
管理費等 |
- |
| 修繕積立金 |
- |
借地期間・地代(月額) |
- |
| 権利金 |
- |
敷金または保証金 |
- / - |
| 維持費等 |
- |
その他一時金 |
- |
| 間取り |
- |
階建 / 階 |
4階建 |
| 使用部分面積 |
337.89m² |
土地面積 |
377.20m²(公簿) |
| 建物構造 |
RC |
築年月 |
1960年12月(築65年1ヶ月)
|
| 土地権利 |
所有権 |
建物名・部屋番号 |
大田区山王4丁目一棟マンション |
| 都市計画 |
市街化区域 |
用途地域 |
1種低層 |
| 建ぺい率 |
50% |
容積率 |
100% |
| 駐車場 |
無 |
バイク置き場 |
- |
| 駐輪場 |
- |
|
|
| 私道負担面積 |
なし |
接道状況 |
-
|
| 地目 |
- |
地勢 |
高台 |
| 総戸数 |
- |
国土法届出 |
- |
| アピールポイント |
JR京浜東北線「大森」駅徒歩12分
■建ぺい率50%、容積率100%
■第一種低層住居専用地域
■高台に立地
■オートロックあり
■1960年(昭和35年)12月築
■鉄筋コンクリート造4階建
■土地面積:377.2㎡ 建物面積337.89㎡
■総戸数9戸(9戸中8戸稼働中)
|
| リフォーム履歴 |
- |
| リノベーション履歴 |
- |
| 特記事項 |
再建築不可 |
| 備考 |
管理形態/管理員の勤務形態:-/-
利回り:6.91%
年間予定賃料収入:829.2万円
売主は課税事業者のため、建物消費税がかかります。/本物件敷地と道路法上の道路との間に水路(認定外道路)があるため、接道要件を満たしておらず、再建築等の際には、建築基準法43条第2項に基づく認定・許可が必要/物件種類:一棟売りマンション/総住戸数:9戸/専有面積不詳
|
| エネルギー消費性能 |
- |
| 断熱性能 |
- |
| 目安光熱費 |
- |
| バス・トイレ |
- |
| キッチン |
- |
| 設備・サービス |
給湯、都市ガス |
| その他 |
- |
| 条件等 |
オーナーチェンジ |
現況 |
賃貸中 |
| 引渡可能時期 |
相談 |
物件番号 |
1015222287 |
| 情報公開日 |
2025年8月2日 |
次回更新予定日 |
2026年1月1日 |
| ケータイ用バーコード |
- スマートフォンでこの物件を見る
- スマートフォンからもこの物件をご覧になれます。
|
※「-」と表示されている項目については、情報提供会社にご確認ください。
ここから簡単にお問い合わせをすることができます。
(SSLでの暗号化での送信を希望されるお客さまは
こちら
よりお問い合わせください)
お問い合わせを行う前に
「個人情報の取り扱いについて」を必ずお読みください。
「個人情報の取り扱いについて」に同意いただいた場合は「上記にご同意の上 確認画面へ進む」のボタンをクリックしてください。
個人情報の取り扱いについて
皆さまが送付された個人情報はアットホーム(株)のサーバを経由し、お問い合わせ先の不動産会社にメールまたはFAXにて転送されるためアットホーム(株)にも保管されます。アットホーム(株)で保管された個人情報の取り扱いについては、【こちら】をご覧ください。
また、本画面でご記入いただいた個人情報は、お問い合わせ先の不動産会社でも保管します。 お問い合わせ先の不動産会社が保管する個人情報の取り扱いについては、不動産会社に直接お問い合わせください。
住友不動産ステップ(株) 大井町営業センター国土交通大臣免許(13)第2077号 |
|---|
- 交通:
- JR京浜東北線/大井町駅 徒歩2分
- 東京都品川区大井1丁目10-3 YKビル4F
- TEL:
- 0120-574-358
- FAX:
- 03-5743-5801
- 所属団体:
- (一社)不動産流通経営協会会員(公社)首都圏不動産公正取引協議会加盟
取引態様:専任媒介 |
- 提携サイト等より掲載されている物件情報につきましては、不動産会社詳細情報にリンクされていないものがあります。
- 物件に関するお問合せは、物件詳細ページの「情報提供会社」に表示されている不動産会社へ直接お願いいたします。
- 間取図は、現況を優先させていただきます。
- 映像は物件の一部を撮影したものです。物件の契約にあたっての最終判断はご自身の判断に基づいて行ってください。
- 仲介手数料について

アットホームは物件情報の適正化に努めております。
内容に誤りがある場合にはこちらへご連絡ください。