大分県大分市横塚2丁目(坂ノ市駅)の売その他:物件詳細
交通 所在地 |
駅徒歩 |
価格 管理費等 |
使用部分面積 土地面積 |
用途地域 建物構造 |
物件種目 築年月 |
|
JR日豊本線/坂ノ市
大分県大分市横塚2丁目
|
19分
|
7,800万円
-
|
546.59m²
1,182.48m²
|
2種住居
RC
|
売ビル
1991年1月(築35年5ヶ月)
|
|
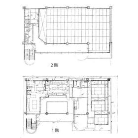
間取図
|
外観
|
<
その他の画像
>
|
| 交通 | JR日豊本線 坂ノ市駅 徒歩19分 |
| 所在地 |
大分県大分市横塚2丁目
|
| 物件種目 |
売ビル |
| 価格 |
7,800万円 |
管理費等 |
- |
| 修繕積立金 |
- |
借地期間・地代(月額) |
- |
| 権利金 |
- |
敷金または保証金 |
- / - |
| 維持費等 |
- |
その他一時金 |
なし |
| 間取り |
- |
階建 / 階 |
2階建 |
| 使用部分面積 |
546.59m² |
土地面積 |
1,182.48m²(公簿) |
| 建物構造 |
RC |
築年月 |
1991年1月(築35年5ヶ月)
|
| 土地権利 |
所有権 |
建物名・部屋番号 |
横塚売ビル |
| 都市計画 |
市街化区域 |
用途地域 |
2種住居 |
| 建ぺい率 |
60% |
容積率 |
200% |
| 駐車場 |
- |
バイク置き場 |
- |
| 駐輪場 |
- |
|
|
| 私道負担面積 |
- |
接道状況 |
南 公道 接面8.0m
|
| 地目 |
- |
地勢 |
- |
| 総戸数 |
1戸 |
国土法届出 |
- |
| リフォーム履歴 |
- |
| リノベーション履歴 |
- |
| 特記事項 |
- |
| 備考 |
管理形態/管理員の勤務形態:-/-
法令等制限:大分市景観条例、大分市環境保全条例
広々とした敷地、敷地内に20台以上駐車可能。
|
| エネルギー消費性能 |
- |
| 断熱性能 |
- |
| 目安光熱費 |
- |
| バス・トイレ |
- |
| キッチン |
- |
| 設備・サービス |
プロパンガス |
| その他 |
- |
| 条件等 |
- |
現況 |
空 |
| 引渡可能時期 |
相談 |
物件番号 |
1057942498 |
| 情報公開日 |
2026年1月24日 |
次回更新予定日 |
2026年5月11日 |
| ケータイ用バーコード |
- スマートフォンでこの物件を見る
- スマートフォンからもこの物件をご覧になれます。
|
※「-」と表示されている項目については、情報提供会社にご確認ください。
ここから簡単にお問い合わせをすることができます。
(SSLでの暗号化での送信を希望されるお客さまは
こちら
よりお問い合わせください)
お問い合わせを行う前に
「個人情報の取り扱いについて」を必ずお読みください。
「個人情報の取り扱いについて」に同意いただいた場合は「上記にご同意の上 確認画面へ進む」のボタンをクリックしてください。
個人情報の取り扱いについて
皆さまが送付された個人情報はアットホーム(株)のサーバを経由し、お問い合わせ先の不動産会社にメールまたはFAXにて転送されるためアットホーム(株)にも保管されます。アットホーム(株)で保管された個人情報の取り扱いについては、【こちら】をご覧ください。
また、本画面でご記入いただいた個人情報は、お問い合わせ先の不動産会社でも保管します。 お問い合わせ先の不動産会社が保管する個人情報の取り扱いについては、不動産会社に直接お問い合わせください。
大分県知事免許(2)第3246号 |
|---|
- 交通:
- JR日豊本線/別府大学駅 徒歩25分 【バス】 大藪 停歩1分
- 大分県別府市石垣西10丁目10-4
- TEL:
- 0977-25-1111
- FAX:
- 0977-25-7299
- 所属団体:
- (公社)大分県宅地建物取引業協会会員(一社)九州不動産公正取引協議会加盟
取引態様:一般媒介  - 80503081
|
- スマートフォンで
この不動産会社を見る

|
- 提携サイト等より掲載されている物件情報につきましては、不動産会社詳細情報にリンクされていないものがあります。
- 物件に関するお問合せは、物件詳細ページの「情報提供会社」に表示されている不動産会社へ直接お願いいたします。
- 間取図は、現況を優先させていただきます。
- 映像は物件の一部を撮影したものです。物件の契約にあたっての最終判断はご自身の判断に基づいて行ってください。
- 仲介手数料について

アットホームは物件情報の適正化に努めております。
内容に誤りがある場合にはこちらへご連絡ください。