神奈川県川崎市中原区上平間(平間駅)の売その他:物件詳細
交通 所在地 |
駅徒歩 |
価格 管理費等 |
使用部分面積 土地面積 |
用途地域 建物構造 |
物件種目 築年月 |
|
JR南武線/平間
神奈川県川崎市中原区上平間
|
7分
|
37,800万円
-
|
384.30m²
103.76m²
|
準住居
RC
|
一棟売マンション
2025年10月(築1年未満)
|
|
間取図
|
外観
|
<
その他の画像
>
|
| 交通 | JR南武線 平間駅 徒歩7分 |
|---|
| その他の交通 | JR南武線 鹿島田駅 徒歩15分 JR横須賀線 新川崎駅 徒歩17分 |
| 所在地 |
神奈川県川崎市中原区上平間
|
| 物件種目 |
一棟売マンション |
| 価格 |
37,800万円 |
管理費等 |
- |
| 修繕積立金 |
- |
借地期間・地代(月額) |
- |
| 権利金 |
- |
敷金または保証金 |
- / - |
| 維持費等 |
- |
その他一時金 |
なし |
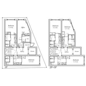
| 間取り |
1K |
階建 / 階 |
5階建 |
| 使用部分面積 |
384.30m² |
土地面積 |
103.76m²(公簿) |
| 建物構造 |
RC |
築年月 |
2025年10月(築1年未満)
|
| 土地権利 |
所有権 |
建物名・部屋番号 |
ME PLACE 上平間 |
| 都市計画 |
市街化区域 |
用途地域 |
準住居 |
| 建ぺい率 |
60% |
容積率 |
300% |
| 駐車場 |
- |
バイク置き場 |
- |
| 駐輪場 |
- |
|
|
| 私道負担面積 |
なし |
接道状況 |
北東 22.0m 公道
・
北 4.0m 公道
・
二方道路
|
| 地目 |
- |
地勢 |
平坦 |
| 総戸数 |
15戸 |
国土法届出 |
- |
| アピールポイント |
◆2025年10月築 新築1棟マンションのご紹介です
◆満室賃貸中!!確定利回り4.01%!!
◆コンクリート打ち放しデザイナーズ物件!
◆数少ないエレベーター付5階建
◆最寄り駅徒歩7分、2路線利用可能な利便性
◆周辺生活施設充実
・ミニストップ上平間店 約260m(徒歩4分)
・セブンイレブン川崎田尻町店 約385m(徒歩5分)
・まいばすけっと田尻町店 約385m(徒歩5分)
・マルエツ平間店 約420m(徒歩6分)
・平間公園 約120m(徒歩2分)
◆賃貸借契約の引継ぎが必要です。弊社にて賃貸管理承ります。
お気軽にご相談下さい。 |
| リフォーム履歴 |
- |
| リノベーション履歴 |
- |
| 特記事項 |
24時間換気システム |
| 備考 |
管理形態/管理員の勤務形態:-/不在
利回り:4.01%
年間予定賃料収入:1,518万円
総戸数:15戸、専有面積:18.7平米~20.51平米、高度地区、防火地域、日影制限有
|
| エネルギー消費性能 |
- |
| 断熱性能 |
- |
| 目安光熱費 |
- |
| バス・トイレ |
- |
| キッチン |
- |
| 設備・サービス |
室内洗濯機置場、オートロック、給湯、都市ガス、エアコン、火災警報器(報知機)、光ファイバー |
| その他 |
宅配BOX、エレベーター |
| 条件等 |
オーナーチェンジ |
現況 |
賃貸中 |
| 引渡可能時期 |
相談 |
物件番号 |
1109060303 |
| 情報公開日 |
2026年4月30日 |
次回更新予定日 |
2026年5月28日 |
| ケータイ用バーコード |
- スマートフォンでこの物件を見る
- スマートフォンからもこの物件をご覧になれます。
|
※「-」と表示されている項目については、情報提供会社にご確認ください。
| 周辺施設 |
ミニストップ上平間店 |
| 距離 |
270m |
写真を見る |
| 周辺施設 |
まいばすけっと田尻町店 |
| 距離 |
408m |
写真を見る |
| 周辺施設 |
マルエツ平間店 |
| 距離 |
455m |
写真を見る |
| 周辺施設 |
クリエイトエス・ディー川崎田尻町店 |
| 距離 |
503m |
写真を見る |
| 周辺施設 |
川崎田尻郵便局 |
| 距離 |
374m |
写真を見る |
| 周辺施設 |
FASTGYM24平間店 |
| 距離 |
483m |
写真を見る |
ここから簡単にお問い合わせをすることができます。
(SSLでの暗号化での送信を希望されるお客さまは
こちら
よりお問い合わせください)
お問い合わせを行う前に
「個人情報の取り扱いについて」を必ずお読みください。
「個人情報の取り扱いについて」に同意いただいた場合は「上記にご同意の上 確認画面へ進む」のボタンをクリックしてください。
個人情報の取り扱いについて
皆さまが送付された個人情報はアットホーム(株)のサーバを経由し、お問い合わせ先の不動産会社にメールまたはFAXにて転送されるためアットホーム(株)にも保管されます。アットホーム(株)で保管された個人情報の取り扱いについては、【こちら】をご覧ください。
また、本画面でご記入いただいた個人情報は、お問い合わせ先の不動産会社でも保管します。 お問い合わせ先の不動産会社が保管する個人情報の取り扱いについては、不動産会社に直接お問い合わせください。
東京都知事免許(8)第61562号 |
|---|
- 交通:
- 東急東横線/自由が丘駅
- 東京都目黒区自由が丘1丁目12-11
- TEL:
- 03-5701-5588
- FAX:
- 03-5701-5598
- 所属団体:
- (公社)全日本不動産協会会員(公社)首都圏不動産公正取引協議会加盟
取引態様:専任媒介  - 99000171
|
- スマートフォンで
この不動産会社を見る

|
- 提携サイト等より掲載されている物件情報につきましては、不動産会社詳細情報にリンクされていないものがあります。
- 物件に関するお問合せは、物件詳細ページの「情報提供会社」に表示されている不動産会社へ直接お願いいたします。
- 間取図は、現況を優先させていただきます。
- 映像は物件の一部を撮影したものです。物件の契約にあたっての最終判断はご自身の判断に基づいて行ってください。
- 仲介手数料について

アットホームは物件情報の適正化に努めております。
内容に誤りがある場合にはこちらへご連絡ください。