東京都新宿区西早稲田3丁目(西早稲田駅)の売その他:物件詳細
交通 所在地 |
駅徒歩 |
価格 管理費等 |
使用部分面積 土地面積 |
用途地域 建物構造 |
物件種目 築年月 |
|
東京メトロ副都心線/西早稲田
東京都新宿区西早稲田3丁目
|
6分
|
18,500万円
-
|
127.11m²
34.85m²
|
商業地域
RC
|
売ビル
1993年5月(築33年1ヶ月)
|
|
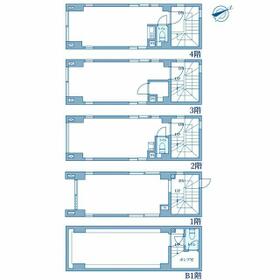
間取図
|
外観
外観
|
<
その他の画像
>
|
| 交通 | 東京メトロ副都心線 西早稲田駅 徒歩6分 |
|---|
| その他の交通 | 東京メトロ東西線 高田馬場駅 徒歩9分 JR山手線 高田馬場駅 徒歩12分 |
| 所在地 |
東京都新宿区西早稲田3丁目
|
| 物件種目 |
売ビル |
| 価格 |
18,500万円 |
管理費等 |
- |
| 修繕積立金 |
- |
借地期間・地代(月額) |
- |
| 権利金 |
- |
敷金または保証金 |
- / - |
| 維持費等 |
- |
その他一時金 |
なし |
| 間取り |
- |
階建 / 階 |
地上4階地下1階建 |
| 使用部分面積 |
127.11m² |
土地面積 |
34.85m²(公簿) |
| 建物構造 |
RC |
築年月 |
1993年5月(築33年1ヶ月)
|
| 土地権利 |
所有権 |
建物名・部屋番号 |
東京都新宿区西早稲田3丁目 |
| 都市計画 |
市街化区域 |
用途地域 |
商業地域 |
| 建ぺい率 |
80% |
容積率 |
500% |
| 駐車場 |
無 |
バイク置き場 |
- |
| 駐輪場 |
- |
|
|
| 私道負担面積 |
なし |
接道状況 |
南 22.0m 公道
|
| 地目 |
- |
地勢 |
平坦 |
| 総戸数 |
- |
国土法届出 |
- |
| アピールポイント |
◆複数路線利用可能
東京メトロ副都心線「西早稲田」駅まで徒歩6分
東京メトロ東西線「高田馬場」駅まで徒歩9分
東京メトロ東西線「早稲田」駅まで徒歩10分
JR山手線「高田馬場」駅まで徒歩12分
西武新宿線「高田馬場」駅まで徒歩12分
都電荒川線「面影橋」駅まで徒歩5分
◆鉄筋コンクリート造4階建
◆平成4年5月築
◆空室引渡し |
| リフォーム履歴 |
- |
| リノベーション履歴 |
- |
| 特記事項 |
- |
| 備考 |
管理形態/管理員の勤務形態:-/-
法令等制限:防火地域
|
| エネルギー消費性能 |
- |
| 断熱性能 |
- |
| 目安光熱費 |
- |
| バス・トイレ |
- |
| キッチン |
- |
| 設備・サービス |
都市ガス |
| その他 |
- |
| 条件等 |
- |
現況 |
空 |
| 引渡可能時期 |
相談 |
物件番号 |
1116575406 |
| 情報公開日 |
2026年3月27日 |
次回更新予定日 |
2026年5月25日 |
| ケータイ用バーコード |
- スマートフォンでこの物件を見る
- スマートフォンからもこの物件をご覧になれます。
|
※「-」と表示されている項目については、情報提供会社にご確認ください。
ここから簡単にお問い合わせをすることができます。
(SSLでの暗号化での送信を希望されるお客さまは
こちら
よりお問い合わせください)
お問い合わせを行う前に
「個人情報の取り扱いについて」を必ずお読みください。
「個人情報の取り扱いについて」に同意いただいた場合は「上記にご同意の上 確認画面へ進む」のボタンをクリックしてください。
個人情報の取り扱いについて
皆さまが送付された個人情報はアットホーム(株)のサーバを経由し、お問い合わせ先の不動産会社にメールまたはFAXにて転送されるためアットホーム(株)にも保管されます。アットホーム(株)で保管された個人情報の取り扱いについては、【こちら】をご覧ください。
また、本画面でご記入いただいた個人情報は、お問い合わせ先の不動産会社でも保管します。 お問い合わせ先の不動産会社が保管する個人情報の取り扱いについては、不動産会社に直接お問い合わせください。
国土交通大臣免許(12)第2611号 |
|---|
- 交通:
- JR山手線/高田馬場駅 徒歩2分
- 東京都新宿区高田馬場1丁目26-5 FIビル1F
- TEL:
- 0800-111-0109
- FAX:
- 03-3205-6466
- 所属団体:
- (一社)不動産流通経営協会会員(一社)不動産協会会員(公社)首都圏不動産公正取引協議会加盟
取引態様:専任媒介  - 00783521
|
- スマートフォンで
この不動産会社を見る

|
- 提携サイト等より掲載されている物件情報につきましては、不動産会社詳細情報にリンクされていないものがあります。
- 物件に関するお問合せは、物件詳細ページの「情報提供会社」に表示されている不動産会社へ直接お願いいたします。
- 間取図は、現況を優先させていただきます。
- 映像は物件の一部を撮影したものです。物件の契約にあたっての最終判断はご自身の判断に基づいて行ってください。
- 仲介手数料について

アットホームは物件情報の適正化に努めております。
内容に誤りがある場合にはこちらへご連絡ください。