北海道札幌市西区二十四軒三条4丁目(二十四軒駅)の売その他:物件詳細
交通 所在地 |
駅徒歩 |
価格 管理費等 |
使用部分面積 土地面積 |
用途地域 建物構造 |
物件種目 築年月 |
|
札幌市東西線/二十四軒
北海道札幌市西区二十四軒三条4丁目
|
4分
|
8,500万円
-
|
476.64m²
240.00m²
|
近隣商業
RC
|
一棟売マンション
1985年8月(築40年5ヶ月)
|
|
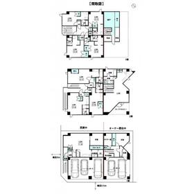
外観
間取図
|
<
その他の画像
>
|
| 交通 | 札幌市東西線 二十四軒駅 徒歩4分 |
|---|
| その他の交通 | 札幌市東西線 琴似駅 徒歩9分 |
| 所在地 |
北海道札幌市西区二十四軒三条4丁目
|
| 物件種目 |
一棟売マンション |
| 価格 |
8,500万円 |
管理費等 |
- |
| 修繕積立金 |
- |
借地期間・地代(月額) |
- |
| 権利金 |
- |
敷金または保証金 |
- / - |
| 維持費等 |
- |
その他一時金 |
- |
| 間取り |
ワンルーム |
階建 / 階 |
3階建 |
| 使用部分面積 |
476.64m² |
土地面積 |
240.00m² |
| 建物構造 |
RC |
築年月 |
1985年8月(築40年5ヶ月)
|
| 土地権利 |
所有権 |
建物名・部屋番号 |
XEBEC-9 |
| 都市計画 |
市街化区域 |
用途地域 |
近隣商業 |
| 建ぺい率 |
80% |
容積率 |
300% |
| 駐車場 |
有 |
バイク置き場 |
- |
| 駐輪場 |
- |
|
|
| 私道負担面積 |
- |
接道状況 |
北東 6.0m 公道
・
南東 8.0m 公道
・
二方道路
|
| 地目 |
- |
地勢 |
- |
| 総戸数 |
9戸 |
国土法届出 |
- |
| リフォーム履歴 |
- |
| リノベーション履歴 |
- |
| 特記事項 |
- |
| 備考 |
管理形態/管理員の勤務形態:-/-
利回り:4.56%
年間予定賃料収入:387.84万円
地下鉄東西線「二十四軒」駅徒歩4分で交通アクセス良好。
■地下鉄東西線「二十四軒」駅徒歩4分、東西線「琴似」駅徒歩9分■一棟売マンション+戸建(オーナーズルーム)■年収3878400円、表面利回4.56%、現況8戸中8戸賃貸中■1R×7戸・1LDK×1戸・オーナーズルーム(1SLDK)■オーナーズルーム退去予定(現在オーナー様がセカンドハウスとして使用中・引き渡し時まで)■引き渡しは契約後約4か月(予定)■2018年屋上・外壁・オーナーズルーム水廻りリフォーム■2020年暖炉・二重煙突リフォーム■二十四軒公園目の前、セイコーマート二十四軒3条店徒歩徒歩2分、コープさっぽろ二十四軒店徒歩9分各住戸の最小最大専有面積:16.35~88.62平米
|
| エネルギー消費性能 |
- |
| 断熱性能 |
- |
| 目安光熱費 |
- |
| バス・トイレ |
- |
| キッチン |
- |
| 設備・サービス |
プロパンガス |
| その他 |
- |
| 条件等 |
- |
現況 |
賃貸中 |
| 引渡可能時期 |
相談 |
物件番号 |
1147116111 |
| 情報公開日 |
2025年10月2日 |
次回更新予定日 |
2025年12月17日 |
| ケータイ用バーコード |
- スマートフォンでこの物件を見る
- スマートフォンからもこの物件をご覧になれます。
|
※「-」と表示されている項目については、情報提供会社にご確認ください。
| 周辺施設 |
地下鉄東西線「二十四軒」駅 徒歩4分 |
| 距離 |
320m |
写真を見る |
| 周辺施設 |
セイコーマート二十四軒3条店 徒歩2分 |
| 距離 |
160m |
写真を見る |
ここから簡単にお問い合わせをすることができます。
(SSLでの暗号化での送信を希望されるお客さまは
こちら
よりお問い合わせください)
お問い合わせを行う前に
「個人情報の取り扱いについて」を必ずお読みください。
「個人情報の取り扱いについて」に同意いただいた場合は「上記にご同意の上 確認画面へ進む」のボタンをクリックしてください。
個人情報の取り扱いについて
皆さまが送付された個人情報はアットホーム(株)のサーバを経由し、お問い合わせ先の不動産会社にメールまたはFAXにて転送されるためアットホーム(株)にも保管されます。アットホーム(株)で保管された個人情報の取り扱いについては、【こちら】をご覧ください。
また、本画面でご記入いただいた個人情報は、お問い合わせ先の不動産会社でも保管します。 お問い合わせ先の不動産会社が保管する個人情報の取り扱いについては、不動産会社に直接お問い合わせください。
北海道知事免許 石狩(10)第3900号 |
|---|
- 交通:
- 札幌市南北線/澄川駅 徒歩2分
- 北海道札幌市南区澄川四条1丁目1-40 ジンビル
- TEL:
- 011-817-9000
- FAX:
- 011-816-9009
- 所属団体:
- (公社)北海道宅地建物取引業協会会員(一社)北海道不動産公正取引協議会加盟
取引態様:専任媒介  - 10001082
|
- スマートフォンで
この不動産会社を見る

|
- 提携サイト等より掲載されている物件情報につきましては、不動産会社詳細情報にリンクされていないものがあります。
- 物件に関するお問合せは、物件詳細ページの「情報提供会社」に表示されている不動産会社へ直接お願いいたします。
- 間取図は、現況を優先させていただきます。
- 映像は物件の一部を撮影したものです。物件の契約にあたっての最終判断はご自身の判断に基づいて行ってください。
- 仲介手数料について

アットホームは物件情報の適正化に努めております。
内容に誤りがある場合にはこちらへご連絡ください。