富山県滑川市中村(越中中村駅)の売その他:物件詳細
交通 所在地 |
駅徒歩 |
価格 管理費等 |
使用部分面積 土地面積 |
用途地域 建物構造 |
物件種目 築年月 |
|
富山地鉄本線/越中中村
富山県滑川市中村
|
9分
|
4,500万円
-
|
302.40m²
2,193.38m²
|
無指定
鉄骨造
|
売倉庫
1989年3月(築36年10ヶ月)
|
|
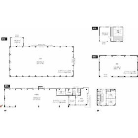
間取図
|
外観
|
<
その他の画像
>
|
| 交通 | 富山地鉄本線 越中中村駅 徒歩9分 |
|---|
| その他の交通 | あいの風とやま鉄道 東滑川駅 徒歩11分 【バス】 東滑川駅口 停歩7分 |
| 所在地 |
富山県滑川市中村
|
| 物件種目 |
売倉庫 |
| 価格 |
4,500万円 |
管理費等 |
- |
| 修繕積立金 |
- |
借地期間・地代(月額) |
- |
| 権利金 |
- |
敷金または保証金 |
- / - |
| 維持費等 |
- |
その他一時金 |
なし |
| 間取り |
- |
階建 / 階 |
1階建 |
| 使用部分面積 |
302.40m² |
土地面積 |
2,193.38m²(公簿) |
| 建物構造 |
鉄骨造 |
築年月 |
1989年3月(築36年10ヶ月)
|
| 土地権利 |
所有権 |
建物名・部屋番号 |
滑川市中村 |
| 都市計画 |
非線引区域 |
用途地域 |
無指定 |
| 建ぺい率 |
60% |
容積率 |
200% |
| 駐車場 |
有 無料 |
バイク置き場 |
- |
| 駐輪場 |
- |
|
|
| 私道負担面積 |
なし |
接道状況 |
南東 16.0m 公道 接面62.3m
・
西 6.0m 公道 接面4.0m
|
| 地目 |
- |
地勢 |
平坦 |
| 総戸数 |
- |
国土法届出 |
- |
| リフォーム履歴 |
- |
| リノベーション履歴 |
- |
| 特記事項 |
- |
| 備考 |
管理形態/管理員の勤務形態:-/-
2.8tクレーン2基、トタン外壁、駐車10台以上可。
建物②(作業所):軽量鉄骨造亜鉛メッキ鋼板ぶき平家建 49.68m2 建物③(倉庫):鉄骨造合金メッキ鋼板ぶき平家建 126.99m2 建物④(店舗・事務所):鉄骨造亜鉛メッキ鋼板ぶき2階建 1F 232.22m2 2F 46.11m2
|
| エネルギー消費性能 |
- |
| 断熱性能 |
- |
| 目安光熱費 |
- |
| バス・トイレ |
トイレ |
| キッチン |
- |
| 設備・サービス |
プロパンガス |
| その他 |
- |
| 条件等 |
- |
現況 |
空 |
| 引渡可能時期 |
即時 |
物件番号 |
1170450709 |
| 情報公開日 |
2025年8月5日 |
次回更新予定日 |
2025年12月21日 |
| ケータイ用バーコード |
- スマートフォンでこの物件を見る
- スマートフォンからもこの物件をご覧になれます。
|
※「-」と表示されている項目については、情報提供会社にご確認ください。
| 周辺施設 |
セブンイレブン 滑川中村店 |
| 距離 |
230m |
写真を見る |
| 周辺施設 |
浜加積郵便局 |
| 距離 |
1900m |
写真を見る |
| 周辺施設 |
ウエルシア魚津住吉店 |
| 距離 |
3320m |
写真を見る |
| 周辺施設 |
MEGAドン・キホーテUNY魚津店 |
| 距離 |
3420m |
写真を見る |
| 周辺施設 |
コメリ パワー魚津店 |
| 距離 |
3240m |
写真を見る |
| 周辺施設 |
厚生連滑川病院 |
| 距離 |
4220m |
写真を見る |
ここから簡単にお問い合わせをすることができます。
(SSLでの暗号化での送信を希望されるお客さまは
こちら
よりお問い合わせください)
お問い合わせを行う前に
「個人情報の取り扱いについて」を必ずお読みください。
「個人情報の取り扱いについて」に同意いただいた場合は「上記にご同意の上 確認画面へ進む」のボタンをクリックしてください。
個人情報の取り扱いについて
皆さまが送付された個人情報はアットホーム(株)のサーバを経由し、お問い合わせ先の不動産会社にメールまたはFAXにて転送されるためアットホーム(株)にも保管されます。アットホーム(株)で保管された個人情報の取り扱いについては、【こちら】をご覧ください。
また、本画面でご記入いただいた個人情報は、お問い合わせ先の不動産会社でも保管します。 お問い合わせ先の不動産会社が保管する個人情報の取り扱いについては、不動産会社に直接お問い合わせください。
富山県知事免許(7)第2271号 |
|---|
- 交通:
- あいの風とやま鉄道/水橋駅 【バス】6分 芝草口 停歩1分
- 富山県富山市水橋市田袋268-6 ビルトビル
- TEL:
- 076-479-2111
- FAX:
- 076-479-2112
- 所属団体:
- (公社)全日本不動産協会会員北陸不動産公正取引協議会加盟
取引態様:専任媒介  - 40402175
|
- スマートフォンで
この不動産会社を見る

|
- 提携サイト等より掲載されている物件情報につきましては、不動産会社詳細情報にリンクされていないものがあります。
- 物件に関するお問合せは、物件詳細ページの「情報提供会社」に表示されている不動産会社へ直接お願いいたします。
- 間取図は、現況を優先させていただきます。
- 映像は物件の一部を撮影したものです。物件の契約にあたっての最終判断はご自身の判断に基づいて行ってください。
- 仲介手数料について

アットホームは物件情報の適正化に努めております。
内容に誤りがある場合にはこちらへご連絡ください。