宮城県仙台市宮城野区原町4丁目(陸前原ノ町駅)の売その他:物件詳細
交通 所在地 |
駅徒歩 |
価格 管理費等 |
使用部分面積 土地面積 |
用途地域 建物構造 |
物件種目 築年月 |
|
JR仙石線/陸前原ノ町
宮城県仙台市宮城野区原町4丁目
|
19分
|
38,800万円
-
|
2,520.12m²
2,944.90m²
|
工業地域
鉄骨造
|
売工場
1994年5月(築31年8ヶ月)
|
|
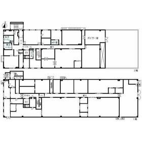
間取図
|
外観
2024年7月撮影
|
その他の画像
|
| 交通 | JR仙石線 陸前原ノ町駅 徒歩19分 |
| 所在地 |
宮城県仙台市宮城野区原町4丁目
|
| 物件種目 |
売工場 |
| 価格 |
38,800万円 |
管理費等 |
- |
| 修繕積立金 |
- |
借地期間・地代(月額) |
- |
| 権利金 |
- |
敷金または保証金 |
- / - |
| 維持費等 |
- |
その他一時金 |
- |
| 間取り |
- |
階建 / 階 |
2階建 |
| 使用部分面積 |
2,520.12m² |
土地面積 |
2,944.90m² |
| 建物構造 |
鉄骨造 |
築年月 |
1994年5月(築31年8ヶ月)
|
| 土地権利 |
所有権 |
建物名・部屋番号 |
宮城野区原町・大梶 事業用不動産 |
| 都市計画 |
市街化区域 |
用途地域 |
工業地域 |
| 建ぺい率 |
60% |
容積率 |
200% |
| 駐車場 |
有 無料 |
バイク置き場 |
- |
| 駐輪場 |
- |
|
|
| 私道負担面積 |
なし |
接道状況 |
南西 6.0m 公道 接面35.5m
|
| 地目 |
- |
地勢 |
- |
| 総戸数 |
- |
国土法届出 |
国土法届出が必要 |
| アピールポイント |
◆原町四丁目 売工場
◆敷地約890坪
◆北・南側線路に隣接しています |
| リフォーム履歴 |
- |
| リノベーション履歴 |
- |
| 特記事項 |
- |
| 備考 |
管理形態/管理員の勤務形態:-/-
法令等制限:建基法第22条指定、道路斜線制限、隣地斜線制限
(附属建物)
符号1種類:機械室 構造:鉄筋コンクリート造陸屋根平屋建 床面積:26.38㎡ 建築時期:平成6年7月築
符号2種類:物置 構造:鉄筋コンクリート造亜鉛メッキ鋼板葺平屋建 床面積:12.49㎡ 建築時期:平成6年7月築
|
| エネルギー消費性能 |
- |
| 断熱性能 |
- |
| 目安光熱費 |
- |
| バス・トイレ |
シャワールーム |
| キッチン |
- |
| 設備・サービス |
都市ガス |
| その他 |
- |
| 条件等 |
- |
現況 |
空 |
| 引渡可能時期 |
相談 |
物件番号 |
1190984904 |
| 情報公開日 |
2025年2月10日 |
次回更新予定日 |
2025年12月14日 |
| ケータイ用バーコード |
- スマートフォンでこの物件を見る
- スマートフォンからもこの物件をご覧になれます。
|
※「-」と表示されている項目については、情報提供会社にご確認ください。
| 周辺施設 |
ローソン仙台小田原3丁目店 |
| 距離 |
586m |
| 周辺施設 |
COOP MIYAGI幸町店 |
| 距離 |
1208m |
| 周辺施設 |
ゆうちょ銀行仙台支店セラビ幸町店内出張所 |
| 距離 |
1254m |
| 周辺施設 |
ツルハドラッグ仙台原町店 |
| 距離 |
905m |
ここから簡単にお問い合わせをすることができます。
(SSLでの暗号化での送信を希望されるお客さまは
こちら
よりお問い合わせください)
お問い合わせを行う前に
「個人情報の取り扱いについて」を必ずお読みください。
「個人情報の取り扱いについて」に同意いただいた場合は「上記にご同意の上 確認画面へ進む」のボタンをクリックしてください。
個人情報の取り扱いについて
皆さまが送付された個人情報はアットホーム(株)のサーバを経由し、お問い合わせ先の不動産会社にメールまたはFAXにて転送されるためアットホーム(株)にも保管されます。アットホーム(株)で保管された個人情報の取り扱いについては、【こちら】をご覧ください。
また、本画面でご記入いただいた個人情報は、お問い合わせ先の不動産会社でも保管します。 お問い合わせ先の不動産会社が保管する個人情報の取り扱いについては、不動産会社に直接お問い合わせください。
国土交通大臣免許(13)第2343号 |
|---|
- 交通:
- JR仙石線/あおば通駅 徒歩1分
- 宮城県仙台市青葉区中央2丁目2番5号 あおば通駅前ビル4階
- TEL:
- 022-207-4348
- FAX:
- 022-207-4350
- 所属団体:
- (一社)不動産流通経営協会会員(一社)不動産協会会員(公社)首都圏不動産公正取引協議会加盟
取引態様:売主  - 20005723
|
- スマートフォンで
この不動産会社を見る

|
- 提携サイト等より掲載されている物件情報につきましては、不動産会社詳細情報にリンクされていないものがあります。
- 物件に関するお問合せは、物件詳細ページの「情報提供会社」に表示されている不動産会社へ直接お願いいたします。
- 間取図は、現況を優先させていただきます。
- 映像は物件の一部を撮影したものです。物件の契約にあたっての最終判断はご自身の判断に基づいて行ってください。
- 仲介手数料について

アットホームは物件情報の適正化に努めております。
内容に誤りがある場合にはこちらへご連絡ください。