宮城県仙台市青葉区西勝山(北山駅)の売その他:物件詳細
交通 所在地 |
駅徒歩 |
価格 管理費等 |
使用部分面積 土地面積 |
用途地域 建物構造 |
物件種目 築年月 |
|
JR仙山線/北山 [バス利用可] バス 仙台市営バス西勝山 停歩3分
宮城県仙台市青葉区西勝山
|
37分
|
2,450万円
-
|
138.30m²
266.67m²
|
1種低層
木造
|
一棟売アパート
1995年3月(築31年)
|
|
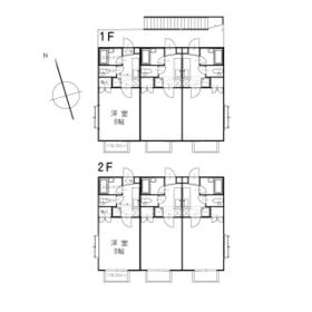
間取図
|
外観
|
<
その他の画像
>
|
| 交通 | JR仙山線 北山駅 徒歩37分 [バス利用可] バス 仙台市営バス西勝山 停歩3分 |
| 所在地 |
宮城県仙台市青葉区西勝山
|
| 物件種目 |
一棟売アパート |
| 価格 |
2,450万円 |
管理費等 |
- |
| 修繕積立金 |
- |
借地期間・地代(月額) |
- |
| 権利金 |
- |
敷金または保証金 |
- / - |
| 維持費等 |
J:COM株式会社インターネット料金:11,880円/月 |
その他一時金 |
- |
| 間取り |
- |
階建 / 階 |
2階建 |
| 使用部分面積 |
138.30m² |
土地面積 |
266.67m²(公簿) |
| 建物構造 |
木造 |
築年月 |
1995年3月(築31年)
|
| 土地権利 |
所有権 |
建物名・部屋番号 |
|
| 都市計画 |
市街化区域 |
用途地域 |
1種低層 |
| 建ぺい率 |
50% |
容積率 |
80% |
| 駐車場 |
- |
バイク置き場 |
- |
| 駐輪場 |
- |
|
|
| 私道負担面積 |
- |
接道状況 |
北 5.9m 公道 接面13.5m
|
| 地目 |
宅地 |
地勢 |
- |
| 総戸数 |
6戸 |
国土法届出 |
- |
| リフォーム履歴 |
- |
| リノベーション履歴 |
- |
| 特記事項 |
- |
| 備考 |
管理形態/管理員の勤務形態:-/-
主要採光面:南向き
利回り:9.94%
年間予定賃料収入:243.6万円
現況有姿売買、公簿売買、売主による境界明示無し、売主の契約不適合責任は免責。管理会社(株式会社マイルーム仙台)は承継を希望します。LPガス業者(トーホクガス株式会社)とのガス供給及び設備貸与契約承継を希望します。内覧できますので、ご相談ください。
令和5年度分固定資産税評価額:土地11,008,137円、建物2,046,749円、固定資産税額52,900円・都市計画税額16,500円。J:COM株式会社インターネット料金:11,880円/月。現況6戸中4賃貸中(2025年6月現在)。
現況表面利回り:6.86%、現況年間予定賃料収入1,680,000円。満室時表面利回り:9.79%、満室想定年間賃料収入2,400,000円。※現況表面利回りと満室時表面利回りは単純利回り(年間賃料等総額÷販売価格)で固定資産税、賃貸管理費等の必要経費は控除されていません。
※現況表面利回り・満室時表面利回りや現況年間予定賃料収入・満室想定年間賃料収入は将来にわたり確定した金額ではございませんのでご承知おきください。※駐車場の一部が土砂災害警戒区域(急傾斜地の崩壊)に入っています。
|
| エネルギー消費性能 |
- |
| 断熱性能 |
- |
| 目安光熱費 |
- |
| バス・トイレ |
バス・トイレ別、シャワー、トイレ |
| キッチン |
- |
| 設備・サービス |
収納スペース、室内洗濯機置場、ロフト、給湯、プロパンガス、エアコン、CATVインターネット、ケーブルTV |
| その他 |
- |
| 条件等 |
オーナーチェンジ |
現況 |
賃貸中 |
| 引渡可能時期 |
即時 |
物件番号 |
6979132289 |
| 仲介手数料 |
87.45万円 |
|
|
| 情報公開日 |
2025年7月22日 |
次回更新予定日 |
2026年2月6日 |
| ケータイ用バーコード |
- スマートフォンでこの物件を見る
- スマートフォンからもこの物件をご覧になれます。
|
※「-」と表示されている項目については、情報提供会社にご確認ください。
ここから簡単にお問い合わせをすることができます。
(SSLでの暗号化での送信を希望されるお客さまは
こちら
よりお問い合わせください)
お問い合わせを行う前に
「個人情報の取り扱いについて」を必ずお読みください。
「個人情報の取り扱いについて」に同意いただいた場合は「上記にご同意の上 確認画面へ進む」のボタンをクリックしてください。
個人情報の取り扱いについて
皆さまが送付された個人情報はアットホーム(株)のサーバを経由し、お問い合わせ先の不動産会社にメールまたはFAXにて転送されるためアットホーム(株)にも保管されます。アットホーム(株)で保管された個人情報の取り扱いについては、【こちら】をご覧ください。
また、本画面でご記入いただいた個人情報は、お問い合わせ先の不動産会社でも保管します。 お問い合わせ先の不動産会社が保管する個人情報の取り扱いについては、不動産会社に直接お問い合わせください。
宮城県知事免許(5)第5213号 |
|---|
- 交通:
- 仙台市南北線/五橋駅 徒歩5分
- 宮城県仙台市青葉区五橋2丁目5-6 イワヌマビル101
- TEL:
- 022-748-7520
- FAX:
- 022-748-7560
- 所属団体:
- (公社)全日本不動産協会会員東北地区不動産公正取引協議会加盟
取引態様:専任媒介  - 20001941
|
- スマートフォンで
この不動産会社を見る

|
- 提携サイト等より掲載されている物件情報につきましては、不動産会社詳細情報にリンクされていないものがあります。
- 物件に関するお問合せは、物件詳細ページの「情報提供会社」に表示されている不動産会社へ直接お願いいたします。
- 間取図は、現況を優先させていただきます。
- 映像は物件の一部を撮影したものです。物件の契約にあたっての最終判断はご自身の判断に基づいて行ってください。
- 仲介手数料について

アットホームは物件情報の適正化に努めております。
内容に誤りがある場合にはこちらへご連絡ください。