福岡県三井郡大刀洗町大字上高橋(大堰駅)の売その他:物件詳細
交通 所在地 |
駅徒歩 |
価格 管理費等 |
使用部分面積 土地面積 |
用途地域 建物構造 |
物件種目 築年月 |
|
西鉄甘木線/大堰
福岡県三井郡大刀洗町大字上高橋
|
26分
|
19,000万円
-
|
1,158.46m²
976.40m²
|
無指定
RC
|
一棟売マンション
2006年1月(築20年5ヶ月)
|
|
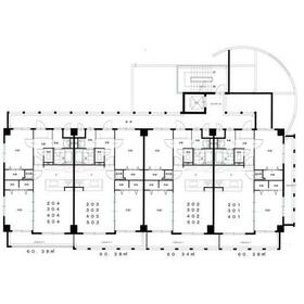
間取図
2LDK×15戸
|
外観
屋根一面の太陽光パネル
|
<
その他の画像
>
|
| 交通 | 西鉄甘木線 大堰駅 徒歩26分 |
| 所在地 |
福岡県三井郡大刀洗町大字上高橋
|
| 物件種目 |
一棟売マンション |
| 価格 |
19,000万円 |
管理費等 |
- |
| 修繕積立金 |
- |
借地期間・地代(月額) |
- |
| 権利金 |
- |
敷金または保証金 |
- / - |
| 維持費等 |
- |
その他一時金 |
- |
| 間取り |
- |
階建 / 階 |
5階建 |
| 使用部分面積 |
1,158.46m² |
土地面積 |
976.40m²(公簿) |
| 建物構造 |
RC |
築年月 |
2006年1月(築20年5ヶ月)
|
| 土地権利 |
所有権 |
建物名・部屋番号 |
|
| 都市計画 |
非線引区域 |
用途地域 |
無指定 |
| 建ぺい率 |
60% |
容積率 |
200% |
| 駐車場 |
有 3,850円/月 |
バイク置き場 |
- |
| 駐輪場 |
有 |
|
|
| 私道負担面積 |
なし |
接道状況 |
東 6.0m 公道 接面32.8m
|
| 地目 |
宅地 |
地勢 |
- |
| 総戸数 |
15戸 |
国土法届出 |
- |
| アピールポイント |
【オーナーチェンジ物件】賃貸中!
※別途共有地有(1254番3、12.98㎡)持分4/5
・自然が広がる歴史に彩られた安心、安全で子育てしやすい永住したくなる大刀洗町。
のどかな田園地帯に洗練されたスタイリッシュなニューガイア大刀洗が目立ちます。
・屋上一面に太陽光パネルを設置し各世帯にパネルを割り当て、全戸に発電した電気が
個別供給されるシステムの全戸個別供給型太陽光発電付マンションです。
・太陽光発電で作った電力をフルに活用できるオール電化により最適・お得な料金プラン
が利用でき、一般の住宅よりもお得な光熱費を実現できる弊社グループ独自の技術を
生かしたマンションです。
・光熱費の大幅な削減が可能となることで近隣の一般マンションとの差別化が図れるため
近隣の賃料相場より1~2割程高い賃料を設定することができます。 |
| リフォーム履歴 |
- |
| リノベーション履歴 |
- |
| 特記事項 |
駐車場2台分 |
| 備考 |
管理形態/管理員の勤務形態:-/-
他所在地:別途共有地有(1254番3、12.98㎡)持分4/5
主要採光面:南向き
施工会社:岩永工業株式会社
利回り:6.06%
年間予定賃料収入:1,152.3万円
【オーナーチェンジ物件】賃貸中!
※別途共有地有(1254番3、12.98㎡)持分4/5
・自然が広がる歴史に彩られた安心、安全で子育てしやすい永住したくなる大刀洗町。
のどかな田園地帯に洗練されたスタイリッシュなニューガイア大刀洗が目立ちます。
・屋上一面に太陽光パネルを設置し各世帯にパネルを割り当て、全戸に発電した電気が
個別供給されるシステムの全戸個別供給型太陽光発電付マンションです。
・太陽光発電で作った電力をフルに活用できるオール電化により最適・お得な料金プラン
が利用でき、一般の住宅よりもお得に光熱費を実現できる弊社グループ独自の技術を
生かしたマンションです。
・光熱費の大幅な削減が可能となることで近隣の一般マンションとの差別化が図れるため
近隣の賃料相場より1~2割程高い賃料を設定することができます。
|
| エネルギー消費性能 |
- |
| 断熱性能 |
- |
| 目安光熱費 |
- |
| バス・トイレ |
バス・トイレ別、シャワー、トイレ |
| キッチン |
オープンキッチン |
| 設備・サービス |
収納スペース、室内洗濯機置場、オートロック、防犯カメラ、給湯、エアコン、火災警報器(報知機)、インターネット対応、光ファイバー |
| その他 |
エレベーター |
| 条件等 |
オーナーチェンジ |
現況 |
賃貸中 |
| 引渡可能時期 |
即時 |
物件番号 |
6979707487 |
| 情報公開日 |
2024年7月3日 |
次回更新予定日 |
2026年5月22日 |
| ケータイ用バーコード |
- スマートフォンでこの物件を見る
- スマートフォンからもこの物件をご覧になれます。
|
※「-」と表示されている項目については、情報提供会社にご確認ください。
| 周辺施設 |
セブンイレブン大刀洗下高橋店 |
| 距離 |
1423m |
| 周辺施設 |
ホームプラザナフコ大刀洗店 |
| 距離 |
2457m |
ここから簡単にお問い合わせをすることができます。
(SSLでの暗号化での送信を希望されるお客さまは
こちら
よりお問い合わせください)
お問い合わせを行う前に
「個人情報の取り扱いについて」を必ずお読みください。
「個人情報の取り扱いについて」に同意いただいた場合は「上記にご同意の上 確認画面へ進む」のボタンをクリックしてください。
個人情報の取り扱いについて
皆さまが送付された個人情報はアットホーム(株)のサーバを経由し、お問い合わせ先の不動産会社にメールまたはFAXにて転送されるためアットホーム(株)にも保管されます。アットホーム(株)で保管された個人情報の取り扱いについては、【こちら】をご覧ください。
また、本画面でご記入いただいた個人情報は、お問い合わせ先の不動産会社でも保管します。 お問い合わせ先の不動産会社が保管する個人情報の取り扱いについては、不動産会社に直接お問い合わせください。
国土交通大臣免許(2)第9197号 |
|---|
- 交通:
- JR日田彦山線/石田駅 徒歩8分
- 福岡県北九州市小倉南区上石田4丁目17-22
- TEL:
- 093-953-6214
- FAX:
- 093-383-7114
- 所属団体:
- (公社)全日本不動産協会会員(一社)九州不動産公正取引協議会加盟
取引態様:媒介  - 80901574
|
- スマートフォンで
この不動産会社を見る

|
- 提携サイト等より掲載されている物件情報につきましては、不動産会社詳細情報にリンクされていないものがあります。
- 物件に関するお問合せは、物件詳細ページの「情報提供会社」に表示されている不動産会社へ直接お願いいたします。
- 間取図は、現況を優先させていただきます。
- 映像は物件の一部を撮影したものです。物件の契約にあたっての最終判断はご自身の判断に基づいて行ってください。
- 仲介手数料について

アットホームは物件情報の適正化に努めております。
内容に誤りがある場合にはこちらへご連絡ください。