岩手県八幡平市松尾寄木第1地割(大更駅)の売その他:物件詳細
交通 所在地 |
駅徒歩 |
価格 管理費等 |
使用部分面積 土地面積 |
用途地域 建物構造 |
物件種目 築年月 |
|
JR花輪線/大更
岩手県八幡平市松尾寄木第1地割
|
1398m
|
1,500万円
-
|
617.43m²
5,033.00m²
|
-
木造
|
売ホテル
1993年10月(築32年6ヶ月)
|
|
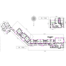
間取図
|
|
<
その他の画像
>
|
| 交通 | JR花輪線 大更駅 徒歩1398m |
| 所在地 |
岩手県八幡平市松尾寄木第1地割
|
| 物件種目 |
売ホテル |
| 価格 |
1,500万円 |
管理費等 |
- |
| 修繕積立金 |
- |
借地期間・地代(月額) |
- |
| 権利金 |
- |
敷金または保証金 |
- / - |
| 維持費等 |
- |
その他一時金 |
- |
| 間取り |
- |
階建 / 階 |
1階建 |
| 使用部分面積 |
617.43m² |
土地面積 |
5,033.00m²(公簿) |
| 建物構造 |
木造 |
築年月 |
1993年10月(築32年6ヶ月)
|
| 土地権利 |
所有権 |
建物名・部屋番号 |
|
| 都市計画 |
区域外 |
用途地域 |
- |
| 建ぺい率 |
30% |
容積率 |
60% |
| 駐車場 |
有 無料 |
バイク置き場 |
- |
| 駐輪場 |
- |
|
|
| 私道負担面積 |
なし |
接道状況 |
北 公道
・
南 公道
・
西 公道
・
三方道路
|
| 地目 |
宅地 |
地勢 |
平坦 |
| 総戸数 |
- |
国土法届出 |
- |
| リフォーム履歴 |
- |
| リノベーション履歴 |
- |
| 特記事項 |
居抜き |
| 備考 |
管理形態/管理員の勤務形態:-/-
温泉あり ■引込状況:引込み可 ■費用等:温泉権利金450万円が別途発生します
◆現況渡し:未使用期間がある為、設備は故障している可能性があります。設備についても現状渡しとなります。◆敷地内テニスコート有り
|
| エネルギー消費性能 |
- |
| 断熱性能 |
- |
| 目安光熱費 |
- |
| バス・トイレ |
男女別トイレ、シャワー、トイレ |
| キッチン |
- |
| 設備・サービス |
給湯、プロパンガス、動力あり |
| その他 |
- |
| 条件等 |
- |
現況 |
空 |
| 引渡可能時期 |
即時 |
物件番号 |
6980966568 |
| 情報公開日 |
2025年7月1日 |
次回更新予定日 |
2026年3月27日 |
| ケータイ用バーコード |
- スマートフォンでこの物件を見る
- スマートフォンからもこの物件をご覧になれます。
|
※「-」と表示されている項目については、情報提供会社にご確認ください。
| 周辺施設 |
岩手県県民の森キャンプ場 |
| 距離 |
1285m |
| 周辺施設 |
八幡平リゾートパノラマスキー場 |
| 距離 |
411m |
| 周辺施設 |
八幡平リゾート下倉スキー場 |
| 距離 |
2347m |
ここから簡単にお問い合わせをすることができます。
(SSLでの暗号化での送信を希望されるお客さまは
こちら
よりお問い合わせください)
お問い合わせを行う前に
「個人情報の取り扱いについて」を必ずお読みください。
「個人情報の取り扱いについて」に同意いただいた場合は「上記にご同意の上 確認画面へ進む」のボタンをクリックしてください。
個人情報の取り扱いについて
皆さまが送付された個人情報はアットホーム(株)のサーバを経由し、お問い合わせ先の不動産会社にメールまたはFAXにて転送されるためアットホーム(株)にも保管されます。アットホーム(株)で保管された個人情報の取り扱いについては、【こちら】をご覧ください。
また、本画面でご記入いただいた個人情報は、お問い合わせ先の不動産会社でも保管します。 お問い合わせ先の不動産会社が保管する個人情報の取り扱いについては、不動産会社に直接お問い合わせください。
岩手県知事免許(2)第2645号 |
|---|
- 交通:
- JR東北本線/盛岡駅 徒歩36分 【バス】10分 イオンモール盛岡南 停歩15分
- 岩手県盛岡市本宮6丁目30-21-1F
- TEL:
- 019-613-3661
- FAX:
- 019-613-3662
- 所属団体:
- (公社)全日本不動産協会会員全国賃貸管理ビジネス協会会員東北地区不動産公正取引協議会加盟
取引態様:一般媒介  - 20005897
|
- スマートフォンで
この不動産会社を見る

|
- 提携サイト等より掲載されている物件情報につきましては、不動産会社詳細情報にリンクされていないものがあります。
- 物件に関するお問合せは、物件詳細ページの「情報提供会社」に表示されている不動産会社へ直接お願いいたします。
- 間取図は、現況を優先させていただきます。
- 映像は物件の一部を撮影したものです。物件の契約にあたっての最終判断はご自身の判断に基づいて行ってください。
- 仲介手数料について

アットホームは物件情報の適正化に努めております。
内容に誤りがある場合にはこちらへご連絡ください。