長崎県大村市小路口本町(竹松駅)の売その他:物件詳細
交通 所在地 |
駅徒歩 |
価格 管理費等 |
使用部分面積 土地面積 |
用途地域 建物構造 |
物件種目 築年月 |
|
JR大村線/竹松 [バス利用可] バス 小路口本町 停歩4分
長崎県大村市小路口本町
|
9分
|
5,930万円
-
|
237.23m²
343.52m²
|
1種住居
木造
|
中古一戸建て
2018年4月(築7年9ヶ月)
|
|
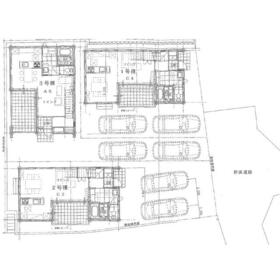
間取図
|
|
その他の画像
|
| 交通 | JR大村線 竹松駅 徒歩9分 [バス利用可] バス 小路口本町 停歩4分 |
|---|
| その他の交通 | JR大村線 新大村駅 徒歩17分 西九州新幹線 新大村駅 徒歩17分 |
| 所在地 |
長崎県大村市小路口本町
|
| 物件種目 |
中古一戸建て |
| 価格 |
5,930万円 |
管理費等 |
- |
| 修繕積立金 |
- |
借地期間・地代(月額) |
- |
| 権利金 |
- |
敷金または保証金 |
- / - |
| 維持費等 |
- |
その他一時金 |
- |
| 間取り |
3LDK |
階建 / 階 |
2階建 |
| 使用部分面積 |
237.23m² |
土地面積 |
343.52m²(公簿) |
| 建物構造 |
木造 |
築年月 |
2018年4月(築7年9ヶ月)
|
| 土地権利 |
所有権 |
建物名・部屋番号 |
|
| 都市計画 |
非線引区域 |
用途地域 |
1種住居 |
| 建ぺい率 |
60% |
容積率 |
200% |
| 駐車場 |
有 |
バイク置き場 |
- |
| 駐輪場 |
- |
|
|
| 私道負担面積 |
有 369.00m²(共有持分1/20) |
接道状況 |
東 4.0m 私道 位置指定有
|
| 地目 |
宅地 |
地勢 |
- |
| 総戸数 |
- |
国土法届出 |
- |
| リフォーム履歴 |
- |
| リノベーション履歴 |
- |
| 特記事項 |
駐車場2台分 |
| 瑕疵保証 |
- |
| 瑕疵保険 |
- |
| 評価・証明書 |
- |
| 備考 |
管理形態/管理員の勤務形態:-/-
利回り:4.10%
年間予定賃料収入:284.4万円
1号棟(A)3LDK:83.03㎡ 駐車場2台込 共益費1,000円
2号棟(C)2LDK:78.20㎡ 駐車場2代目以降3,000円
3号棟(B)3LDK:76.00㎡ 駐車場2代目以降3,000円
|
| エネルギー消費性能 |
- |
| 断熱性能 |
- |
| 目安光熱費 |
- |
| バス・トイレ |
- |
| キッチン |
- |
| 設備・サービス |
- |
| その他 |
- |
| 条件等 |
オーナーチェンジ |
現況 |
賃貸中 |
| 引渡可能時期 |
相談 |
物件番号 |
6982769387 |
| 情報公開日 |
2024年6月28日 |
次回更新予定日 |
2025年12月23日 |
| ケータイ用バーコード |
- スマートフォンでこの物件を見る
- スマートフォンからもこの物件をご覧になれます。
|
※「-」と表示されている項目については、情報提供会社にご確認ください。
| 周辺施設 |
ファミリーマート大村小路口町店 |
| 距離 |
495m |
| 周辺施設 |
ベビー・子供用品バースデイ大村店 |
| 距離 |
981m |
ここから簡単にお問い合わせをすることができます。
(SSLでの暗号化での送信を希望されるお客さまは
こちら
よりお問い合わせください)
お問い合わせを行う前に
「個人情報の取り扱いについて」を必ずお読みください。
「個人情報の取り扱いについて」に同意いただいた場合は「上記にご同意の上 確認画面へ進む」のボタンをクリックしてください。
個人情報の取り扱いについて
皆さまが送付された個人情報はアットホーム(株)のサーバを経由し、お問い合わせ先の不動産会社にメールまたはFAXにて転送されるためアットホーム(株)にも保管されます。アットホーム(株)で保管された個人情報の取り扱いについては、【こちら】をご覧ください。
また、本画面でご記入いただいた個人情報は、お問い合わせ先の不動産会社でも保管します。 お問い合わせ先の不動産会社が保管する個人情報の取り扱いについては、不動産会社に直接お問い合わせください。
長崎県知事免許(8)第2475号 |
|---|
- 交通:
- JR大村線/大村駅 徒歩10分 【バス】 乾馬場 停歩1分
- 長崎県大村市乾馬場町826番地1
- TEL:
- 0957-48-8833
- FAX:
- 0957-48-8844
- 所属団体:
- (公社)長崎県宅地建物取引業協会会員(一社)九州不動産公正取引協議会加盟
取引態様:媒介  - 80501110
|
- スマートフォンで
この不動産会社を見る

|
- 提携サイト等より掲載されている物件情報につきましては、不動産会社詳細情報にリンクされていないものがあります。
- 物件に関するお問合せは、物件詳細ページの「情報提供会社」に表示されている不動産会社へ直接お願いいたします。
- 間取図は、現況を優先させていただきます。
- 映像は物件の一部を撮影したものです。物件の契約にあたっての最終判断はご自身の判断に基づいて行ってください。
- 仲介手数料について

アットホームは物件情報の適正化に努めております。
内容に誤りがある場合にはこちらへご連絡ください。