広島県尾道市高須町(東尾道駅)の売その他:物件詳細
交通 所在地 |
駅徒歩 |
価格 管理費等 |
使用部分面積 土地面積 |
用途地域 建物構造 |
物件種目 築年月 |
JR山陽本線/東尾道 [バス利用可] バス 高須口 停歩1分
広島県尾道市高須町
|
14分
|
4,980万円
-
|
443.79m²
566.88m²
|
準住居
鉄骨造
|
一棟売マンション
1975年5月(築50年6ヶ月)
|
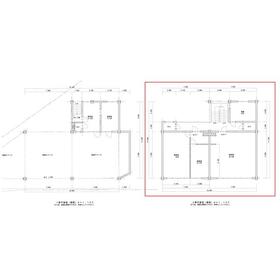
間取図
敷地内駐車場
|
2階平面図
|
その他の画像
|
交通 | JR山陽本線 東尾道駅 徒歩14分 [バス利用可] バス 高須口 停歩1分 |
所在地 |
広島県尾道市高須町
|
物件種目 |
一棟売マンション |
価格 |
4,980万円 |
管理費等 |
- |
修繕積立金 |
- |
借地期間・地代(月額) |
- |
権利金 |
- |
敷金または保証金 |
- / - |
維持費等 |
- |
その他一時金 |
- |
間取り |
- |
階建 / 階 |
4階建 |
使用部分面積 |
443.79m² |
土地面積 |
566.88m²(実測) |
建物構造 |
鉄骨造 |
築年月 |
1975年5月(築50年6ヶ月)
|
土地権利 |
所有権 |
建物名・部屋番号 |
高須ガーデンオフィスビル |
都市計画 |
市街化区域 |
用途地域 |
準住居 |
建ぺい率 |
60% |
容積率 |
200% |
駐車場 |
- |
バイク置き場 |
- |
駐輪場 |
- |
|
|
私道負担面積 |
なし |
接道状況 |
南東 9.0m 公道 接面43.0m
・
北東 5.0m 公道 接面18.0m
・
北西 4.0m 公道 接面45.0m
・
三方道路
|
地目 |
宅地 |
地勢 |
平坦 |
総戸数 |
- |
国土法届出 |
- |
アピールポイント |
ご自身の住宅や事務所も兼ねて、賃料も入る立地の良い収益不動産を是非ご検討ください。 |
リフォーム履歴 |
- |
リノベーション履歴 |
- |
特記事項 |
国道沿いに面する |
備考 |
管理形態/管理員の勤務形態:-/-
主要採光面:南東向き
利回り:5.55%
年間予定賃料収入:289万円
1階駐車場 2階 事務所・教室 3階4階 居室4部屋
現在1室は教室利用です。
居所ですが事務所利用が可能です。
空室は現在募集中。
年間予定賃料は、現在収入を記載しており、空室は含んでいません。
|
エネルギー消費性能 |
- |
断熱性能 |
- |
目安光熱費 |
- |
バス・トイレ |
バス・トイレ別、トイレ |
キッチン |
- |
設備・サービス |
室内洗濯機置場、給湯 |
その他 |
- |
条件等 |
オーナーチェンジ |
現況 |
賃貸中 |
引渡可能時期 |
相談 |
物件番号 |
6983347592 |
情報公開日 |
2024年8月30日 |
次回更新予定日 |
2025年11月4日 |
ケータイ用バーコード |
- スマートフォンでこの物件を見る
- スマートフォンからもこの物件をご覧になれます。
|
※「-」と表示されている項目については、情報提供会社にご確認ください。
周辺施設 |
ファミリーマート尾道高須町店 |
距離 |
134m |
周辺施設 |
ヤマダデンキテックランド福山西店 |
距離 |
497m |
ここから簡単にお問い合わせをすることができます。
(SSLでの暗号化での送信を希望されるお客さまは
こちら
よりお問い合わせください)
お問い合わせを行う前に
「個人情報の取り扱いについて」を必ずお読みください。
「個人情報の取り扱いについて」に同意いただいた場合は「上記にご同意の上 確認画面へ進む」のボタンをクリックしてください。
個人情報の取り扱いについて
皆さまが送付された個人情報はアットホーム(株)のサーバを経由し、お問い合わせ先の不動産会社にメールまたはFAXにて転送されるためアットホーム(株)にも保管されます。アットホーム(株)で保管された個人情報の取り扱いについては、【こちら】をご覧ください。
また、本画面でご記入いただいた個人情報は、お問い合わせ先の不動産会社でも保管します。 お問い合わせ先の不動産会社が保管する個人情報の取り扱いについては、不動産会社に直接お問い合わせください。
広島県知事免許(10)第5742号 |
---|
- 交通:
- 【バス】 松浜四丁目 停歩2分
- 広島県福山市松浜町4丁目5-21
- TEL:
- 084-983-0007
- FAX:
- 084-982-7171
- 所属団体:
- (公社)広島県宅地建物取引業協会会員中国地区不動産公正取引協議会加盟
取引態様:専任媒介  - 50021774
|
- スマートフォンで
この不動産会社を見る

|
- 提携サイト等より掲載されている物件情報につきましては、不動産会社詳細情報にリンクされていないものがあります。
- 物件に関するお問合せは、物件詳細ページの「情報提供会社」に表示されている不動産会社へ直接お願いいたします。
- 間取図は、現況を優先させていただきます。
- 映像は物件の一部を撮影したものです。物件の契約にあたっての最終判断はご自身の判断に基づいて行ってください。
- 仲介手数料について

アットホームは物件情報の適正化に努めております。
内容に誤りがある場合にはこちらへご連絡ください。