広島県廿日市市住吉1丁目(広電廿日市駅)の売その他:物件詳細
交通 所在地 |
駅徒歩 |
価格 管理費等 |
使用部分面積 土地面積 |
用途地域 建物構造 |
物件種目 築年月 |
|
広島電鉄宮島線/広電廿日市
広島県廿日市市住吉1丁目
|
12分
|
1,280万円
-
|
156.86m²
148.98m²
|
1種住居
木造
|
一棟売アパート
1970年12月(築55年4ヶ月)
|
|
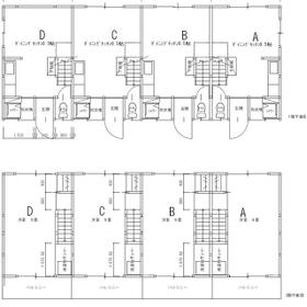
間取図
4部屋、1LDKタイプとなります。
|
キッチン
9.5帖ダイニングスペース
|
<
その他の画像
>
|
| 交通 | 広島電鉄宮島線 広電廿日市駅 徒歩12分 |
|---|
| その他の交通 | JR山陽本線 廿日市駅 徒歩17分 広島電鉄宮島線 廿日市市役所前(平良)駅 徒歩15分 |
| 所在地 |
広島県廿日市市住吉1丁目
|
| 物件種目 |
一棟売アパート |
| 価格 |
1,280万円 |
管理費等 |
- |
| 修繕積立金 |
- |
借地期間・地代(月額) |
- |
| 権利金 |
- |
敷金または保証金 |
- / - |
| 維持費等 |
- |
その他一時金 |
- |
| 間取り |
- |
階建 / 階 |
2階建 |
| 使用部分面積 |
156.86m² |
土地面積 |
148.98m²(公簿) |
| 建物構造 |
木造 |
築年月 |
1970年12月(築55年4ヶ月)
|
| 土地権利 |
所有権 |
建物名・部屋番号 |
廿日市市住吉1丁目 アパート |
| 都市計画 |
市街化区域 |
用途地域 |
1種住居 |
| 建ぺい率 |
60% |
容積率 |
200% |
| 駐車場 |
- |
バイク置き場 |
- |
| 駐輪場 |
無 |
|
|
| 私道負担面積 |
- |
接道状況 |
北西 接面1.3m
|
| 地目 |
宅地 |
地勢 |
平坦 |
| 総戸数 |
1戸 |
国土法届出 |
- |
| アピールポイント |
\詳しい情報やご見学をご希望の際は弊社へお問い合わせください/
送迎、現地集合、ご要望等、遠慮なくご相談ください。
~~たてもの窓口でのコース案内~~
☆売買・住み替え相談コース☆(所要時間)
①お悩み相談コース(1時間半~)
※マンションから一軒家へ、お子様の成長に合わせてなどの購入プランの提案を致します♪
※土地・マンション・一軒家、売りたい!買いたい!住み替え等、対応してます。
☆たてもの窓口・内覧コース☆(所要時間)
②サクッと急ぎめコース!(20分~30分)
※忙しくちょっとしか時間がない、仕事終わり、急遽見たい等
③ゆっくりじっくりコース!(1時間半~2時間)
※ご来店頂きまして、お客様のご希望に合った物件をご紹介させて頂き
その中から見たい物件をピックアップしてご覧頂きます。
④フルサポートコース!(2時間~)
※低金利での住宅ローン相談や月々の返済、車・その他ローン、審査など
お客様に1人1人に合ったプランをご提案させて頂きます。
※又、他の会社で相談したけれど不安な事がある…
他社でのご検討中のお客様も【【セカンドオピニオン】】として相談可能な窓口です♪ |
| リフォーム履歴 |
■水回り:2025年1月 キッチン、浴室、トイレ、給排水管、給湯器 ■内装:2025年1月 内装全面(床・壁・天井・建具) ※実施年月は最も古い履歴を表示 |
| リノベーション履歴 |
- |
| 特記事項 |
再建築不可 |
| 備考 |
管理形態/管理員の勤務形態:-/-
主要採光面:南向き
工事完了予定日:2025年1月
利回り:16.05%
年間予定賃料収入:205.5万円
重要事項 本物件は再建築不可物件となります
理由は建築基準法の接道義務(幅員4m以上の道路に2m以上接する)を満たしていないためです。
建て替えはできませんが、既存建物の大規模リフォーム修繕は可能です。
上記内容をご理解の上、お問い合わせください。
決済キャンペーン実施中
5/31までにお問い合わせいただいたお客様にだけの
キャンペーン内容をお伝えします!!
ぜひこの機会にお得になるキャンペーン内容を聞いて
賃貸オーナーへのチケットを手に入れてください!!
~2025年1月末、1LDK×4戸(メゾネット)フルリノベ済み~
オーナーチェンジ想定年間収入:205万円・表面利回り:16.05%
1LDK×4戸(メゾネット) 令和7年1月末リフォーム完了(全面改装)
間取変更、キッチン・トイレ・シャワーユニット、洗濯パン・給湯器交換
床張替、クロス張替、玄関扉交換、インターフォンテレビ付変更
玄関ポーチ張替、外壁補修、塗装、ベランダ屋根(ポリカ波板)交換
一部外構補修、宅配ボックス各部屋、
【備考】
再建築不可
プロパン業者指定有
|
| エネルギー消費性能 |
- |
| 断熱性能 |
- |
| 目安光熱費 |
- |
| バス・トイレ |
バス・トイレ別、シャワールーム、シャワー、トイレ |
| キッチン |
- |
| 設備・サービス |
収納スペース、室内洗濯機置場、防犯カメラ、給湯、プロパンガス、冷房 |
| その他 |
宅配BOX |
| 条件等 |
オーナーチェンジ |
現況 |
賃貸中 |
| 引渡可能時期 |
即時 |
物件番号 |
6984401899 |
| 情報公開日 |
2026年3月10日 |
次回更新予定日 |
2026年3月26日 |
| ケータイ用バーコード |
- スマートフォンでこの物件を見る
- スマートフォンからもこの物件をご覧になれます。
|
※「-」と表示されている項目については、情報提供会社にご確認ください。
ここから簡単にお問い合わせをすることができます。
(SSLでの暗号化での送信を希望されるお客さまは
こちら
よりお問い合わせください)
お問い合わせを行う前に
「個人情報の取り扱いについて」を必ずお読みください。
「個人情報の取り扱いについて」に同意いただいた場合は「上記にご同意の上 確認画面へ進む」のボタンをクリックしてください。
個人情報の取り扱いについて
皆さまが送付された個人情報はアットホーム(株)のサーバを経由し、お問い合わせ先の不動産会社にメールまたはFAXにて転送されるためアットホーム(株)にも保管されます。アットホーム(株)で保管された個人情報の取り扱いについては、【こちら】をご覧ください。
また、本画面でご記入いただいた個人情報は、お問い合わせ先の不動産会社でも保管します。 お問い合わせ先の不動産会社が保管する個人情報の取り扱いについては、不動産会社に直接お問い合わせください。
広島県知事免許(2)第10741号 |
|---|
- 広島県広島市東区東蟹屋町5-9-101
- TEL:
- 082-205-4234
- FAX:
- 082-205-3061
- 所属団体:
- (公社)広島県宅地建物取引業協会会員中国地区不動産公正取引協議会加盟
取引態様:売主  - 50102773
|
- スマートフォンで
この不動産会社を見る

|
- 提携サイト等より掲載されている物件情報につきましては、不動産会社詳細情報にリンクされていないものがあります。
- 物件に関するお問合せは、物件詳細ページの「情報提供会社」に表示されている不動産会社へ直接お願いいたします。
- 間取図は、現況を優先させていただきます。
- 映像は物件の一部を撮影したものです。物件の契約にあたっての最終判断はご自身の判断に基づいて行ってください。
- 仲介手数料について

アットホームは物件情報の適正化に努めております。
内容に誤りがある場合にはこちらへご連絡ください。