大阪府大阪市港区港晴3丁目(朝潮橋駅)の売その他:物件詳細
交通 所在地 |
駅徒歩 |
価格 管理費等 |
使用部分面積 土地面積 |
用途地域 建物構造 |
物件種目 築年月 |
|
地下鉄中央線/朝潮橋
大阪府大阪市港区港晴3丁目
|
7分
|
4,600万円
-
|
222.26m²
72.37m²
|
1種住居
鉄骨造
|
一棟売マンション
1989年6月(築36年10ヶ月)
|
| 交通 | 地下鉄中央線 朝潮橋駅 徒歩7分 |
| 所在地 |
大阪府大阪市港区港晴3丁目
|
| 物件種目 |
一棟売マンション |
| 価格 |
4,600万円 |
管理費等 |
- |
| 修繕積立金 |
- |
借地期間・地代(月額) |
- |
| 権利金 |
- |
敷金または保証金 |
- / - |
| 維持費等 |
- |
その他一時金 |
- |
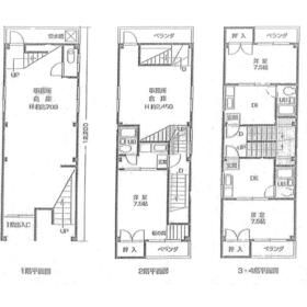
| 間取り |
- |
階建 / 階 |
4階建 |
| 使用部分面積 |
222.26m² |
土地面積 |
72.37m²(公簿) |
| 建物構造 |
鉄骨造 |
築年月 |
1989年6月(築36年10ヶ月)
|
| 土地権利 |
所有権 |
建物名・部屋番号 |
|
| 都市計画 |
市街化区域 |
用途地域 |
1種住居 |
| 建ぺい率 |
80% |
容積率 |
200% |
| 駐車場 |
- |
バイク置き場 |
- |
| 駐輪場 |
- |
|
|
| 私道負担面積 |
- |
接道状況 |
南東 8.0m 公道 接面4.9m
|
| 地目 |
宅地 |
地勢 |
- |
| 総戸数 |
- |
国土法届出 |
- |
| アピールポイント |
☆2019年6月外壁防水工事完了、2019年10月共用部塗装工事完了☆ |
| リフォーム履歴 |
- |
| リノベーション履歴 |
- |
| 特記事項 |
- |
| 備考 |
管理形態/管理員の勤務形態:-/-
満室想定年収(共益費込み、消費税別)3,396,000円
利回り 7.38%
条件等ご相談ください!!
告知事項有り
|
| エネルギー消費性能 |
- |
| 断熱性能 |
- |
| 目安光熱費 |
- |
| バス・トイレ |
- |
| キッチン |
- |
| 設備・サービス |
- |
| その他 |
- |
| 条件等 |
- |
現況 |
賃貸中 |
| 引渡可能時期 |
相談 |
物件番号 |
6986007399 |
| 仲介手数料 |
売買代金の3%+6万円 |
|
|
| 情報公開日 |
2026年1月26日 |
次回更新予定日 |
2026年3月26日 |
| ケータイ用バーコード |
- スマートフォンでこの物件を見る
- スマートフォンからもこの物件をご覧になれます。
|
※「-」と表示されている項目については、情報提供会社にご確認ください。
ここから簡単にお問い合わせをすることができます。
(SSLでの暗号化での送信を希望されるお客さまは
こちら
よりお問い合わせください)
お問い合わせを行う前に
「個人情報の取り扱いについて」を必ずお読みください。
「個人情報の取り扱いについて」に同意いただいた場合は「上記にご同意の上 確認画面へ進む」のボタンをクリックしてください。
個人情報の取り扱いについて
皆さまが送付された個人情報はアットホーム(株)のサーバを経由し、お問い合わせ先の不動産会社にメールまたはFAXにて転送されるためアットホーム(株)にも保管されます。アットホーム(株)で保管された個人情報の取り扱いについては、【こちら】をご覧ください。
また、本画面でご記入いただいた個人情報は、お問い合わせ先の不動産会社でも保管します。 お問い合わせ先の不動産会社が保管する個人情報の取り扱いについては、不動産会社に直接お問い合わせください。
大阪府知事免許(15)第10588号 |
|---|
- 交通:
- 地下鉄中央線/朝潮橋駅 徒歩1分
- 大阪府大阪市港区池島1丁目2-1 相互ビル1F
- TEL:
- 06-6571-2277
- FAX:
- 06-6574-8092
- 所属団体:
- (一社)大阪府宅地建物取引業協会会員(一社)全国賃貸不動産管理業協会会員(公社)近畿地区不動産公正取引協議会加盟
取引態様:媒介  - 50022214
|
- スマートフォンで
この不動産会社を見る

|
- 提携サイト等より掲載されている物件情報につきましては、不動産会社詳細情報にリンクされていないものがあります。
- 物件に関するお問合せは、物件詳細ページの「情報提供会社」に表示されている不動産会社へ直接お願いいたします。
- 間取図は、現況を優先させていただきます。
- 映像は物件の一部を撮影したものです。物件の契約にあたっての最終判断はご自身の判断に基づいて行ってください。
- 仲介手数料について

アットホームは物件情報の適正化に努めております。
内容に誤りがある場合にはこちらへご連絡ください。