福島県会津若松市和田1丁目(会津若松駅)の売その他:物件詳細
交通 所在地 |
駅徒歩 |
価格 管理費等 |
使用部分面積 土地面積 |
用途地域 建物構造 |
物件種目 築年月 |
|
JR只見線/会津若松
福島県会津若松市和田1丁目
|
31分
|
1,000万円
-
|
119.20m²
156.01m²
|
1種低層
木造
|
一棟売アパート
1992年5月(築33年8ヶ月)
|
|
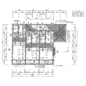
間取図
1階
|
間取図
2階
|
その他の画像
|
| 交通 | JR只見線 会津若松駅 徒歩31分 |
| 所在地 |
福島県会津若松市和田1丁目
|
| 物件種目 |
一棟売アパート |
| 価格 |
1,000万円 |
管理費等 |
- |
| 修繕積立金 |
- |
借地期間・地代(月額) |
- |
| 権利金 |
- |
敷金または保証金 |
- / - |
| 維持費等 |
- |
その他一時金 |
- |
| 間取り |
- |
階建 / 階 |
2階建 |
| 使用部分面積 |
119.20m² |
土地面積 |
156.01m²(公簿) |
| 建物構造 |
木造 |
築年月 |
1992年5月(築33年8ヶ月)
|
| 土地権利 |
所有権 |
建物名・部屋番号 |
|
| 都市計画 |
市街化区域 |
用途地域 |
1種低層 |
| 建ぺい率 |
50% |
容積率 |
100% |
| 駐車場 |
有 5,000円/月 |
バイク置き場 |
- |
| 駐輪場 |
- |
|
|
| 私道負担面積 |
- |
接道状況 |
東 4.0m 公道 接面10.4m
・
南 6.0m 公道 接面14.2m
・
二方道路
|
| 地目 |
宅地 |
地勢 |
- |
| 総戸数 |
- |
国土法届出 |
- |
| アピールポイント |
■現況家賃駐車場収入:1,488,000円/年、表面利回り:14.88%
■満室、満車時想定家賃収入:2,232,000円/年、表面利回り:22.32%
■敷地内に駐車場1台あり(5,000円、契約中)、近隣に月極駐車場あり
■1Kタイプ6部屋
■閑静な住宅街 |
| リフォーム履歴 |
■外装:2018年11月 外壁、屋根 ※実施年月は最も古い履歴を表示 |
| リノベーション履歴 |
- |
| 特記事項 |
- |
| 備考 |
管理形態/管理員の勤務形態:-/-
主要採光面:南向き
利回り:14.28%
年間予定賃料収入:142.8万円
・土砂災害警戒区域内
・水道引込管は北側隣地アパートへも供給しており容量不足の懸念あり、布設替えを行う場合の費用は買主負担
・契約不適合責任免責
|
| エネルギー消費性能 |
- |
| 断熱性能 |
- |
| 目安光熱費 |
- |
| バス・トイレ |
バス・トイレ別、シャワー、トイレ |
| キッチン |
- |
| 設備・サービス |
室内洗濯機置場、給湯、プロパンガス、エアコン |
| その他 |
- |
| 条件等 |
オーナーチェンジ |
現況 |
賃貸中 |
| 引渡可能時期 |
相談 |
物件番号 |
6987182946 |
| 情報公開日 |
2025年11月3日 |
次回更新予定日 |
2025年12月15日 |
| ケータイ用バーコード |
- スマートフォンでこの物件を見る
- スマートフォンからもこの物件をご覧になれます。
|
※「-」と表示されている項目については、情報提供会社にご確認ください。
| 周辺施設 |
セブンイレブン会津千石店 |
| 距離 |
753m |
| 周辺施設 |
福島県立会津大学短期大学部 |
| 距離 |
1351m |
ここから簡単にお問い合わせをすることができます。
(SSLでの暗号化での送信を希望されるお客さまは
こちら
よりお問い合わせください)
お問い合わせを行う前に
「個人情報の取り扱いについて」を必ずお読みください。
「個人情報の取り扱いについて」に同意いただいた場合は「上記にご同意の上 確認画面へ進む」のボタンをクリックしてください。
個人情報の取り扱いについて
皆さまが送付された個人情報はアットホーム(株)のサーバを経由し、お問い合わせ先の不動産会社にメールまたはFAXにて転送されるためアットホーム(株)にも保管されます。アットホーム(株)で保管された個人情報の取り扱いについては、【こちら】をご覧ください。
また、本画面でご記入いただいた個人情報は、お問い合わせ先の不動産会社でも保管します。 お問い合わせ先の不動産会社が保管する個人情報の取り扱いについては、不動産会社に直接お問い合わせください。
福島県知事免許(9)第50162号 |
|---|
- 交通:
- JR磐越西線/会津若松駅 徒歩4分
- 福島県会津若松市駅前町8番18号
- TEL:
- 0242-32-1511
- 所属団体:
- (公社)福島県宅地建物取引業協会会員東北地区不動産公正取引協議会加盟
取引態様:一般媒介  - 20002772
|
- スマートフォンで
この不動産会社を見る

|
- 提携サイト等より掲載されている物件情報につきましては、不動産会社詳細情報にリンクされていないものがあります。
- 物件に関するお問合せは、物件詳細ページの「情報提供会社」に表示されている不動産会社へ直接お願いいたします。
- 間取図は、現況を優先させていただきます。
- 映像は物件の一部を撮影したものです。物件の契約にあたっての最終判断はご自身の判断に基づいて行ってください。
- 仲介手数料について

アットホームは物件情報の適正化に努めております。
内容に誤りがある場合にはこちらへご連絡ください。