埼玉県さいたま市中央区鈴谷2丁目(南与野駅)の売その他:物件詳細
交通 所在地 |
駅徒歩 |
価格 管理費等 |
使用部分面積 土地面積 |
用途地域 建物構造 |
物件種目 築年月 |
|
JR埼京線/南与野
埼玉県さいたま市中央区鈴谷2丁目
|
3分
|
20,000万円
-
|
170.15m²
81.05m²
|
2種住居
RC
|
売寮
2026年8月(新築)
|
|
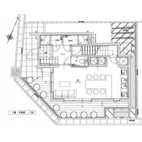
間取図
1F
|
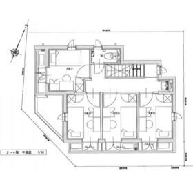
間取図
2-4F
|
その他の画像
|
| 交通 | JR埼京線 南与野駅 徒歩3分 |
| 所在地 |
埼玉県さいたま市中央区鈴谷2丁目
|
| 物件種目 |
売寮 |
| 価格 |
20,000万円 |
管理費等 |
- |
| 修繕積立金 |
- |
借地期間・地代(月額) |
- |
| 権利金 |
- |
敷金または保証金 |
- / - |
| 維持費等 |
- |
その他一時金 |
- |
| 間取り |
- |
階建 / 階 |
4階建 |
| 使用部分面積 |
170.15m² |
土地面積 |
81.05m²(公簿) |
| 建物構造 |
RC |
築年月 |
2026年8月(新築)
|
| 土地権利 |
所有権 |
建物名・部屋番号 |
|
| 都市計画 |
市街化区域 |
用途地域 |
2種住居 |
| 建ぺい率 |
60% |
容積率 |
200% |
| 駐車場 |
無 |
バイク置き場 |
無 |
| 駐輪場 |
有 |
|
|
| 私道負担面積 |
なし |
接道状況 |
南 6.0m 公道 接面7.1m
・
西 6.0m 公道 接面8.8m
・
二方道路
|
| 地目 |
宅地 |
地勢 |
平坦 |
| 総戸数 |
12戸 |
国土法届出 |
- |
| リフォーム履歴 |
- |
| リノベーション履歴 |
- |
| 特記事項 |
- |
| 備考 |
管理形態/管理員の勤務形態:-/-
他所在地:さいたま都市計画事業南与野駅西口土地区画整理事業 19街区12画地、19街区11画地
主要採光面:南向き
工事完了予定日:2026年8月
1階:共用キッチン、ダイニング、シャワールーム2室、洗濯機置場2台分、トイレ
洋室4.76帖タイプ3室、4.32帖タイプ9室
各階に共用トイレ、共用洗面化粧台あり
|
| エネルギー消費性能 |
- |
| 断熱性能 |
- |
| 目安光熱費 |
- |
| バス・トイレ |
シャワールーム、トイレ |
| キッチン |
- |
| 設備・サービス |
無線LAN、防犯カメラ、シャッター雨戸、給湯、都市ガス、エアコン、インターネット対応、ケーブルTV、複層ガラス |
| その他 |
宅配BOX |
| 条件等 |
- |
現況 |
未完成 |
| 引渡可能時期 |
相談 |
物件番号 |
6987381840 |
| 情報公開日 |
2025年8月31日 |
次回更新予定日 |
2025年10月27日 |
| ケータイ用バーコード |
- スマートフォンでこの物件を見る
- スマートフォンからもこの物件をご覧になれます。
|
※「-」と表示されている項目については、情報提供会社にご確認ください。
ここから簡単にお問い合わせをすることができます。
(SSLでの暗号化での送信を希望されるお客さまは
こちら
よりお問い合わせください)
お問い合わせを行う前に
「個人情報の取り扱いについて」を必ずお読みください。
「個人情報の取り扱いについて」に同意いただいた場合は「上記にご同意の上 確認画面へ進む」のボタンをクリックしてください。
個人情報の取り扱いについて
皆さまが送付された個人情報はアットホーム(株)のサーバを経由し、お問い合わせ先の不動産会社にメールまたはFAXにて転送されるためアットホーム(株)にも保管されます。アットホーム(株)で保管された個人情報の取り扱いについては、【こちら】をご覧ください。
また、本画面でご記入いただいた個人情報は、お問い合わせ先の不動産会社でも保管します。 お問い合わせ先の不動産会社が保管する個人情報の取り扱いについては、不動産会社に直接お問い合わせください。
埼玉県知事免許(11)第10112号 |
|---|
- 交通:
- JR京浜東北線/大宮駅 徒歩9分
- 埼玉県さいたま市大宮区桜木町4丁目199-6 川村建設本社ビル1階
- TEL:
- 048-649-8668
- FAX:
- 048-649-5551
- 所属団体:
- (公社)埼玉県宅地建物取引業協会会員(公社)首都圏不動産公正取引協議会加盟
取引態様:専任媒介  - 00111429
|
- スマートフォンで
この不動産会社を見る

|
- 提携サイト等より掲載されている物件情報につきましては、不動産会社詳細情報にリンクされていないものがあります。
- 物件に関するお問合せは、物件詳細ページの「情報提供会社」に表示されている不動産会社へ直接お願いいたします。
- 間取図は、現況を優先させていただきます。
- 映像は物件の一部を撮影したものです。物件の契約にあたっての最終判断はご自身の判断に基づいて行ってください。
- 仲介手数料について

アットホームは物件情報の適正化に努めております。
内容に誤りがある場合にはこちらへご連絡ください。