岩手県盛岡市本町通3丁目(盛岡駅)の売その他:物件詳細
交通 所在地 |
駅徒歩 |
価格 管理費等 |
使用部分面積 土地面積 |
用途地域 建物構造 |
物件種目 築年月 |
|
東北新幹線/盛岡
岩手県盛岡市本町通3丁目
|
18分
|
20,000万円
-
|
624.96m²
340.47m²
|
近隣商業
RC
|
一棟売マンション
1996年2月(築30年1ヶ月)
|
|
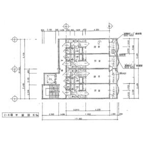
間取図
2~8階平面図
|
外観
|
その他の画像
|
| 交通 | 東北新幹線 盛岡駅 徒歩18分 |
|---|
| その他の交通 | JR山田線 上盛岡駅 徒歩8分 JR東北本線 盛岡駅 徒歩18分 |
| 所在地 |
岩手県盛岡市本町通3丁目
|
| 物件種目 |
一棟売マンション |
| 価格 |
20,000万円 |
管理費等 |
- |
| 修繕積立金 |
- |
借地期間・地代(月額) |
- |
| 権利金 |
- |
敷金または保証金 |
- / - |
| 維持費等 |
- |
その他一時金 |
- |
| 間取り |
- |
階建 / 階 |
8階建 |
| 使用部分面積 |
624.96m² |
土地面積 |
340.47m² |
| 建物構造 |
RC |
築年月 |
1996年2月(築30年1ヶ月)
|
| 土地権利 |
所有権 |
建物名・部屋番号 |
ジュウエル仁王 |
| 都市計画 |
市街化区域 |
用途地域 |
近隣商業 |
| 建ぺい率 |
80% |
容積率 |
200% |
| 駐車場 |
有 13,200円/月 |
バイク置き場 |
- |
| 駐輪場 |
- |
|
|
| 私道負担面積 |
- |
接道状況 |
東 5.8m 公道 接面13.5m
|
| 地目 |
宅地 |
地勢 |
平坦 |
| 総戸数 |
28戸 |
国土法届出 |
- |
| アピールポイント |
盛岡市中心部の1Kマンション。エレベーター付き、駐車場9台分、バストイレ別の物件です。 |
| リフォーム履歴 |
- |
| リノベーション履歴 |
- |
| 特記事項 |
- |
| 備考 |
管理形態/管理員の勤務形態:-/-
利回り:7.52%
年間予定賃料収入:1,729万円
盛岡市中心部の1Kマンション。エレベーター付き、駐車場9台分、バストイレ別の物件です。
|
| エネルギー消費性能 |
- |
| 断熱性能 |
- |
| 目安光熱費 |
- |
| バス・トイレ |
バス・トイレ別 |
| キッチン |
- |
| 設備・サービス |
室内洗濯機置場、給湯、プロパンガス |
| その他 |
- |
| 条件等 |
オーナーチェンジ |
現況 |
賃貸中 |
| 引渡可能時期 |
相談 |
物件番号 |
6987678309 |
| 仲介手数料 |
売買代金の3%+6万円 |
|
|
| 情報公開日 |
2025年9月16日 |
次回更新予定日 |
2026年2月15日 |
| ケータイ用バーコード |
- スマートフォンでこの物件を見る
- スマートフォンからもこの物件をご覧になれます。
|
※「-」と表示されている項目については、情報提供会社にご確認ください。
| 周辺施設 |
県立中央病院 |
| 距離 |
940m |
写真を見る |
| 周辺施設 |
ベルプラスベルプラスワン |
| 距離 |
569m |
| 周辺施設 |
ファミリーマート盛岡日影門店 |
| 距離 |
294m |
写真を見る |
| 周辺施設 |
盛岡市立上田中学校 |
| 距離 |
1186m |
写真を見る |
| 周辺施設 |
盛岡市立仁王小学校 |
| 距離 |
530m |
写真を見る |
| 周辺施設 |
盛岡中央郵便局 |
| 距離 |
427m |
写真を見る |
ここから簡単にお問い合わせをすることができます。
(SSLでの暗号化での送信を希望されるお客さまは
こちら
よりお問い合わせください)
お問い合わせを行う前に
「個人情報の取り扱いについて」を必ずお読みください。
「個人情報の取り扱いについて」に同意いただいた場合は「上記にご同意の上 確認画面へ進む」のボタンをクリックしてください。
個人情報の取り扱いについて
皆さまが送付された個人情報はアットホーム(株)のサーバを経由し、お問い合わせ先の不動産会社にメールまたはFAXにて転送されるためアットホーム(株)にも保管されます。アットホーム(株)で保管された個人情報の取り扱いについては、【こちら】をご覧ください。
また、本画面でご記入いただいた個人情報は、お問い合わせ先の不動産会社でも保管します。 お問い合わせ先の不動産会社が保管する個人情報の取り扱いについては、不動産会社に直接お問い合わせください。
岩手県知事免許(11)第1473号 |
|---|
- 交通:
- JR東北本線/盛岡駅 【バス】4分 杜の道北 停歩1分
- 岩手県盛岡市本宮3丁目49-46
- TEL:
- 019-681-8822
- FAX:
- 019-681-8833
- 所属団体:
- (一社)岩手県宅地建物取引業協会会員東北地区不動産公正取引協議会加盟
取引態様:一般媒介  - 20003482
|
- スマートフォンで
この不動産会社を見る

|
- 提携サイト等より掲載されている物件情報につきましては、不動産会社詳細情報にリンクされていないものがあります。
- 物件に関するお問合せは、物件詳細ページの「情報提供会社」に表示されている不動産会社へ直接お願いいたします。
- 間取図は、現況を優先させていただきます。
- 映像は物件の一部を撮影したものです。物件の契約にあたっての最終判断はご自身の判断に基づいて行ってください。
- 仲介手数料について

アットホームは物件情報の適正化に努めております。
内容に誤りがある場合にはこちらへご連絡ください。