不動産 賃貸 マンション等の住宅情報:埼玉住まい情報


兵庫県洲本市上物部2丁目の売その他:物件詳細

  • 物件詳細
  • 情報の見方
  • 印刷用画面
交通
所在地
駅徒歩 価格
管理費等
使用部分面積
土地面積
用途地域
建物構造
物件種目
築年月

洲本ICまで車で約20分

兵庫県洲本市上物部2丁目


1,695万円

100.08m²

269.79m²

2種中高

RC

一棟売アパート

1972年1月(築53年10ヶ月)

おすすめコメント

収益物件。メゾネットタイプ2戸、現況満室。現況年間家賃収入144万円、現況利回り8.49%。駐車場2台空あり8,800円/月・台。満室満車時年間家賃収入165.12万円満室利回9.74%。

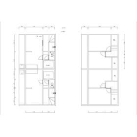
間取図

間取図

その他の画像
    • とりあえず保存
    • お問い合わせ
    交通

    洲本ICまで車で約20分

    所在地 兵庫県洲本市上物部2丁目
    物件種目 一棟売アパート
    価格 1,695万円 管理費等
    修繕積立金 借地期間・地代(月額)
    権利金 敷金または保証金 - / -
    維持費等 インターネット:6,556円/月 その他一時金
    間取り 階建 / 階 2階建
    使用部分面積 100.08m² 土地面積 269.79m²(公簿)
    建物構造 RC 築年月 1972年1月(築53年10ヶ月)
    土地権利 所有権 建物名・部屋番号  
    都市計画 非線引区域 用途地域 2種中高
    建ぺい率 60% 容積率 200%
    駐車場 バイク置き場
    駐輪場    
    私道負担面積 なし 接道状況
    地目 宅地 地勢 平坦
    総戸数 国土法届出
    リフォーム履歴 ■水回り:2022年1月
    キッチン、トイレ、洗面所
    ■内装:2022年1月
    壁・天井(クロス・塗装等)
    ■外装:2022年1月
    外壁、屋根
    ■その他:2023年1月
    シロアリ駆除
    ※実施年月は最も古い履歴を表示
    リノベーション履歴
    特記事項
    備考
    管理形態/管理員の勤務形態:-/-
    利回り:8.49%
    年間予定賃料収入:144万円
    リフォーム歴 2022年 外壁塗装、トイレ・洗面・キッチン交換クロス張替。2023年 屋上防水工事、サッシ入替、シロアリ駆除。現状渡し。築年数相当の劣化があります。インターネット契約6556円/月。令和7年度固定資産税額90,900円。
    エネルギー消費性能
    断熱性能
    目安光熱費
    バス・トイレ
    キッチン
    設備・サービス
    その他
    条件等 現況 所有者居住中
    引渡可能時期 相談 物件番号 6987893413
    情報公開日 2025年10月4日 次回更新予定日 2025年11月1日
    ケータイ用バーコード

    QRコード

    スマートフォンでこの物件を見る
    スマートフォンからもこの物件をご覧になれます。
    ※「-」と表示されている項目については、情報提供会社にご確認ください。

    クイックお問い合わせ

    ここから簡単にお問い合わせをすることができます。
    (SSLでの暗号化での送信を希望されるお客さまは こちら よりお問い合わせください)

    お問い合わせ内容(必須)
    お名前(必須) 姓  名 
    メールアドレス(必須)
    ※携帯電話のメールアドレスをご入力される方はこちらをご確認ください
    電話番号(必須)
    - -

    ※入力いただいた電話番号へSMSまたは音声でパスワードをご連絡します。

    携帯電話の番号をご入力の方へ

    携帯電話の番号をご入力の方へ
    確認画面にて送信ボタンをクリックするとSMSが携帯電話に届きます。
    そのSMSに記載のパスワード(認証番号)を入力し、お問い合わせを完了してください。
    尚、SMSの送信者番号は 0005 202 760 となります。
    これはアットホームの固定番号です。

    備考欄 希望条件、物件案内希望日、質問などがございましたらご記入ください。
    お問い合わせを行う前に「個人情報の取り扱いについて」を必ずお読みください。
    「個人情報の取り扱いについて」に同意いただいた場合は「上記にご同意の上 確認画面へ進む」のボタンをクリックしてください。

    個人情報の取り扱いについて

    皆さまが送付された個人情報はアットホーム(株)のサーバを経由し、お問い合わせ先の不動産会社にメールまたはFAXにて転送されるためアットホーム(株)にも保管されます。アットホーム(株)で保管された個人情報の取り扱いについては、【こちら】をご覧ください。
    また、本画面でご記入いただいた個人情報は、お問い合わせ先の不動産会社でも保管します。 お問い合わせ先の不動産会社が保管する個人情報の取り扱いについては、不動産会社に直接お問い合わせください。

    情報提供会社

    情報提供会社

    洲本信用不動産(株)

    兵庫県知事免許(15)第3900号

    交通:
    【バス】 洲本バスターミナル
    兵庫県洲本市本町4丁目3-16 
    TEL:
    0799-24-1616
    FAX:
    0799-22-1563
    所属団体:
    (一社)兵庫県宅地建物取引業協会会員
    (公社)近畿地区不動産公正取引協議会加盟

    取引態様:一般媒介

    • 会社情報
    • 50101284
    スマートフォンで
    この不動産会社を見る
    QRコード
    • とりあえず保存
    • お問い合わせ
    • 提携サイト等より掲載されている物件情報につきましては、不動産会社詳細情報にリンクされていないものがあります。
    • 物件に関するお問合せは、物件詳細ページの「情報提供会社」に表示されている不動産会社へ直接お願いいたします。
    • 間取図は、現況を優先させていただきます。
    • 映像は物件の一部を撮影したものです。物件の契約にあたっての最終判断はご自身の判断に基づいて行ってください。
    • 仲介手数料について仲介手数料

    アットホームは物件情報の適正化に努めております。 内容に誤りがある場合にはこちらへご連絡ください。

    【埼玉住まい情報】では、日本全国の物件から賃貸マンションや賃貸アパート・賃貸一戸建て等の賃貸住宅情報、新築マンション・分譲マンションや中古マンション等の売買マンション情報、新築一戸建てや中古一戸建てなどの戸建住宅、 土地など、総合的な不動産住宅情報検索サービスを提供致します。
    【埼玉住まい情報】から、選りすぐりの不動産物件を探してみましょう。

    【免責事項】
    このコーナーの運営はアットホーム株式会社(https://www.athome.co.jp/)が行っています。
    このコーナーに掲載している物件情報は、「アットホーム不動産情報ネットワーク」に加盟する不動産会社等(情報提供元)から提供されています。信頼性の高い情報提供が行えるよう、最大限の努力をしておりますが、その内容を保証するものではありません。 利用者のみなさまと各情報提供元との取引に起因する損害および情報が掲載されたことに起因する損害等については、株式会社イーシティ埼玉、およびアットホームは一切責任を負いません。
    各物件情報の内容や画像等はすべて現況を優先させていただきます。
    お取引等(お取引の準備、資金調達等を含みます)の際には、内容や契約条件等について、各情報提供元より十分な説明を受け、ご自身でご確認の上、判断してください。
    このコーナーへの物件情報のご掲載、その他不動産業務ソリューション等についての不動産会社様のお問合せはこちらからお願いいたします。

    物件画像: