宮城県仙台市太白区中田町字境(南仙台駅)の売その他:物件詳細
交通 所在地 |
駅徒歩 |
価格 管理費等 |
使用部分面積 土地面積 |
用途地域 建物構造 |
物件種目 築年月 |
|
JR常磐線/南仙台
宮城県仙台市太白区中田町字境
|
33分
|
3,000万円
-
|
110.95m²
165.07m²
|
1種低層
木造
|
中古一戸建て
2011年10月(築14年3ヶ月)
|
|
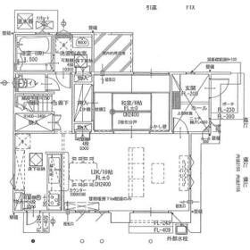
間取図
|
|
その他の画像
|
| 交通 | JR常磐線 南仙台駅 徒歩33分 |
| 所在地 |
宮城県仙台市太白区中田町字境
|
| 物件種目 |
中古一戸建て |
| 価格 |
3,000万円 |
管理費等 |
- |
| 修繕積立金 |
- |
借地期間・地代(月額) |
- |
| 権利金 |
- |
敷金または保証金 |
- / - |
| 維持費等 |
- |
その他一時金 |
- |
| 間取り |
4SLDK(和 6 洋 8.5・6・6 S 4) |
階建 / 階 |
2階建 |
| 使用部分面積 |
110.95m² |
土地面積 |
165.07m²(公簿) |
| 建物構造 |
木造 |
築年月 |
2011年10月(築14年3ヶ月)
|
| 土地権利 |
所有権 |
建物名・部屋番号 |
|
| 都市計画 |
市街化区域 |
用途地域 |
1種低層 |
| 建ぺい率 |
50% |
容積率 |
80% |
| 駐車場 |
有 無料 |
バイク置き場 |
- |
| 駐輪場 |
- |
|
|
| 私道負担面積 |
- |
接道状況 |
東 5.9m 公道
・
南 6.2m 公道
・
二方道路
|
| 地目 |
宅地 |
地勢 |
平坦 |
| 総戸数 |
- |
国土法届出 |
- |
| リフォーム履歴 |
- |
| リノベーション履歴 |
- |
| 特記事項 |
駐車場2台分、吹抜、オール電化 |
| 瑕疵保証 |
- |
| 瑕疵保険 |
- |
| 評価・証明書 |
- |
| 備考 |
管理形態/管理員の勤務形態:-/-
利回り:6.00%
年間予定賃料収入:180万円
賃貸中の為、現地確認等詳細は担当及川にお問合せください。
|
| エネルギー消費性能 |
- |
| 断熱性能 |
- |
| 目安光熱費 |
- |
| バス・トイレ |
トイレ2ヶ所 |
| キッチン |
- |
| 設備・サービス |
エアコン、複層ガラス、Low-E ガラス |
| その他 |
- |
| 条件等 |
オーナーチェンジ |
現況 |
賃貸中 |
| 引渡可能時期 |
相談 |
物件番号 |
6987901513 |
| 情報公開日 |
2025年10月6日 |
次回更新予定日 |
2025年12月20日 |
| ケータイ用バーコード |
- スマートフォンでこの物件を見る
- スマートフォンからもこの物件をご覧になれます。
|
※「-」と表示されている項目については、情報提供会社にご確認ください。
| 周辺施設 |
セブンイレブン仙台四郎丸店 |
| 距離 |
785m |
ここから簡単にお問い合わせをすることができます。
(SSLでの暗号化での送信を希望されるお客さまは
こちら
よりお問い合わせください)
お問い合わせを行う前に
「個人情報の取り扱いについて」を必ずお読みください。
「個人情報の取り扱いについて」に同意いただいた場合は「上記にご同意の上 確認画面へ進む」のボタンをクリックしてください。
個人情報の取り扱いについて
皆さまが送付された個人情報はアットホーム(株)のサーバを経由し、お問い合わせ先の不動産会社にメールまたはFAXにて転送されるためアットホーム(株)にも保管されます。アットホーム(株)で保管された個人情報の取り扱いについては、【こちら】をご覧ください。
また、本画面でご記入いただいた個人情報は、お問い合わせ先の不動産会社でも保管します。 お問い合わせ先の不動産会社が保管する個人情報の取り扱いについては、不動産会社に直接お問い合わせください。
国土交通大臣免許(2)第9044号 |
|---|
- 交通:
- 仙台市南北線/泉中央駅 徒歩30分 【バス】2分 宮城交通本社前 停歩15分
- 宮城県仙台市泉区大沢3丁目4-1
- TEL:
- 022-725-5165
- FAX:
- 022-725-5166
取引態様:一般媒介  - 20005506
|
- スマートフォンで
この不動産会社を見る

|
- 提携サイト等より掲載されている物件情報につきましては、不動産会社詳細情報にリンクされていないものがあります。
- 物件に関するお問合せは、物件詳細ページの「情報提供会社」に表示されている不動産会社へ直接お願いいたします。
- 間取図は、現況を優先させていただきます。
- 映像は物件の一部を撮影したものです。物件の契約にあたっての最終判断はご自身の判断に基づいて行ってください。
- 仲介手数料について

アットホームは物件情報の適正化に努めております。
内容に誤りがある場合にはこちらへご連絡ください。