東京都荒川区西尾久1丁目(田端駅)の売その他:物件詳細
交通 所在地 |
駅徒歩 |
価格 管理費等 |
使用部分面積 土地面積 |
用途地域 建物構造 |
物件種目 築年月 |
|
JR山手線/田端
東京都荒川区西尾久1丁目
|
13分
|
9,380万円
-
|
165.00m²
80.82m²
|
近隣商業
鉄骨造
|
売ビル
1993年9月(築32年4ヶ月)
|
| 交通 | JR山手線 田端駅 徒歩13分 |
|---|
| その他の交通 | JR高崎線 尾久駅 徒歩9分 |
| 所在地 |
東京都荒川区西尾久1丁目
|
| 物件種目 |
売ビル |
| 価格 |
9,380万円 |
管理費等 |
- |
| 修繕積立金 |
- |
借地期間・地代(月額) |
- |
| 権利金 |
- |
敷金または保証金 |
- / - |
| 維持費等 |
- |
その他一時金 |
- |
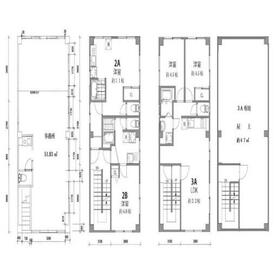
| 間取り |
- |
階建 / 階 |
3階建 |
| 使用部分面積 |
165.00m² |
土地面積 |
80.82m²(公簿) |
| 建物構造 |
鉄骨造 |
築年月 |
1993年9月(築32年4ヶ月)
|
| 土地権利 |
所有権 |
建物名・部屋番号 |
|
| 都市計画 |
市街化区域 |
用途地域 |
近隣商業 |
| 建ぺい率 |
- |
容積率 |
- |
| 駐車場 |
- |
バイク置き場 |
- |
| 駐輪場 |
- |
|
|
| 私道負担面積 |
- |
接道状況 |
-
|
| 地目 |
- |
地勢 |
- |
| 総戸数 |
4戸 |
国土法届出 |
- |
| アピールポイント |
荒川区西尾久の1棟マンション、安定した満室稼働で収益性が魅力の投資物件です。
・JR山手線田端駅徒歩13分、JR高崎線尾久駅徒歩9分の2駅利用可能
・想定年間収入522万円、表面利回り5.56%
・1993年築で管理状況良好
・周辺は生活利便性が高く、賃貸需要も安定
・満室稼働中で即収益化が可能 |
| リフォーム履歴 |
- |
| リノベーション履歴 |
- |
| 特記事項 |
- |
| 備考 |
管理形態/管理員の勤務形態:-/-
利回り:5.56%
年間予定賃料収入:522万円
|
| エネルギー消費性能 |
- |
| 断熱性能 |
- |
| 目安光熱費 |
- |
| バス・トイレ |
- |
| キッチン |
- |
| 設備・サービス |
- |
| その他 |
- |
| 条件等 |
オーナーチェンジ |
現況 |
賃貸中 |
| 引渡可能時期 |
相談 |
物件番号 |
6987947520 |
| 情報公開日 |
2025年10月9日 |
次回更新予定日 |
2025年12月23日 |
| ケータイ用バーコード |
- スマートフォンでこの物件を見る
- スマートフォンからもこの物件をご覧になれます。
|
※「-」と表示されている項目については、情報提供会社にご確認ください。
ここから簡単にお問い合わせをすることができます。
(SSLでの暗号化での送信を希望されるお客さまは
こちら
よりお問い合わせください)
お問い合わせを行う前に
「個人情報の取り扱いについて」を必ずお読みください。
「個人情報の取り扱いについて」に同意いただいた場合は「上記にご同意の上 確認画面へ進む」のボタンをクリックしてください。
個人情報の取り扱いについて
皆さまが送付された個人情報はアットホーム(株)のサーバを経由し、お問い合わせ先の不動産会社にメールまたはFAXにて転送されるためアットホーム(株)にも保管されます。アットホーム(株)で保管された個人情報の取り扱いについては、【こちら】をご覧ください。
また、本画面でご記入いただいた個人情報は、お問い合わせ先の不動産会社でも保管します。 お問い合わせ先の不動産会社が保管する個人情報の取り扱いについては、不動産会社に直接お問い合わせください。
東京都知事免許(4)第86425号 |
|---|
- 交通:
- JR山手線/御徒町駅 徒歩3分
- 東京都台東区上野3丁目10-1 ファーストビル1階
- TEL:
- 03-5807-7251
- FAX:
- 03-5807-7253
- 所属団体:
- (公社)全日本不動産協会会員(公社)首都圏不動産公正取引協議会加盟
取引態様:媒介  - 00015552
|
- スマートフォンで
この不動産会社を見る

|
- 提携サイト等より掲載されている物件情報につきましては、不動産会社詳細情報にリンクされていないものがあります。
- 物件に関するお問合せは、物件詳細ページの「情報提供会社」に表示されている不動産会社へ直接お願いいたします。
- 間取図は、現況を優先させていただきます。
- 映像は物件の一部を撮影したものです。物件の契約にあたっての最終判断はご自身の判断に基づいて行ってください。
- 仲介手数料について

アットホームは物件情報の適正化に努めております。
内容に誤りがある場合にはこちらへご連絡ください。