東京都清瀬市元町1丁目(清瀬駅)の売その他:物件詳細
交通 所在地 |
駅徒歩 |
価格 管理費等 |
使用部分面積 土地面積 |
用途地域 建物構造 |
物件種目 築年月 |
西武池袋線/清瀬
東京都清瀬市元町1丁目
|
8分
|
9,640万円
-
|
184.94m²
109.80m²
|
1種中高
木造
|
一棟売アパート
2025年10月(新築)
|
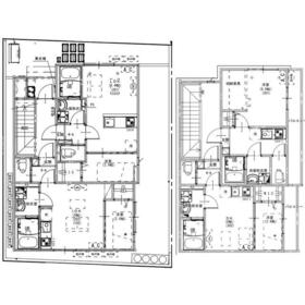
間取図
|
外観
|
その他の画像
|
交通 | 西武池袋線 清瀬駅 徒歩8分 |
所在地 |
東京都清瀬市元町1丁目
|
物件種目 |
一棟売アパート |
価格 |
9,640万円 |
管理費等 |
- |
修繕積立金 |
- |
借地期間・地代(月額) |
- |
権利金 |
- |
敷金または保証金 |
- / - |
維持費等 |
- |
その他一時金 |
- |
間取り |
- |
階建 / 階 |
3階建 |
使用部分面積 |
184.94m² |
土地面積 |
109.80m²(公簿) |
建物構造 |
木造 |
築年月 |
2025年10月(新築)
|
土地権利 |
所有権 |
建物名・部屋番号 |
KEIAI RESIDENCE 清瀬Ⅱ |
都市計画 |
市街化区域 |
用途地域 |
1種中高 |
建ぺい率 |
60% |
容積率 |
200% |
駐車場 |
- |
バイク置き場 |
- |
駐輪場 |
- |
|
|
私道負担面積 |
有 22.00m² |
接道状況 |
北西 4.0m 私道 接面9.1m
|
地目 |
宅地 |
地勢 |
- |
総戸数 |
- |
国土法届出 |
- |
アピールポイント |
【新築アパート】
・西武池袋線「清瀬駅」徒歩8分
・清瀬駅:所沢駅まで乗車時間5分、練馬駅まで乗車時間15分、池袋駅まで乗車時間23分
【仕様①】
オートロック/宅配ボックス/独立洗面台/浴室暖房換気乾燥機/室内物干し/温水洗浄便座/2口ガスコンロ(1K・1DK)/2口IHコンロ(1LDK)/遮熱複層ガラス/フローリング/ロフト家具(1K)/クローゼット/モニター付インターホン/エアコン/24時間換気
【仕様②】
劣化対策等級3/強固なベタ基礎構造/防火ドア/防火窓/断熱材/準耐火構造/建物10年保証/地盤20年保証/アフターメンテナンス/界壁石膏ボード2重貼り/グラスウール(法定基準の4倍の厚み)/防音フロア(クッション材+軽量気泡コンクリート36mm)/防音排水管(遮音シート)
【ケイアイスター不動産】
・プライム市場上場
・仕入、設計、施工、販売、管理まで自社一貫体制
・売主の為、仲介手数料は掛かりません
・ご融資もお気軽にご相談ください
※管理会社はケイアイスター不動産となります
【お問い合わせ】
ケイアイスター不動産 アパート事業部
TEL:03-5299-7572 |
リフォーム履歴 |
- |
リノベーション履歴 |
- |
特記事項 |
24時間換気システム |
備考 |
管理形態/管理員の勤務形態:-/-
利回り:6.00%
年間予定賃料収入:578.4万円
BELS/省エネ基準適合認定
|
エネルギー消費性能 |
- |
断熱性能 |
- |
目安光熱費 |
- |
バス・トイレ |
バス・トイレ別、シャワー、トイレ |
キッチン |
- |
設備・サービス |
収納スペース、室内洗濯機置場、オートロック、シャッター雨戸、給湯、プロパンガス、エアコン、暖房、冷房、火災警報器(報知機)、インターネット対応、CATVインターネット、ケーブルTV、有線放送、Low-E ガラス |
その他 |
宅配BOX |
条件等 |
- |
現況 |
未完成 |
引渡可能時期 |
相談 |
物件番号 |
6988050103 |
仲介手数料 |
不要 |
|
|
情報公開日 |
2025年10月17日 |
次回更新予定日 |
2025年10月31日 |
ケータイ用バーコード |
- スマートフォンでこの物件を見る
- スマートフォンからもこの物件をご覧になれます。
|
※「-」と表示されている項目については、情報提供会社にご確認ください。
周辺施設 |
セブンイレブン清瀬元町1丁目店 |
距離 |
314m |
周辺施設 |
ファミリーマートトモニー清瀬駅店 |
距離 |
659m |
ここから簡単にお問い合わせをすることができます。
(SSLでの暗号化での送信を希望されるお客さまは
こちら
よりお問い合わせください)
お問い合わせを行う前に
「個人情報の取り扱いについて」を必ずお読みください。
「個人情報の取り扱いについて」に同意いただいた場合は「上記にご同意の上 確認画面へ進む」のボタンをクリックしてください。
個人情報の取り扱いについて
皆さまが送付された個人情報はアットホーム(株)のサーバを経由し、お問い合わせ先の不動産会社にメールまたはFAXにて転送されるためアットホーム(株)にも保管されます。アットホーム(株)で保管された個人情報の取り扱いについては、【こちら】をご覧ください。
また、本画面でご記入いただいた個人情報は、お問い合わせ先の不動産会社でも保管します。 お問い合わせ先の不動産会社が保管する個人情報の取り扱いについては、不動産会社に直接お問い合わせください。
ケイアイスター不動産(株) アパート事業部国土交通大臣免許(6)第5508号 |
---|
- 交通:
- 東京メトロ丸ノ内線/東京駅 徒歩1分
- 東京都中央区八重洲2丁目2-1 東京ミッドタウン八重洲 八重洲セントラルタワー12階
- TEL:
- 03-5299-7572
- FAX:
- 03-5299-7574
- 所属団体:
- (公社)全日本不動産協会会員不動産公正取引協議会加盟
取引態様:売主 |
- 提携サイト等より掲載されている物件情報につきましては、不動産会社詳細情報にリンクされていないものがあります。
- 物件に関するお問合せは、物件詳細ページの「情報提供会社」に表示されている不動産会社へ直接お願いいたします。
- 間取図は、現況を優先させていただきます。
- 映像は物件の一部を撮影したものです。物件の契約にあたっての最終判断はご自身の判断に基づいて行ってください。
- 仲介手数料について

アットホームは物件情報の適正化に努めております。
内容に誤りがある場合にはこちらへご連絡ください。