神奈川県横浜市西区浅間町1丁目(横浜駅)の売その他:物件詳細
交通 所在地 |
駅徒歩 |
価格 管理費等 |
使用部分面積 土地面積 |
用途地域 建物構造 |
物件種目 築年月 |
|
ブルーライン/横浜
神奈川県横浜市西区浅間町1丁目
|
13分
|
21,500万円
-
|
773.81m²
368.12m²
|
近隣商業
RC
|
一棟売アパート
1987年4月(築38年11ヶ月)
|
|
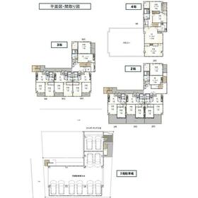
間取図
|
外観
|
その他の画像
|
| 交通 | ブルーライン 横浜駅 徒歩13分 |
|---|
| その他の交通 | 相鉄本線 平沼橋駅 徒歩13分 湘南新宿ライン(宇都宮〜逗子) 横浜駅 徒歩15分 |
| 所在地 |
神奈川県横浜市西区浅間町1丁目
|
| 物件種目 |
一棟売アパート |
| 価格 |
21,500万円 |
管理費等 |
- |
| 修繕積立金 |
- |
借地期間・地代(月額) |
- |
| 権利金 |
- |
敷金または保証金 |
- / - |
| 維持費等 |
地代 ※土地賃貸借契約(旧借地法):30,000円/月 |
その他一時金 |
- |
| 間取り |
- |
階建 / 階 |
4階建 |
| 使用部分面積 |
773.81m² |
土地面積 |
368.12m² |
| 建物構造 |
RC |
築年月 |
1987年4月(築38年11ヶ月)
|
| 土地権利 |
所有権 |
建物名・部屋番号 |
|
| 都市計画 |
市街化区域 |
用途地域 |
近隣商業 |
| 建ぺい率 |
80% |
容積率 |
300% |
| 駐車場 |
有 |
バイク置き場 |
- |
| 駐輪場 |
- |
|
|
| 私道負担面積 |
なし |
接道状況 |
北 15.0m 公道 接面9.9m
・
西 4.0m 公道 接面12.9m
|
| 地目 |
宅地 |
地勢 |
- |
| 総戸数 |
- |
国土法届出 |
- |
| アピールポイント |
■人気の「横浜駅」アクセスエリア 駅まで徒歩15分
■RC造4階建
■総戸数9(1DK+S)1戸、(2DK)6戸、(1LDK+S)1戸、(3LDK+S+ルーフバルコニー)1戸
■8戸稼働中/9戸中
■4階(3LDK+S+ルーフバルコニー)リノベーション内容:キッチン、床張替、クロス、畳、エアコン設置、 現在賃貸募集中
■1階は駐車場8台とコインパーキング2台です。
■北側公道約15m 接道約9.9m、西側公道約4m 接道12.9m |
| リフォーム履歴 |
- |
| リノベーション履歴 |
- |
| 特記事項 |
- |
| 備考 |
管理形態/管理員の勤務形態:-/-
利回り:7.06%
年間予定賃料収入:1,518万円
※概要と現況が異なる場合は現況を優先いたします。
※総戸数9 (1DK+S)43.75㎡ 1戸、(2DK)45.6㎡ 6戸、(1LDK+S)1戸、(3LDK+S+ルーフバルコニー)95㎡ 1戸
※月極駐車場 25,000円 /月x 8台 、コインパーキング2台66,000円/月
※敷地内の一部が借地権となります。
※土地賃貸借契約(旧借地法)地代30,000円/月 存続期間2055年5月29日迄
※借地面積 132.66㎡(約40.1坪)
※敷地内の一部が土砂災害警戒区域に存します。
※敷地内の一部が急傾斜地崩壊危険区域に存します。
※敷地内に井戸があります。
|
| エネルギー消費性能 |
- |
| 断熱性能 |
- |
| 目安光熱費 |
- |
| バス・トイレ |
- |
| キッチン |
- |
| 設備・サービス |
- |
| その他 |
- |
| 条件等 |
オーナーチェンジ |
現況 |
賃貸中 |
| 引渡可能時期 |
相談 |
物件番号 |
6988081143 |
| 情報公開日 |
2025年10月20日 |
次回更新予定日 |
2026年2月9日 |
| ケータイ用バーコード |
- スマートフォンでこの物件を見る
- スマートフォンからもこの物件をご覧になれます。
|
※「-」と表示されている項目については、情報提供会社にご確認ください。
ここから簡単にお問い合わせをすることができます。
(SSLでの暗号化での送信を希望されるお客さまは
こちら
よりお問い合わせください)
お問い合わせを行う前に
「個人情報の取り扱いについて」を必ずお読みください。
「個人情報の取り扱いについて」に同意いただいた場合は「上記にご同意の上 確認画面へ進む」のボタンをクリックしてください。
個人情報の取り扱いについて
皆さまが送付された個人情報はアットホーム(株)のサーバを経由し、お問い合わせ先の不動産会社にメールまたはFAXにて転送されるためアットホーム(株)にも保管されます。アットホーム(株)で保管された個人情報の取り扱いについては、【こちら】をご覧ください。
また、本画面でご記入いただいた個人情報は、お問い合わせ先の不動産会社でも保管します。 お問い合わせ先の不動産会社が保管する個人情報の取り扱いについては、不動産会社に直接お問い合わせください。
神奈川県知事免許(4)第26952号 |
|---|
- 交通:
- JR京浜東北線/山手駅 徒歩4分
- 神奈川県横浜市中区大和町2丁目32-8
- TEL:
- 045-225-8926
- FAX:
- 045-225-8927
- 所属団体:
- (公社)神奈川県宅地建物取引業協会会員(公社)首都圏不動産公正取引協議会加盟
取引態様:専任媒介  - 00260074
|
- スマートフォンで
この不動産会社を見る

|
- 提携サイト等より掲載されている物件情報につきましては、不動産会社詳細情報にリンクされていないものがあります。
- 物件に関するお問合せは、物件詳細ページの「情報提供会社」に表示されている不動産会社へ直接お願いいたします。
- 間取図は、現況を優先させていただきます。
- 映像は物件の一部を撮影したものです。物件の契約にあたっての最終判断はご自身の判断に基づいて行ってください。
- 仲介手数料について

アットホームは物件情報の適正化に努めております。
内容に誤りがある場合にはこちらへご連絡ください。