東京都大田区大森北4丁目(大森駅)の売その他:物件詳細
交通 所在地 |
駅徒歩 |
価格 管理費等 |
使用部分面積 土地面積 |
用途地域 建物構造 |
物件種目 築年月 |
|
JR京浜東北線/大森
東京都大田区大森北4丁目
|
6分
|
17,300万円
-
|
194.01m²
131.24m²
|
1種住居
鉄骨造
|
一棟売マンション
2002年1月(築24年2ヶ月)
|
|
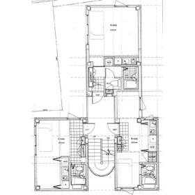
間取図
|
|
<
その他の画像
>
|
| 交通 | JR京浜東北線 大森駅 徒歩6分 |
|---|
| その他の交通 | 京急本線 大森海岸駅 徒歩15分 京急本線 平和島駅 徒歩17分 |
| 所在地 |
東京都大田区大森北4丁目
|
| 物件種目 |
一棟売マンション |
| 価格 |
17,300万円 |
管理費等 |
- |
| 修繕積立金 |
- |
借地期間・地代(月額) |
- |
| 権利金 |
- |
敷金または保証金 |
- / - |
| 維持費等 |
- |
その他一時金 |
- |
| 間取り |
- |
階建 / 階 |
3階建 |
| 使用部分面積 |
194.01m² |
土地面積 |
131.24m²(公簿) |
| 建物構造 |
鉄骨造 |
築年月 |
2002年1月(築24年2ヶ月)
|
| 土地権利 |
所有権 |
建物名・部屋番号 |
|
| 都市計画 |
市街化区域 |
用途地域 |
1種住居 |
| 建ぺい率 |
- |
容積率 |
- |
| 駐車場 |
無 |
バイク置き場 |
- |
| 駐輪場 |
- |
|
|
| 私道負担面積 |
- |
接道状況 |
北西 3.5m 公道 接面7.3m
|
| 地目 |
宅地 |
地勢 |
平坦 |
| 総戸数 |
9戸 |
国土法届出 |
- |
| アピールポイント |
■築年月:2002年1月(築23年)
■総戸数9戸(全1R=19.76㎡~24.91㎡)
■2024年 大規模修繕工事実施済み
※2020年以降、内外装修繕工事に約2,000万円をかけています。
■相続税路線価(令和7年分):440千円/㎡
【注意事項】
■CATV・インターネット導入契約要承継
■現況有姿売買・公簿売買(境界非明示)
※売主様にて測量及び隣接地との境界確認(境界復元)等は行いません。 |
| リフォーム履歴 |
- |
| リノベーション履歴 |
- |
| 特記事項 |
- |
| 備考 |
管理形態/管理員の勤務形態:-/-
利回り:4.90%
年間予定賃料収入:848.4万円
|
| エネルギー消費性能 |
- |
| 断熱性能 |
- |
| 目安光熱費 |
- |
| バス・トイレ |
シャワー、トイレ |
| キッチン |
- |
| 設備・サービス |
収納スペース、室内洗濯機置場、給湯、都市ガス、エアコン、インターネット対応、CATVインターネット、ケーブルTV |
| その他 |
- |
| 条件等 |
オーナーチェンジ |
現況 |
賃貸中 |
| 引渡可能時期 |
相談 |
物件番号 |
6988428752 |
| 仲介手数料 |
売買代金の3.3%+6.6万円 |
|
|
| 情報公開日 |
2025年11月17日 |
次回更新予定日 |
2026年2月16日 |
| ケータイ用バーコード |
- スマートフォンでこの物件を見る
- スマートフォンからもこの物件をご覧になれます。
|
※「-」と表示されている項目については、情報提供会社にご確認ください。
| 周辺施設 |
まいばすけっと大森北4丁目店 |
| 距離 |
66m |
| 周辺施設 |
セブンイレブン大田区大森駅南店 |
| 距離 |
244m |
| 周辺施設 |
私立東邦大学大森キャンパス |
| 距離 |
1675m |
| 周辺施設 |
医療法人財団中島記念会大森山王病院 |
| 距離 |
395m |
ここから簡単にお問い合わせをすることができます。
(SSLでの暗号化での送信を希望されるお客さまは
こちら
よりお問い合わせください)
お問い合わせを行う前に
「個人情報の取り扱いについて」を必ずお読みください。
「個人情報の取り扱いについて」に同意いただいた場合は「上記にご同意の上 確認画面へ進む」のボタンをクリックしてください。
個人情報の取り扱いについて
皆さまが送付された個人情報はアットホーム(株)のサーバを経由し、お問い合わせ先の不動産会社にメールまたはFAXにて転送されるためアットホーム(株)にも保管されます。アットホーム(株)で保管された個人情報の取り扱いについては、【こちら】をご覧ください。
また、本画面でご記入いただいた個人情報は、お問い合わせ先の不動産会社でも保管します。 お問い合わせ先の不動産会社が保管する個人情報の取り扱いについては、不動産会社に直接お問い合わせください。
東京都知事免許(2)第101138号 |
|---|
- 交通:
- JR山手線/渋谷駅
- 東京都渋谷区渋谷3丁目6-2 エクラート渋谷ビル8階
- TEL:
- 03-6403-3868
- 所属団体:
- (公社)東京都宅地建物取引業協会会員(公社)首都圏不動産公正取引協議会加盟
取引態様:媒介  - 00268736
|
- スマートフォンで
この不動産会社を見る

|
- 提携サイト等より掲載されている物件情報につきましては、不動産会社詳細情報にリンクされていないものがあります。
- 物件に関するお問合せは、物件詳細ページの「情報提供会社」に表示されている不動産会社へ直接お願いいたします。
- 間取図は、現況を優先させていただきます。
- 映像は物件の一部を撮影したものです。物件の契約にあたっての最終判断はご自身の判断に基づいて行ってください。
- 仲介手数料について

アットホームは物件情報の適正化に努めております。
内容に誤りがある場合にはこちらへご連絡ください。