大阪府東大阪市玉串元町1丁目(河内花園駅)の売その他:物件詳細
交通 所在地 |
駅徒歩 |
価格 管理費等 |
使用部分面積 土地面積 |
用途地域 建物構造 |
物件種目 築年月 |
|
近鉄奈良線/河内花園
大阪府東大阪市玉串元町1丁目
|
10分
|
4,980万円
-
|
229.76m²
211.16m²
|
1種中高
木造
|
一棟売アパート
1987年10月(築38年3ヶ月)
|
|
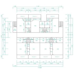
間取図
1階平面図
|
外観
1987年(昭和62年)10月建築木造2階建の収益アパート。土地間口広々約14.3mもあり、土地有効約211.16㎡(約63.87坪)付きです。近鉄難波・奈良線 河内花園駅まで徒歩10分。
|
<
その他の画像
>
|
| 交通 | 近鉄奈良線 河内花園駅 徒歩10分 |
|---|
| その他の交通 | 近鉄奈良線 東花園駅 徒歩18分 近鉄奈良線 若江岩田駅 徒歩18分 |
| 所在地 |
大阪府東大阪市玉串元町1丁目
|
| 物件種目 |
一棟売アパート |
| 価格 |
4,980万円 |
管理費等 |
- |
| 修繕積立金 |
- |
借地期間・地代(月額) |
- |
| 権利金 |
- |
敷金または保証金 |
- / - |
| 維持費等 |
- |
その他一時金 |
- |
| 間取り |
- |
階建 / 階 |
2階建 |
| 使用部分面積 |
229.76m² |
土地面積 |
211.16m²(公簿) |
| 建物構造 |
木造 |
築年月 |
1987年10月(築38年3ヶ月)
|
| 土地権利 |
所有権 |
建物名・部屋番号 |
Zeus花園 |
| 都市計画 |
市街化区域 |
用途地域 |
1種中高 |
| 建ぺい率 |
60% |
容積率 |
200% |
| 駐車場 |
- |
バイク置き場 |
- |
| 駐輪場 |
- |
|
|
| 私道負担面積 |
有 16.11m² |
接道状況 |
北 4.0m 私道 接面14.3m
|
| 地目 |
宅地 |
地勢 |
平坦 |
| 総戸数 |
14戸 |
国土法届出 |
- |
| アピールポイント |
◆1Kが全14戸で、現況満室稼働中です。
◆月額収入:433,500円(家賃・共益費)です。
◆年間収入:5,202,000円で、表面利回り10.44%です。
◆近鉄難波・奈良線 東花園駅まで徒歩18分、若江岩田駅まで徒歩18分です。
●業務スーパー玉串店まで約370m、サンディ若江東町店まで約535m、ジャンボスクエア花園まで約720m、コープ若江店まで約760m、ファミリーマート京屋玉串元町店まで約220m、けんこう村花園店まで約580m、ジャパン東大阪若江店まで約615mで、買物に大変便利です。
●東大阪玉串元町郵便局まで約100mです。 |
| リフォーム履歴 |
- |
| リノベーション履歴 |
- |
| 特記事項 |
- |
| 備考 |
管理形態/管理員の勤務形態:-/-
利回り:10.44%
年間予定賃料収入:520.2万円
※管理料(税込):19,800円。
※振込手数料:440円。
※清掃代:8,800円。
※上記費用は令和7年10月度の明細です。
※令和7年度固定資産税年額:134,692円。
|
| エネルギー消費性能 |
- |
| 断熱性能 |
- |
| 目安光熱費 |
- |
| バス・トイレ |
バス・トイレ同室、シャワー |
| キッチン |
- |
| 設備・サービス |
- |
| その他 |
- |
| 条件等 |
オーナーチェンジ |
現況 |
賃貸中 |
| 引渡可能時期 |
相談 |
物件番号 |
6988540740 |
| 情報公開日 |
2025年11月27日 |
次回更新予定日 |
2025年12月18日 |
| ケータイ用バーコード |
- スマートフォンでこの物件を見る
- スマートフォンからもこの物件をご覧になれます。
|
※「-」と表示されている項目については、情報提供会社にご確認ください。
| 周辺施設 |
業務スーパー玉串店 |
| 距離 |
370m |
写真を見る |
| 周辺施設 |
サンディ若江東町店 |
| 距離 |
535m |
写真を見る |
| 周辺施設 |
ジャンボスクエア花園 |
| 距離 |
720m |
写真を見る |
| 周辺施設 |
コープ若江店 |
| 距離 |
760m |
写真を見る |
| 周辺施設 |
ファミリーマート京屋玉串元町店 |
| 距離 |
220m |
写真を見る |
| 周辺施設 |
けんこう村花園店 |
| 距離 |
580m |
写真を見る |
| 周辺施設 |
ジャパン東大阪若江店 |
| 距離 |
615m |
写真を見る |
| 周辺施設 |
東大阪玉串元町郵便局 |
| 距離 |
100m |
写真を見る |
ここから簡単にお問い合わせをすることができます。
(SSLでの暗号化での送信を希望されるお客さまは
こちら
よりお問い合わせください)
お問い合わせを行う前に
「個人情報の取り扱いについて」を必ずお読みください。
「個人情報の取り扱いについて」に同意いただいた場合は「上記にご同意の上 確認画面へ進む」のボタンをクリックしてください。
個人情報の取り扱いについて
皆さまが送付された個人情報はアットホーム(株)のサーバを経由し、お問い合わせ先の不動産会社にメールまたはFAXにて転送されるためアットホーム(株)にも保管されます。アットホーム(株)で保管された個人情報の取り扱いについては、【こちら】をご覧ください。
また、本画面でご記入いただいた個人情報は、お問い合わせ先の不動産会社でも保管します。 お問い合わせ先の不動産会社が保管する個人情報の取り扱いについては、不動産会社に直接お問い合わせください。
大阪府知事免許(4)第52787号 |
|---|
- 交通:
- 地下鉄千日前線/今里駅 徒歩7分
- 大阪府大阪市東成区東中本3丁目19-23
- TEL:
- 06-6975-7771
- FAX:
- 06-6975-6661
- 所属団体:
- (一社)大阪府宅地建物取引業協会会員(公社)近畿地区不動産公正取引協議会加盟
取引態様:媒介  - 50019891
|
- スマートフォンで
この不動産会社を見る

|
- 提携サイト等より掲載されている物件情報につきましては、不動産会社詳細情報にリンクされていないものがあります。
- 物件に関するお問合せは、物件詳細ページの「情報提供会社」に表示されている不動産会社へ直接お願いいたします。
- 間取図は、現況を優先させていただきます。
- 映像は物件の一部を撮影したものです。物件の契約にあたっての最終判断はご自身の判断に基づいて行ってください。
- 仲介手数料について

アットホームは物件情報の適正化に努めております。
内容に誤りがある場合にはこちらへご連絡ください。