不動産 賃貸 マンション等の住宅情報:埼玉住まい情報


北海道小樽市梅ケ枝町の売その他:物件詳細

  • 物件詳細
  • 情報の見方
  • 印刷用画面
交通
所在地
駅徒歩 価格
管理費等
使用部分面積
土地面積
用途地域
建物構造
物件種目
築年月

【バス】中央バス「北手宮」 停歩1分

北海道小樽市梅ケ枝町


2,200万円

311.58m²

338.01m²

1種中高

木造

一棟売アパート

1998年2月(築27年11ヶ月)

おすすめコメント

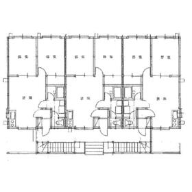
2DK×6世帯、前面バス通りロードヒーティング

間取図

間取図

  • とりあえず保存
  • お問い合わせ
交通

【バス】 中央バス「北手宮」 停歩1分

所在地 北海道小樽市梅ケ枝町
物件種目 一棟売アパート
価格 2,200万円 管理費等
修繕積立金 借地期間・地代(月額)
権利金 敷金または保証金 - / -
維持費等 その他一時金
間取り 階建 / 階 2階建
使用部分面積 311.58m² 土地面積 338.01m²(公簿)
建物構造 木造 築年月 1998年2月(築27年11ヶ月)
土地権利 所有権 建物名・部屋番号  
都市計画 市街化区域 用途地域 1種中高
建ぺい率 60% 容積率 200%
駐車場 バイク置き場
駐輪場    
私道負担面積 接道状況 南 10.9m 公道
地目 宅地 地勢 傾斜地
総戸数 6戸 国土法届出
リフォーム履歴
リノベーション履歴
特記事項
備考
管理形態/管理員の勤務形態:-/-
利回り:13.58%
年間予定賃料収入:298.8万円
エネルギー消費性能
断熱性能
目安光熱費
バス・トイレ
キッチン
設備・サービス
その他
条件等 オーナーチェンジ 現況 賃貸中
引渡可能時期 即時 物件番号 6988548227
情報公開日 2025年11月28日 次回更新予定日 2025年12月26日
ケータイ用バーコード

QRコード

スマートフォンでこの物件を見る
スマートフォンからもこの物件をご覧になれます。
※「-」と表示されている項目については、情報提供会社にご確認ください。

この物件の周辺情報

周辺施設 マックスバリュ手宮店
距離 1535m
周辺施設 ラルズマート手宮店
距離 1680m
周辺施設 セイコーマート小樽梅ケ枝店
距離 359m
周辺施設 ツルハドラッグ小樽梅ヶ枝店
距離 937m
周辺施設 医療法人北仁会石橋病院
距離 1761m
周辺施設 小樽梅ヶ枝郵便局
距離 597m
周辺施設 北海道信用金庫長橋支店
距離 1646m
周辺施設 梅ケ枝芝公園
距離 623m

クイックお問い合わせ

ここから簡単にお問い合わせをすることができます。
(SSLでの暗号化での送信を希望されるお客さまは こちら よりお問い合わせください)

お問い合わせ内容(必須)
お名前(必須) 姓  名 
メールアドレス(必須)
※携帯電話のメールアドレスをご入力される方はこちらをご確認ください
電話番号(必須)
- -

※入力いただいた電話番号へSMSまたは音声でパスワードをご連絡します。

携帯電話の番号をご入力の方へ

携帯電話の番号をご入力の方へ
確認画面にて送信ボタンをクリックするとSMSが携帯電話に届きます。
そのSMSに記載のパスワード(認証番号)を入力し、お問い合わせを完了してください。
尚、SMSの送信者番号は 0005 202 760 となります。
これはアットホームの固定番号です。

備考欄 希望条件、物件案内希望日、質問などがございましたらご記入ください。
お問い合わせを行う前に「個人情報の取り扱いについて」を必ずお読みください。
「個人情報の取り扱いについて」に同意いただいた場合は「上記にご同意の上 確認画面へ進む」のボタンをクリックしてください。

個人情報の取り扱いについて

皆さまが送付された個人情報はアットホーム(株)のサーバを経由し、お問い合わせ先の不動産会社にメールまたはFAXにて転送されるためアットホーム(株)にも保管されます。アットホーム(株)で保管された個人情報の取り扱いについては、【こちら】をご覧ください。
また、本画面でご記入いただいた個人情報は、お問い合わせ先の不動産会社でも保管します。 お問い合わせ先の不動産会社が保管する個人情報の取り扱いについては、不動産会社に直接お問い合わせください。

情報提供会社

情報提供会社

(株)エアーズホーム

北海道知事免許 石狩(4)第7633号

交通:
札幌市東豊線/元町駅 徒歩7分
北海道札幌市東区北二十八条東12丁目3-15 パーソンズ28
TEL:
011-704-7033
FAX:
011-704-7077
所属団体:
(公社)全日本不動産協会会員
(一社)北海道不動産公正取引協議会加盟

取引態様:専任媒介

  • 会社情報
  • 10003897
スマートフォンで
この不動産会社を見る
QRコード
  • とりあえず保存
  • お問い合わせ
  • 提携サイト等より掲載されている物件情報につきましては、不動産会社詳細情報にリンクされていないものがあります。
  • 物件に関するお問合せは、物件詳細ページの「情報提供会社」に表示されている不動産会社へ直接お願いいたします。
  • 間取図は、現況を優先させていただきます。
  • 映像は物件の一部を撮影したものです。物件の契約にあたっての最終判断はご自身の判断に基づいて行ってください。
  • 仲介手数料について仲介手数料

アットホームは物件情報の適正化に努めております。 内容に誤りがある場合にはこちらへご連絡ください。

【埼玉住まい情報】では、日本全国の物件から賃貸マンションや賃貸アパート・賃貸一戸建て等の賃貸住宅情報、新築マンション・分譲マンションや中古マンション等の売買マンション情報、新築一戸建てや中古一戸建てなどの戸建住宅、 土地など、総合的な不動産住宅情報検索サービスを提供致します。
【埼玉住まい情報】から、選りすぐりの不動産物件を探してみましょう。

【免責事項】
このコーナーの運営はアットホーム株式会社(https://www.athome.co.jp/)が行っています。
このコーナーに掲載している物件情報は、「アットホーム不動産情報ネットワーク」に加盟する不動産会社等(情報提供元)から提供されています。信頼性の高い情報提供が行えるよう、最大限の努力をしておりますが、その内容を保証するものではありません。 利用者のみなさまと各情報提供元との取引に起因する損害および情報が掲載されたことに起因する損害等については、株式会社イーシティ埼玉、およびアットホームは一切責任を負いません。
各物件情報の内容や画像等はすべて現況を優先させていただきます。
お取引等(お取引の準備、資金調達等を含みます)の際には、内容や契約条件等について、各情報提供元より十分な説明を受け、ご自身でご確認の上、判断してください。
このコーナーへの物件情報のご掲載、その他不動産業務ソリューション等についての不動産会社様のお問合せはこちらからお願いいたします。

物件画像: