神奈川県横浜市西区東ケ丘(日ノ出町駅)の売その他:物件詳細
交通 所在地 |
駅徒歩 |
価格 管理費等 |
使用部分面積 土地面積 |
用途地域 建物構造 |
物件種目 築年月 |
|
京急本線/日ノ出町
神奈川県横浜市西区東ケ丘
|
7分
|
3,750万円
-
|
187.95m²
190.44m²
|
1種住居
木造
|
中古一戸建て
1975年1月(築51年1ヶ月)
|
|
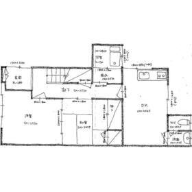
間取図
西側1階間取
|
その他
西側2階間取
|
その他の画像
|
| 交通 | 京急本線 日ノ出町駅 徒歩7分 |
|---|
| その他の交通 | ブルーライン 桜木町駅 徒歩14分 京急本線 黄金町駅 徒歩9分 |
| 所在地 |
神奈川県横浜市西区東ケ丘
|
| 物件種目 |
中古一戸建て |
| 価格 |
3,750万円 |
管理費等 |
- |
| 修繕積立金 |
- |
借地期間・地代(月額) |
- |
| 権利金 |
- |
敷金または保証金 |
- / - |
| 維持費等 |
- |
その他一時金 |
- |
| 間取り |
9DK |
階建 / 階 |
2階建 |
| 使用部分面積 |
187.95m² |
土地面積 |
190.44m²(公簿) |
| 建物構造 |
木造 |
築年月 |
1975年1月(築51年1ヶ月)
|
| 土地権利 |
所有権 |
建物名・部屋番号 |
東テラス |
| 都市計画 |
- |
用途地域 |
1種住居 |
| 建ぺい率 |
60% |
容積率 |
200% |
| 駐車場 |
- |
バイク置き場 |
- |
| 駐輪場 |
- |
|
|
| 私道負担面積 |
有 10.00m² |
接道状況 |
西
|
| 地目 |
宅地 |
地勢 |
高台 |
| 総戸数 |
- |
国土法届出 |
- |
| リフォーム履歴 |
- |
| リノベーション履歴 |
- |
| 特記事項 |
閑静な住宅街、前面棟無 |
| 瑕疵保証 |
- |
| 瑕疵保険 |
- |
| 評価・証明書 |
- |
| 備考 |
管理形態/管理員の勤務形態:-/-
利回り:8.00%
年間予定賃料収入:300万円
※築年数不詳
※現状建替時、土地分割不可・共同住宅100㎡以下
※下水管が他人地を通過していますが、土地使用承諾書が取得できておりません
|
| エネルギー消費性能 |
- |
| 断熱性能 |
- |
| 目安光熱費 |
- |
| バス・トイレ |
- |
| キッチン |
- |
| 設備・サービス |
都市ガス |
| その他 |
- |
| 条件等 |
オーナーチェンジ |
現況 |
賃貸中 |
| 引渡可能時期 |
相談 |
物件番号 |
6988855369 |
| 情報公開日 |
2025年12月21日 |
次回更新予定日 |
2026年1月13日 |
| ケータイ用バーコード |
- スマートフォンでこの物件を見る
- スマートフォンからもこの物件をご覧になれます。
|
※「-」と表示されている項目については、情報提供会社にご確認ください。
| 周辺施設 |
まいばすけっと初音町1丁目店 |
| 距離 |
400m |
| 周辺施設 |
ローソンストア100横浜初音町店 |
| 距離 |
400m |
ここから簡単にお問い合わせをすることができます。
(SSLでの暗号化での送信を希望されるお客さまは
こちら
よりお問い合わせください)
お問い合わせを行う前に
「個人情報の取り扱いについて」を必ずお読みください。
「個人情報の取り扱いについて」に同意いただいた場合は「上記にご同意の上 確認画面へ進む」のボタンをクリックしてください。
個人情報の取り扱いについて
皆さまが送付された個人情報はアットホーム(株)のサーバを経由し、お問い合わせ先の不動産会社にメールまたはFAXにて転送されるためアットホーム(株)にも保管されます。アットホーム(株)で保管された個人情報の取り扱いについては、【こちら】をご覧ください。
また、本画面でご記入いただいた個人情報は、お問い合わせ先の不動産会社でも保管します。 お問い合わせ先の不動産会社が保管する個人情報の取り扱いについては、不動産会社に直接お問い合わせください。
神奈川県知事免許(4)第26195号 |
|---|
- 交通:
- 横浜高速鉄道みなとみらい線/元町・中華街駅 徒歩9分
- 神奈川県横浜市中区新山下1丁目17-39 ヤマダ電機内
- TEL:
- 045-662-6161
- FAX:
- 045-306-7763
- 所属団体:
- (公社)全日本不動産協会会員(公社)首都圏不動産公正取引協議会加盟
取引態様:一般媒介  - 00160976
|
- スマートフォンで
この不動産会社を見る

|
- 提携サイト等より掲載されている物件情報につきましては、不動産会社詳細情報にリンクされていないものがあります。
- 物件に関するお問合せは、物件詳細ページの「情報提供会社」に表示されている不動産会社へ直接お願いいたします。
- 間取図は、現況を優先させていただきます。
- 映像は物件の一部を撮影したものです。物件の契約にあたっての最終判断はご自身の判断に基づいて行ってください。
- 仲介手数料について

アットホームは物件情報の適正化に努めております。
内容に誤りがある場合にはこちらへご連絡ください。