福岡県北九州市門司区旧門司1丁目(門司港駅)の売その他:物件詳細
交通 所在地 |
駅徒歩 |
価格 管理費等 |
使用部分面積 土地面積 |
用途地域 建物構造 |
物件種目 築年月 |
|
JR鹿児島本線/門司港 [バス利用可] バス 旧門司一丁目 停歩2分
福岡県北九州市門司区旧門司1丁目
|
19分
|
6,600万円
-
|
531.08m²
541.72m²
|
商業地域
SRC
|
売ビル
1986年6月(築39年10ヶ月)
|
|
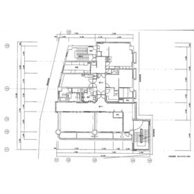
間取図
1階平面図
|
間取図
2階平面図
|
<
その他の画像
>
|
| 交通 | JR鹿児島本線 門司港駅 徒歩19分 [バス利用可] バス 旧門司一丁目 停歩2分 |
| 所在地 |
福岡県北九州市門司区旧門司1丁目
|
| 物件種目 |
売ビル |
| 価格 |
6,600万円 |
管理費等 |
- |
| 修繕積立金 |
なし |
借地期間・地代(月額) |
- |
| 権利金 |
- |
敷金または保証金 |
- / - |
| 維持費等 |
- |
その他一時金 |
- |
| 間取り |
- |
階建 / 階 |
3階建 |
| 使用部分面積 |
531.08m² |
土地面積 |
541.72m²(公簿) |
| 建物構造 |
SRC |
築年月 |
1986年6月(築39年10ヶ月)
|
| 土地権利 |
所有権 |
建物名・部屋番号 |
|
| 都市計画 |
市街化区域 |
用途地域 |
商業地域 |
| 建ぺい率 |
80% |
容積率 |
400% |
| 駐車場 |
有 無料 |
バイク置き場 |
- |
| 駐輪場 |
- |
|
|
| 私道負担面積 |
なし |
接道状況 |
北西 15.0m 公道 接面23.0m
・
北東 2.3m 公道 接面28.0m
・
二方道路
|
| 地目 |
宅地 |
地勢 |
平坦 |
| 総戸数 |
- |
国土法届出 |
- |
| リフォーム履歴 |
- |
| リノベーション履歴 |
- |
| 特記事項 |
駐車場3台分以上、都道府県道沿いに面する |
| 備考 |
管理形態/管理員の勤務形態:-/-
|
| エネルギー消費性能 |
- |
| 断熱性能 |
- |
| 目安光熱費 |
- |
| バス・トイレ |
シャワー、トイレ2ヶ所 |
| キッチン |
- |
| 設備・サービス |
収納スペース、室内洗濯機置場、給湯、都市ガス、火災警報器(報知機) |
| その他 |
- |
| 条件等 |
- |
現況 |
空 |
| 引渡可能時期 |
相談 |
物件番号 |
6989060131 |
| 情報公開日 |
2026年3月16日 |
次回更新予定日 |
2026年3月30日 |
| ケータイ用バーコード |
- スマートフォンでこの物件を見る
- スマートフォンからもこの物件をご覧になれます。
|
※「-」と表示されている項目については、情報提供会社にご確認ください。
| 周辺施設 |
独立行政法人労働者健康福祉機構九州労災病院門司メディカルセンター |
| 距離 |
463m |
ここから簡単にお問い合わせをすることができます。
(SSLでの暗号化での送信を希望されるお客さまは
こちら
よりお問い合わせください)
お問い合わせを行う前に
「個人情報の取り扱いについて」を必ずお読みください。
「個人情報の取り扱いについて」に同意いただいた場合は「上記にご同意の上 確認画面へ進む」のボタンをクリックしてください。
個人情報の取り扱いについて
皆さまが送付された個人情報はアットホーム(株)のサーバを経由し、お問い合わせ先の不動産会社にメールまたはFAXにて転送されるためアットホーム(株)にも保管されます。アットホーム(株)で保管された個人情報の取り扱いについては、【こちら】をご覧ください。
また、本画面でご記入いただいた個人情報は、お問い合わせ先の不動産会社でも保管します。 お問い合わせ先の不動産会社が保管する個人情報の取り扱いについては、不動産会社に直接お問い合わせください。
福岡県知事免許(1)第20256号 |
|---|
- 交通:
- JR鹿児島本線/小倉駅
- 福岡県北九州市小倉北区馬借1丁目11番6号 ヒット馬借テラス1F
- TEL:
- 093-521-1023
- 所属団体:
- (公社)全日本不動産協会会員(一社)九州不動産公正取引協議会加盟
取引態様:媒介  - 80507008
|
- スマートフォンで
この不動産会社を見る

|
- 提携サイト等より掲載されている物件情報につきましては、不動産会社詳細情報にリンクされていないものがあります。
- 物件に関するお問合せは、物件詳細ページの「情報提供会社」に表示されている不動産会社へ直接お願いいたします。
- 間取図は、現況を優先させていただきます。
- 映像は物件の一部を撮影したものです。物件の契約にあたっての最終判断はご自身の判断に基づいて行ってください。
- 仲介手数料について

アットホームは物件情報の適正化に努めております。
内容に誤りがある場合にはこちらへご連絡ください。