広島県広島市佐伯区楽々園3丁目(楽々園駅)の売その他:物件詳細
交通 所在地 |
駅徒歩 |
価格 管理費等 |
使用部分面積 土地面積 |
用途地域 建物構造 |
物件種目 築年月 |
|
広島電鉄宮島線/楽々園
広島県広島市佐伯区楽々園3丁目
|
7分
|
15,800万円
-
|
651.72m²
330.74m²
|
1種住居
RC
|
一棟売マンション
1989年2月(築37年4ヶ月)
|
|
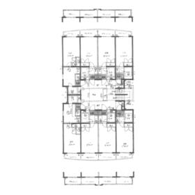
間取図
|
|
<
その他の画像
>
|
| 交通 | 広島電鉄宮島線 楽々園駅 徒歩7分 |
|---|
| その他の交通 | JR山陽本線 五日市駅 徒歩19分 |
| 所在地 |
広島県広島市佐伯区楽々園3丁目
|
| 物件種目 |
一棟売マンション |
| 価格 |
15,800万円 |
管理費等 |
- |
| 修繕積立金 |
- |
借地期間・地代(月額) |
- |
| 権利金 |
- |
敷金または保証金 |
- / - |
| 維持費等 |
- |
その他一時金 |
- |
| 間取り |
- |
階建 / 階 |
4階建 |
| 使用部分面積 |
651.72m² |
土地面積 |
330.74m²(公簿) |
| 建物構造 |
RC |
築年月 |
1989年2月(築37年4ヶ月)
|
| 土地権利 |
所有権 |
建物名・部屋番号 |
ウイング楽々園 |
| 都市計画 |
市街化区域 |
用途地域 |
1種住居 |
| 建ぺい率 |
60% |
容積率 |
200% |
| 駐車場 |
- |
バイク置き場 |
- |
| 駐輪場 |
- |
|
|
| 私道負担面積 |
- |
接道状況 |
南 5.7m 公道
|
| 地目 |
宅地 |
地勢 |
平坦 |
| 総戸数 |
30戸 |
国土法届出 |
- |
| アピールポイント |
徒歩圏内に大型スーパー、飲食店等、商業施設が多数あり生活便利な環境です |
| リフォーム履歴 |
- |
| リノベーション履歴 |
- |
| 特記事項 |
- |
| 備考 |
管理形態/管理員の勤務形態:-/-
利回り:8.21%
年間予定賃料収入:1,297.92万円
|
| エネルギー消費性能 |
- |
| 断熱性能 |
- |
| 目安光熱費 |
- |
| バス・トイレ |
- |
| キッチン |
- |
| 設備・サービス |
- |
| その他 |
- |
| 条件等 |
オーナーチェンジ |
現況 |
賃貸中 |
| 引渡可能時期 |
相談 |
物件番号 |
6989346172 |
| 情報公開日 |
2026年2月3日 |
次回更新予定日 |
2026年5月16日 |
| ケータイ用バーコード |
- スマートフォンでこの物件を見る
- スマートフォンからもこの物件をご覧になれます。
|
※「-」と表示されている項目については、情報提供会社にご確認ください。
| 周辺施設 |
セブンイレブン広島五日市海老園店 |
| 距離 |
474m |
| 周辺施設 |
ファミリーマート楽々園店 |
| 距離 |
500m |
| 周辺施設 |
医療法人社団初仁会桧田病院 |
| 距離 |
816m |
ここから簡単にお問い合わせをすることができます。
(SSLでの暗号化での送信を希望されるお客さまは
こちら
よりお問い合わせください)
お問い合わせを行う前に
「個人情報の取り扱いについて」を必ずお読みください。
「個人情報の取り扱いについて」に同意いただいた場合は「上記にご同意の上 確認画面へ進む」のボタンをクリックしてください。
個人情報の取り扱いについて
皆さまが送付された個人情報はアットホーム(株)のサーバを経由し、お問い合わせ先の不動産会社にメールまたはFAXにて転送されるためアットホーム(株)にも保管されます。アットホーム(株)で保管された個人情報の取り扱いについては、【こちら】をご覧ください。
また、本画面でご記入いただいた個人情報は、お問い合わせ先の不動産会社でも保管します。 お問い合わせ先の不動産会社が保管する個人情報の取り扱いについては、不動産会社に直接お問い合わせください。
広島県知事免許(1)第11433号 |
|---|
- 交通:
- 芸備線/下深川駅 徒歩12分 【バス】5分 郵便局前 停歩3分
- 広島県広島市安佐北区亀崎1丁目2-4 高陽タウンセンタービル3階
- TEL:
- 082-554-7120
- FAX:
- 082-554-7121
- 所属団体:
- (公社)広島県宅地建物取引業協会会員中国地区不動産公正取引協議会加盟
取引態様:媒介  - 50109364
|
- スマートフォンで
この不動産会社を見る

|
- 提携サイト等より掲載されている物件情報につきましては、不動産会社詳細情報にリンクされていないものがあります。
- 物件に関するお問合せは、物件詳細ページの「情報提供会社」に表示されている不動産会社へ直接お願いいたします。
- 間取図は、現況を優先させていただきます。
- 映像は物件の一部を撮影したものです。物件の契約にあたっての最終判断はご自身の判断に基づいて行ってください。
- 仲介手数料について

アットホームは物件情報の適正化に努めております。
内容に誤りがある場合にはこちらへご連絡ください。