三重県津市一身田平野(高田本山駅)の売その他:物件詳細
交通 所在地 |
駅徒歩 |
価格 管理費等 |
使用部分面積 土地面積 |
用途地域 建物構造 |
物件種目 築年月 |
|
近鉄名古屋線/高田本山 [バス利用可] バス 三交志登茂園前 停歩2分
三重県津市一身田平野
|
5分
|
3,500万円
-
|
445.44m²
470.70m²
|
1種低層
鉄骨造
|
一棟売アパート
1994年6月(築31年10ヶ月)
|
|
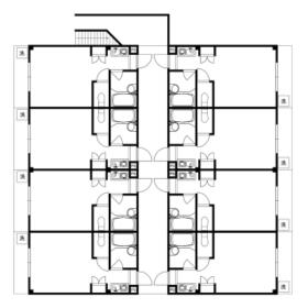
間取図
|
間取図
|
その他の画像
|
| 交通 | 近鉄名古屋線 高田本山駅 徒歩5分 [バス利用可] バス 三交志登茂園前 停歩2分 |
| 所在地 |
三重県津市一身田平野
|
| 物件種目 |
一棟売アパート |
| 価格 |
3,500万円 |
管理費等 |
- |
| 修繕積立金 |
- |
借地期間・地代(月額) |
- |
| 権利金 |
- |
敷金または保証金 |
- / - |
| 維持費等 |
- |
その他一時金 |
- |
| 間取り |
- |
階建 / 階 |
3階建 |
| 使用部分面積 |
445.44m² |
土地面積 |
470.70m²(公簿) |
| 建物構造 |
鉄骨造 |
築年月 |
1994年6月(築31年10ヶ月)
|
| 土地権利 |
所有権 |
建物名・部屋番号 |
一身田平野 売アパート |
| 都市計画 |
市街化区域 |
用途地域 |
1種低層 |
| 建ぺい率 |
60% |
容積率 |
100% |
| 駐車場 |
有 |
バイク置き場 |
- |
| 駐輪場 |
- |
|
|
| 私道負担面積 |
有 39.00m²(共有持分1/4) |
接道状況 |
北 4.2m 私道 位置指定有
|
| 地目 |
宅地 |
地勢 |
- |
| 総戸数 |
24戸 |
国土法届出 |
- |
| アピールポイント |
高田本山駅徒歩5分の立地です。建物のメンテナンスは必要ですが単身者向け賃貸事業はいかがでしょうか。 |
| リフォーム履歴 |
- |
| リノベーション履歴 |
- |
| 特記事項 |
駐車場3台分以上 |
| 備考 |
管理形態/管理員の勤務形態:-/-
24戸中1戸入居中、別途敷地外駐車場売買代金に含みます。206㎡ 境界明示義務免責、契約不適合責任免責とします。司法書士は指定でお願いします。
|
| エネルギー消費性能 |
- |
| 断熱性能 |
- |
| 目安光熱費 |
- |
| バス・トイレ |
バス・トイレ別、シャワー、トイレ |
| キッチン |
- |
| 設備・サービス |
プロパンガス、エアコン |
| その他 |
- |
| 条件等 |
オーナーチェンジ |
現況 |
賃貸中 |
| 引渡可能時期 |
相談 |
物件番号 |
6989641232 |
| 情報公開日 |
2026年3月4日 |
次回更新予定日 |
2026年4月1日 |
| ケータイ用バーコード |
- スマートフォンでこの物件を見る
- スマートフォンからもこの物件をご覧になれます。
|
※「-」と表示されている項目については、情報提供会社にご確認ください。
ここから簡単にお問い合わせをすることができます。
(SSLでの暗号化での送信を希望されるお客さまは
こちら
よりお問い合わせください)
お問い合わせを行う前に
「個人情報の取り扱いについて」を必ずお読みください。
「個人情報の取り扱いについて」に同意いただいた場合は「上記にご同意の上 確認画面へ進む」のボタンをクリックしてください。
個人情報の取り扱いについて
皆さまが送付された個人情報はアットホーム(株)のサーバを経由し、お問い合わせ先の不動産会社にメールまたはFAXにて転送されるためアットホーム(株)にも保管されます。アットホーム(株)で保管された個人情報の取り扱いについては、【こちら】をご覧ください。
また、本画面でご記入いただいた個人情報は、お問い合わせ先の不動産会社でも保管します。 お問い合わせ先の不動産会社が保管する個人情報の取り扱いについては、不動産会社に直接お問い合わせください。
静岡県知事免許(11)第5373号 |
|---|
- 交通:
- 【バス】 追分 停歩6分
- 静岡県浜松市中央区初生町576-1
- TEL:
- 053-438-1200
- FAX:
- 053-438-0801
- 所属団体:
- (公社)静岡県宅地建物取引業協会会員東海不動産公正取引協議会加盟
取引態様:一般媒介  - 40300634
|
- スマートフォンで
この不動産会社を見る

|
- 提携サイト等より掲載されている物件情報につきましては、不動産会社詳細情報にリンクされていないものがあります。
- 物件に関するお問合せは、物件詳細ページの「情報提供会社」に表示されている不動産会社へ直接お願いいたします。
- 間取図は、現況を優先させていただきます。
- 映像は物件の一部を撮影したものです。物件の契約にあたっての最終判断はご自身の判断に基づいて行ってください。
- 仲介手数料について

アットホームは物件情報の適正化に努めております。
内容に誤りがある場合にはこちらへご連絡ください。