北海道札幌市豊平区中の島一条2丁目(中の島駅)の賃貸:物件詳細
交通 所在地 |
駅徒歩 |
賃料 管理費等 |
敷金/保証金 礼金 |
間取り 面積 |
物件種目 築年月 |
|
札幌市南北線/中の島
北海道札幌市豊平区中の島一条2丁目
|
2分
|
2.6万円
7,000円
|
1ヶ月 / なし
なし
|
ワンルーム
19.42m²
|
賃貸マンション
1981年5月(築44年10ヶ月)
|
分譲タイプ、最上階、保証人不要
|
|
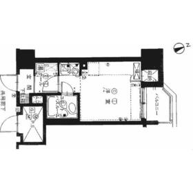
間取図
間取り
|
外観
外観
|
<
その他の画像
>
|
| 交通 | 札幌市南北線 中の島駅 徒歩2分 |
|---|
| その他の交通 | 札幌市南北線 幌平橋駅 徒歩5分 札幌市電 静修学園前駅 徒歩11分 |
| 所在地 |
北海道札幌市豊平区中の島一条2丁目
|
| 物件種目 |
賃貸マンション |
| 賃料 |
2.6万円 |
管理費等 |
7,000円 |
| 敷金 / 保証金 |
1ヶ月 / なし |
礼金 |
なし |
| 敷引 |
- |
保証金償却 |
- |
| その他一時金 |
事務手数料(税込):8,800円、水廻消毒料(税込):28,600円 |
保険等 |
要 1年 5,960円 |
| 維持費等 |
町内会費:200円/月 |
| 間取り |
ワンルーム(洋8) |
専有面積 |
19.42m² |
| 築年月 |
1981年5月(築44年10ヶ月)
|
階建 / 階 |
8階建 / 8階 |
| 建物構造 |
SRC |
総戸数 |
- |
| 主要採光面 |
北 |
駐車場 |
空無 |
| バイク置き場 |
- |
駐輪場 |
有 100円/月 |
| 建物名・部屋番号 |
ファミール中の島 |
ペット |
-
|
| リフォーム履歴 |
- |
| リノベーション履歴 |
- |
| 備考 |
賃貸保証等:利用可(日本セーフティー 契約時に賃料の50%(最低2万円)更新時に1万円保証人がいない場合に保証会社利用。)
管理形態/管理員の勤務形態:-/日勤
管理人日勤
「ファミール中の島」は地下鉄南北線「中の島」駅まで徒歩2分、大通まで乗車6分です。マンションの1階にはコンビ二が入っております。また、セブンイレブンやショッピングストア、薬局、小売店なども近くにたくさんあり生活の便は良好です。
・町内会費 月額200円
・灯油暖房
・夜間オートロック
・温水洗浄便座付
|
| エネルギー消費性能 |
- |
| 断熱性能 |
- |
| 目安光熱費 |
- |
| バス・トイレ |
洗面台、バス・トイレ同室、シャワー、温水洗浄便座、トイレ |
| キッチン |
システムキッチン、ガスコンロ可 |
| セキュリティー |
オートロック、防犯カメラ、火災警報器(報知機) |
| 収納 |
収納スペース、クローゼット |
| 設備・サービス |
室内洗濯機置場、冷蔵庫、洗濯機置場、都市ガス給湯、給湯、クッションフロア、都市ガス、FF暖房、灯油暖房、暖房、灯油、家具付き、家電付、照明器具、ベッド |
| TV・通信 |
インターネット対応、光ファイバー、ケーブルTV |
| その他 |
宅配BOX、エレベーター2基以上、バルコニー、駐輪場、エレベーター |
| 契約期間 |
2年 |
現況 |
空家 |
| 条件等 |
- |
入居可能時期 |
即時 |
| 更新料 |
- |
物件番号 |
1001774560 |
| 情報公開日 |
2025年11月8日 |
次回更新予定日 |
2026年2月20日 |
| ケータイ用バーコード |
- スマートフォンでこの物件を見る
- スマートフォンからもこの物件をご覧になれます。
|
※「-」と表示されている項目については、情報提供会社にご確認ください。
| 周辺施設 |
経専音楽放送芸術専門学校 |
| 距離 |
1293m |
写真を見る |
| 周辺施設 |
ケンタッキーフライドチキン平岸店 |
| 距離 |
957m |
写真を見る |
| 周辺施設 |
北海道立文学館 |
| 距離 |
859m |
写真を見る |
| 周辺施設 |
中島公園庭球場 |
| 距離 |
458m |
写真を見る |
| 周辺施設 |
Maxvalu Express(マックスバリュエクスプレス) 中の島店 |
| 距離 |
143m |
写真を見る |
| 周辺施設 |
セイコーマート 中の島駅前店 |
| 距離 |
22m |
写真を見る |
| 周辺施設 |
SAPPORO DRUG STORE(サツドラ) 中の島店 |
| 距離 |
398m |
写真を見る |
ここから簡単にお問い合わせをすることができます。
(SSLでの暗号化での送信を希望されるお客さまは
こちら
よりお問い合わせください)
お問い合わせを行う前に
「個人情報の取り扱いについて」を必ずお読みください。
「個人情報の取り扱いについて」に同意いただいた場合は「上記にご同意の上 確認画面へ進む」のボタンをクリックしてください。
個人情報の取り扱いについて
皆さまが送付された個人情報はアットホーム(株)のサーバを経由し、お問い合わせ先の不動産会社にメールまたはFAXにて転送されるためアットホーム(株)にも保管されます。アットホーム(株)で保管された個人情報の取り扱いについては、【こちら】をご覧ください。
また、本画面でご記入いただいた個人情報は、お問い合わせ先の不動産会社でも保管します。 お問い合わせ先の不動産会社が保管する個人情報の取り扱いについては、不動産会社に直接お問い合わせください。
北海道知事免許 石狩(10)第3992号 |
|---|
- 交通:
- 札幌市南北線/中島公園駅 徒歩1分
- 北海道札幌市中央区南九条西4丁目1-12
- TEL:
- 011-513-0007
- FAX:
- 011-513-7779
- 所属団体:
- (公社)北海道宅地建物取引業協会会員(一社)北海道不動産公正取引協議会加盟
取引態様:仲介  - 10000033
|
- スマートフォンで
この不動産会社を見る

|
- 提携サイト等より掲載されている物件情報につきましては、不動産会社詳細情報にリンクされていないものがあります。
- 物件に関するお問合せは、物件詳細ページの「情報提供会社」に表示されている不動産会社へ直接お願いいたします。
- 間取図は、現況を優先させていただきます。
- 映像は物件の一部を撮影したものです。物件の契約にあたっての最終判断はご自身の判断に基づいて行ってください。
- 仲介手数料について

アットホームは物件情報の適正化に努めております。
内容に誤りがある場合にはこちらへご連絡ください。